38 112 000 Р 472 200 $ или 406 300

Состояние и оснащение

Количество этажей
5
Развернуть
Агент
+7 (933) 938-06-50
Начать чат с агентом

Помещение свободного назначения в Москва ул. Юных Ленинцев, 20/2 (252 ...

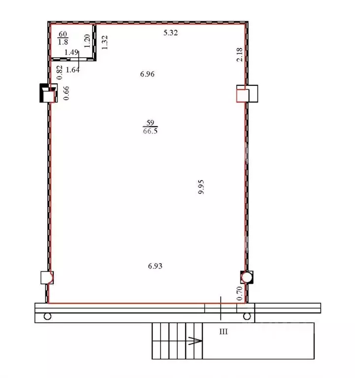
Данные получены с сайта ГИС Торги.Продажа имущества, находящегося в собственности города Москвы, нежилое помещение по адресу: г. Москва, ул. Юных Ленинцев, д. 20/2,площадью 251,8 кв. м. (Этаж 1), кадастровый номер: 77:04:0004002:14464

Читать полностью
    Позвонить Написать
    38 112 000 Р472 200 $ или 406 300
    Агент
    +7 (933) 938-06-50
    Начать чат с агентом
    Похожие предложения
    Помещение свободного назначения в Москва Лермонтовский просп., 2К1 (68 ... - Фото 1
    Помещение свободного назначения в Москва Лермонтовский просп., 2К1 (68 ... - Фото 2
    637129. Предлагаем торговое помещение с надежным арендатором Кухни Haier, площадью 38,6 кв. м., расположенное на 1 этаже жилого дома. Без комиссии для покупателя.Преимущества объекта:-первая линия Лермонтовского проспекта;-пешая доступность от станций...
    • 1/14 эт.
    37 450 000 Р
    Агент
    +7 (938) Показать номер
    Посмотреть контакты
    Помещение свободного назначения в Москва ул. Вересаева, 14 (230 м) - Фото 1
    Помещение свободного назначения в Москва ул. Вересаева, 14 (230 м) - Фото 2
    Данные получены с сайта ГИС Торги.Продажа имущества, находящегося в собственности города Москвы, нежилое помещение по адресу: г. Москва, ул. Вересаева, д. 14, пом. 88Н, общей площадью 229,7 кв. м, кадастровый номер: 77:07:0008007:3848
    • 15 этажей
    38 684 700 Р
    Агент
    +7 (933) Показать номер
    Посмотреть контакты
    Помещение свободного назначения в Москва Большой Краснопрудный туп., ... - Фото 1
    Помещение свободного назначения в Москва Большой Краснопрудный туп., ... - Фото 2
    Арт.ВАШЕМУ ВНИМАНИЮ ПРЕДЛАГАЮ --- помещение свободного назначения расположенное на первой линии домов.ХАРАКТЕРИСТИКИ:-Помещение в жилом доме (не будет налога на земельный участок);-Отдельный вход с улицы + запасный в подъезд;-Две мокрые точки;-Эл.мощность...
    • 1/5 эт.
    39 000 000 Р
    Агент
    +7 (910) Показать номер
    Посмотреть контакты
    Помещение свободного назначения в Москва Деснаречье жилой комплекс, ... - Фото 1
    Помещение свободного назначения в Москва Деснаречье жилой комплекс, ... - Фото 2
    969878. Предлагаем помещение свободного назначения, площадью 128,2 кв. м, расположенное на первом этаже жилого дома в ЖК Деснаречье . Корпус: 7.2. Без комиссии для покупателя. Преимущества объекта:-ЖК состоит из 7 корпусов переменной этажности (от 7...
    • 1/13 эт.
    37 698 492 Р
    Агент
    +7 (938) Показать номер
    Посмотреть контакты
    Продажа ПСН, м. Стрешнево, Большой Волоколамский проезд - Фото 1
    Продажа ПСН, м. Стрешнево, Большой Волоколамский проезд - Фото 2
    Продажа ПСН, м. Стрешнево, Большой Волоколамский проезд - Фото 3
    Продажа ПСН, м. Стрешнево, Большой Волоколамский проезд - Фото 4
    Продажа ПСН, м. Стрешнево, Большой Волоколамский проезд - Фото 5
    Продажа ПСН, м. Стрешнево, Большой Волоколамский проезд - Фото 6
    Продажа ПСН, м. Стрешнево, Большой Волоколамский проезд - Фото 7
    Продажа ПСН, м. Стрешнево, Большой Волоколамский проезд - Фото 8
    Продажа ПСН, м. Стрешнево, Большой Волоколамский проезд - Фото 9
    Продажа ПСН, м. Стрешнево, Большой Волоколамский проезд - Фото 10
    общая площадь 91м², полезная площадь 91м²

    Арендный бизнес. От собственника. ПСН площадью 91 м2, расположено на 1-м этаже в комплексе апартаментов Байрес (на плане - помещение № 3 во 2-м корпусе). Панорамное остекление, состояние – с отделкой под арендатора. Помещение имеет 2 отдельных входа....
    • 91 м²
    • 1-й эт.
    38 500 000 Р
    Агент
    +7 (903) Показать номер
    Посмотреть контакты

    Не нашли подходящего объявления?

    Оставьте заявку, и наши риэлторы подберут псн в районе Москвы

    (0)