200 000 000 Р 2 442 700 $ или 2 111 300

Информация об помещении

1
Этаж

Состояние и оснащение

Количество этажей
1
Развернуть
Агент
+7 (938) 656-74-88
Начать чат с агентом

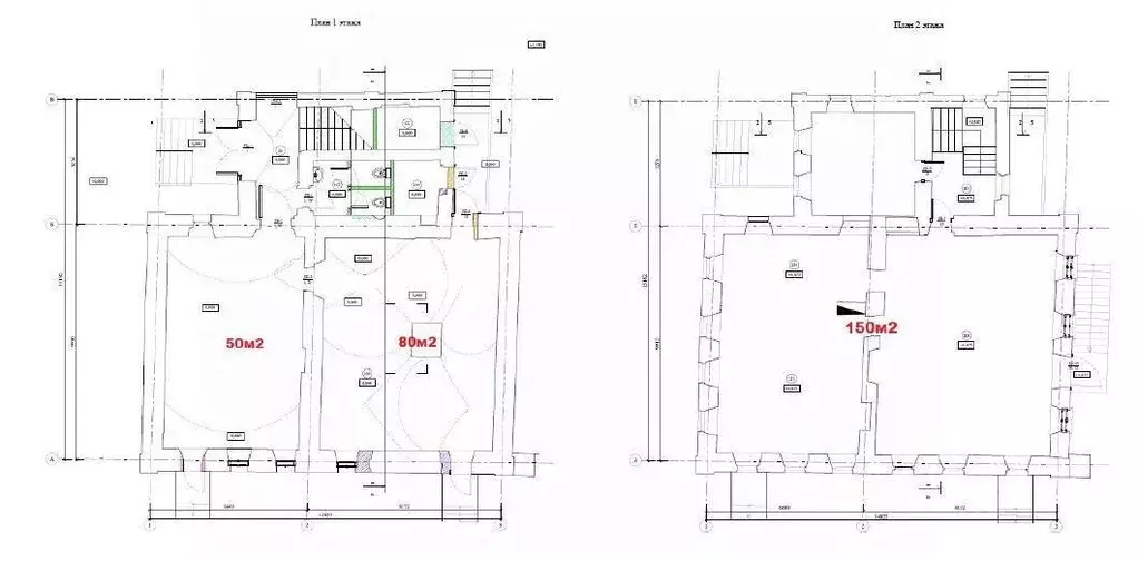
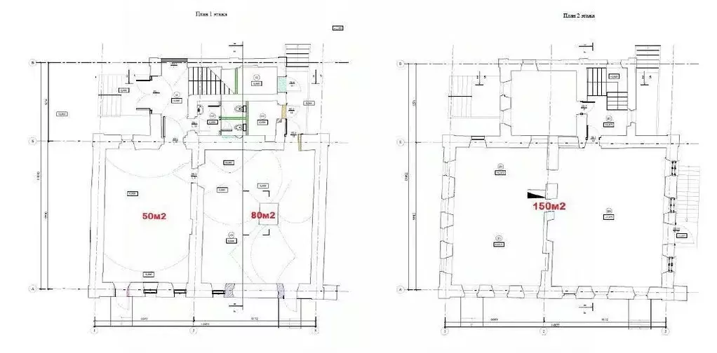
Помещение свободного назначения в Москва Элеваторная ул., 10 (590 м)

1053256. Предлагаем отдельно стоящее здание с якорными арендаторами Пятёрочка и Ригла, площадью 590 кв. м. Без комиссии для покупателя. Преимущества объекта:-первая линия домов по ул. Бирюлёвская;-8 минут на автомобиле от станции метро Царицыно;-густонаселённый жилой массив;-развитая инфраструктура района;-активный автомобильный и пешеходный трафик;-объект отлично просматривается, находится в легком доступе для клиентов;-открытая планировка;-витринное остекление;-место для вывески;-наземная парковка;-рядом остановка общественного транспорта;-земельный участок площадью 1 130 кв. м. в аренде на 49 лет. Технические параметры объекта:-несколько входных групп;-электрическая мощность: 150 кВт;-высота потолков: 3 м. Информация об арендаторах:-арендаторы: супермаркет Пятёрочка и аптека Ригла ;-прибыль:/мес. Свяжитесь с нами для получения дополнительной информации

Читать полностью
    Позвонить Написать
    200 000 000 Р2 442 700 $ или 2 111 300
    Агент
    +7 (938) 656-74-88
    Начать чат с агентом
    Похожие предложения
    Помещение свободного назначения (1064 м) - Фото 1
    Помещение свободного назначения (1064 м) - Фото 2
    Уважаемый Покупатель, предлагаем Вам приобрести помещение свободного назначения 1063.7 м на 2 этаже в собственность на выгодных условиях.Приточно-вытяжная вентиляция. Интернет, телефония. Отдельный вход. ЮАО Москвы. В 15 минутах от м. ЦарицыноБыстро реагируем...
    • 2/2 эт.
    200 000 000 Р
    Агент
    +7 (915) Показать номер
    Посмотреть контакты
    Продажа ПСН, м. Тульская, Холодильный пер. - Фото 1
    Продажа ПСН, м. Тульская, Холодильный пер. - Фото 2
    Продажа ПСН, м. Тульская, Холодильный пер. - Фото 3
    Продажа ПСН, м. Тульская, Холодильный пер. - Фото 4
    Продажа ПСН, м. Тульская, Холодильный пер. - Фото 5
    Продажа ПСН, м. Тульская, Холодильный пер. - Фото 6
    Продажа ПСН, м. Тульская, Холодильный пер. - Фото 7
    Продажа ПСН, м. Тульская, Холодильный пер. - Фото 8
    Продажа ПСН, м. Тульская, Холодильный пер. - Фото 9
    Продажа ПСН, м. Тульская, Холодильный пер. - Фото 10
    Продажа ПСН, м. Тульская, Холодильный пер. - Фото 11
    общая площадь 415.4м², полезная площадь 415.4м²

    ПСН площадью 415,4 масположено в ЛОФТ- квартале Товарищество Рябовской Мануфактуры, в 100 метрах от метро Тульская. Помещение на 1-м этаже в 2-х этажном здании (корпус 1 строение 3), с высокими потолками, большими арочными окнами и всеми центральными...
    • 415.4 м²
    • 1-й эт.
    191 084 000 Р
    Агент
    +7 (903) Показать номер
    Посмотреть контакты
    Помещение свободного назначения в Москва Кожевническая ул., 22 (306 м) - Фото 1
    Помещение свободного назначения в Москва Кожевническая ул., 22 (306 м) - Фото 2
    Лот: 38604. Отдельно стоящее здание в ЦАО Москвы. Первая линия Кожевнической улицы. 7 минут пешком до станции метро Павелецкая. В окружении 15 деловых центров и ЖК премиум класса. 2 этажа в стиле лофт. Объект культурного наследия Палаты купца Лихонина...
    • 1/5 эт.
    197 000 000 Р
    Агент
    +7 (986) Показать номер
    Посмотреть контакты
    Помещение свободного назначения в Москва Кожевническая ул., 22 (306 м) - Фото 1
    Помещение свободного назначения в Москва Кожевническая ул., 22 (306 м) - Фото 2
    Лот: 38567. Отдельно стоящее здание в ЦАО Москвы. Первая линия Кожевнической улицы. 7 минут пешком до станции метро Павелецкая. В окружении 15 деловых центров и ЖК премиум класса. 2 этажа в стиле лофт. Объект культурного наследия Палаты купца Лихонина...
    • 1/5 эт.
    197 000 000 Р
    Агент
    +7 (986) Показать номер
    Посмотреть контакты
    Помещение свободного назначения в Москва наб. Пресненская, 12 (300 м) - Фото 1
    Помещение свободного назначения в Москва наб. Пресненская, 12 (300 м) - Фото 2
    1073717. Предлагаем офисное помещение, площадью 300,4 кв. м, расположенное на 24 этаже БЦ Башня Федерация Преимущества объекта:- Бизнес-центр класса А- Шаговая доступность от станции метро Деловой центр (1-2 минуты пешком)- Этаж: 24- Помещение с предлагается...
    • 24/97 эт.
    206 000 000 Р
    Агент
    +7 (938) Показать номер
    Посмотреть контакты

    Не нашли подходящего объявления?

    Оставьте заявку, и наши риэлторы подберут псн в районе Москвы

    (0)