106 874 496 Р 1 285 700 $ или 1 129 000

Состояние и оснащение

Количество этажей
3
Развернуть
Агент
+7 (915) 018-14-29
Начать чат с агентом

Помещение свободного назначения (403 м)

Уважаемый Покупатель, предлагаем Вам приобрести в БЦ Салют помещение свободного назначения 403.3 м на -2 этаже в собственность на выгодных условиях.Приточно-вытяжная вентиляция. Центральное кондиционирование. Пожарная сигнализация. Интернет, телефония. Охрана. Видеонаблюдение. Система контроля доступа. Наземная парковка. ЗАО Москвы. В 15 минутах от м. Тропарево, Юго-ЗападнаяБыстро реагируем на обращения, организуем встречу на объекте в удобное для Вас время, направим план помещения и ответим на все возникшие вопросы Звоните сейчас и получите лучшие условия на рынке ID: o99889

Читать полностью
    Позвонить Написать
    106 874 496 Р1 285 700 $ или 1 129 000
    Агент
    +7 (915) 018-14-29
    Начать чат с агентом
    Похожие предложения
    Помещение свободного назначения (396.6 м) - Фото 1
    Помещение свободного назначения (396.6 м) - Фото 2
    Продажа ПСН 396.6 кв.м на -1 этаже в бизнес-центре «Lunar (Лунар) по адресу Москва, Ленинский проспект, 38.Помещение без отделкиПланировка open-spaceВход общий с улицыВитринное остекление – нетВысота потолков 5.5 мЭлектрическая мощность 38,9Цена за кв.м:Цена...
    • 6 этажей
    118 980 000 Р
    Агент
    +7 (984) Показать номер
    Посмотреть контакты
    Помещение свободного назначения в Москва Ленинский просп., 75А (300 м) - Фото 1
    Помещение свободного назначения в Москва Ленинский просп., 75А (300 м) - Фото 2
    Михаил. м. Вавиловская, Ленинский проспект, 1 минута от метро, продается помещение свободного назначения общей площадью 300 кв.м., 1-й и 2-й этаж административного, первая линия, вход с проспекта, 150 кВт электроэнергии, кондиционеры, вентиляция, высота...
    • 1/2 эт.
    119 000 000 Р
    Агент
    +7 (986) Показать номер
    Посмотреть контакты
    Помещение свободного назначения в Москва Летниковская ул., 10С3 (60 м) - Фото 1
    Помещение свободного назначения в Москва Летниковская ул., 10С3 (60 м) - Фото 2
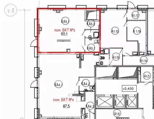
    738370. Предлагаем торговое помещение в ЖК Voxhall , площадью 60.1 кв.м, расположенное на первом этаже 25-этажного жилого дома. Без комиссии для покупателя.Преимущества объекта:-ЖК состоит из 4 корпусов переменной этажности (от 18 до 25 этажей), рассчитанных...
    • 1/25 эт.
    102 170 000 Р
    Агент
    +7 (938) Показать номер
    Посмотреть контакты
    Продажа ПСН, м. Тульская, Холодильный пер. - Фото 1
    Продажа ПСН, м. Тульская, Холодильный пер. - Фото 2
    Продажа ПСН, м. Тульская, Холодильный пер. - Фото 3
    Продажа ПСН, м. Тульская, Холодильный пер. - Фото 4
    Продажа ПСН, м. Тульская, Холодильный пер. - Фото 5
    Продажа ПСН, м. Тульская, Холодильный пер. - Фото 6
    Продажа ПСН, м. Тульская, Холодильный пер. - Фото 7
    общая площадь 242.7м², полезная площадь 242.7м²

    Арендный бизнес - офис рекрутингового агентства. ПСН площадью 242,7 м2 (№4109) расположено в Деловом квартале в стиле Лофт – в ДК «Товарищество Рябовской Мануфактуры», в 3-х минутах пешком от метро Тульская. Помещение расположено на 1-м этаже в 2-х...
    • 242.7 м²
    • 1-й эт.
    104 361 000 Р
    Агент
    +7 (903) Показать номер
    Посмотреть контакты
    Продажа ПСН, м. Селигерская, Коровинское ш. - Фото 1
    Продажа ПСН, м. Селигерская, Коровинское ш. - Фото 2
    Продажа ПСН, м. Селигерская, Коровинское ш. - Фото 3
    Продажа ПСН, м. Селигерская, Коровинское ш. - Фото 4
    общая площадь 208.4м², полезная площадь 208.4м²

    Меньше минуты от станции метро Селигерская! 1-я линия домов! Предлагается на продажу помещение свободного назначения, расположенное по адресу: Коровинское ш., д.1А. Сверхинтенсивный пешеходный и автомобильный трафик, удобные транспортные пути, отличная...
    • 208.4 м²
    • 1-й эт.
    114 000 000 Р
    Агент
    +7 (903) Показать номер
    Посмотреть контакты

    Не нашли подходящего объявления?

    Оставьте заявку, и наши риэлторы подберут псн в районе Москвы

    (0)