82 355 000 Р 970 700 $ или 849 800

Информация об помещении

1
Этаж

Состояние и оснащение

Количество этажей
3
Развернуть
Агент
+7 (915) 018-14-29
Начать чат с агентом

Помещение свободного назначения (507 м)

Уважаемый Покупатель, предлагаем Вам приобрести в БЦ Салют помещение свободного назначения 506.8 м на 1 этаже в собственность на выгодных условиях.Приточно-вытяжная вентиляция. Центральное кондиционирование. Пожарная сигнализация. Интернет, телефония. Охрана. Видеонаблюдение. Система контроля доступа. Наземная парковка. ЗАО Москвы. В 15 минутах от м. Тропарево, Юго-ЗападнаяБыстро реагируем на обращения, организуем встречу на объекте в удобное для Вас время, направим план помещения и ответим на все возникшие вопросы Звоните сейчас и получите лучшие условия на рынке ID: o99862

Читать полностью
    Позвонить Написать
    82 355 000 Р970 700 $ или 849 800
    Агент
    +7 (915) 018-14-29
    Начать чат с агентом
    Похожие предложения
    Продается ПСН 141.4 м2 - Фото 1
    полезная площадь 141.4м²

    Продажа ПСН площадью 141.4 м2 в 7 мин. пешком от м. Озёрная. Помещение располагается в 30-этажном здании, находится на 1 этаже здания. Возможное назначение - коммерция, высота потолков 3 м, внутри типовой ремонт, год постройки 2025, застройщик здания...
    • 141.4 м²
    • 1/30 эт.
    82 790 400 Р
    Агент
    +7 (495) Показать номер
    Посмотреть контакты
    Помещение свободного назначения в Москва ул. Молостовых, 21/34 (650 м) - Фото 1
    Помещение свободного назначения в Москва ул. Молостовых, 21/34 (650 м) - Фото 2
    1143513. Предлагаем помещение свободного назначения с якорным арендатором супермаркет Чижик , площадью 650,2 кв. м., расположенное в цоколе жилого дома. Без комиссии для покупателя.Преимущества объекта:-первая линия ул. Молостовых;-12 минут пешком от...
    • -1/14 эт.
    83 000 000 Р
    Агент
    +7 (938) Показать номер
    Посмотреть контакты
    Помещение свободного назначения в Москва Большая Садовая ул., вл6-8 ... - Фото 1
    Помещение свободного назначения в Москва Большая Садовая ул., вл6-8 ... - Фото 2
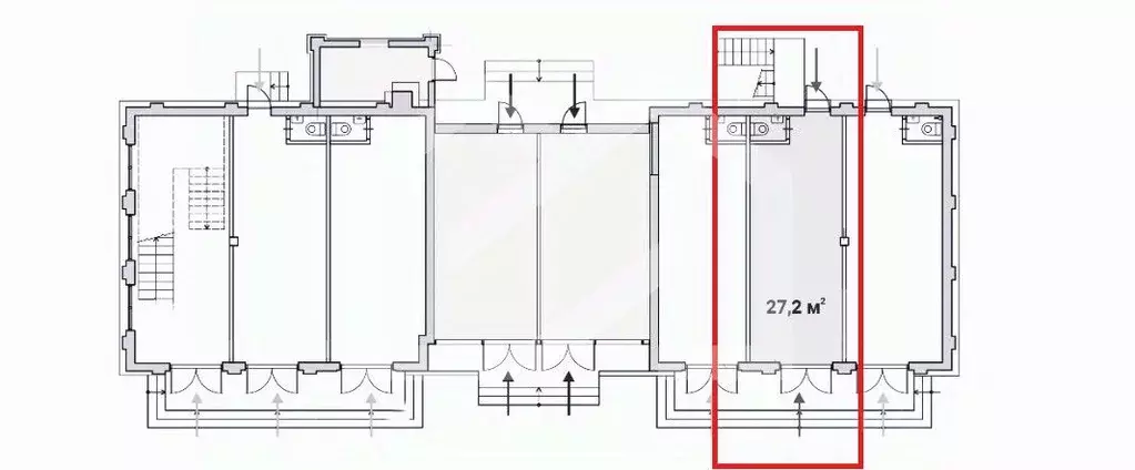
    687064. Предлагаем к приобретению торговое помещение, площадью 27.2 кв. м., расположенное на первом этаже 2-этажного административного здания. Без комиссии для покупателя. Преимущества объекта:-первая линия Садового кольца;-пешая доступность от станции...
    • 1/2 эт.
    82 500 000 Р
    Агент
    +7 (938) Показать номер
    Посмотреть контакты
    Помещение свободного назначения в Москва Большая Садовая ул., вл6-8 ... - Фото 1
    Помещение свободного назначения в Москва Большая Садовая ул., вл6-8 ... - Фото 2
    687062. Предлагаем к приобретению торговое помещение, площадью 27 кв. м., расположенное на первом этаже административного здания. Без комиссии для покупателя. Преимущества объекта: -первая линия Садового кольца;-пешая доступность от станции метро Маяковская...
    • 1/2 эт.
    82 500 000 Р
    Агент
    +7 (938) Показать номер
    Посмотреть контакты
    Помещение свободного назначения в Москва Южнопортовая ул., 42С5 (129 ... - Фото 1
    Помещение свободного назначения в Москва Южнопортовая ул., 42С5 (129 ... - Фото 2
    903323. Предлагаем к приобретению помещение свободного назначения, площадью 128,9 кв. м., расположенное на первом этаже жилого дома в ЖК Portland . Корпус 7, секция 3. Без комиссии для покупателя.Преимущества объекта:-первая береговая линия;-ЖК состоит...
    • 1/29 эт.
    81 439 020 Р
    Агент
    +7 (938) Показать номер
    Посмотреть контакты

    Не нашли подходящего объявления?

    Оставьте заявку, и наши риэлторы подберут псн в районе Москвы

    (0)