86 000 000 Р 1 034 600 $ или 908 500

Информация об помещении

1
Этаж

Состояние и оснащение

Количество этажей
16
Развернуть
Агент
+7 (932) 441-39-13
Начать чат с агентом

Помещение свободного назначения (284.2 м)

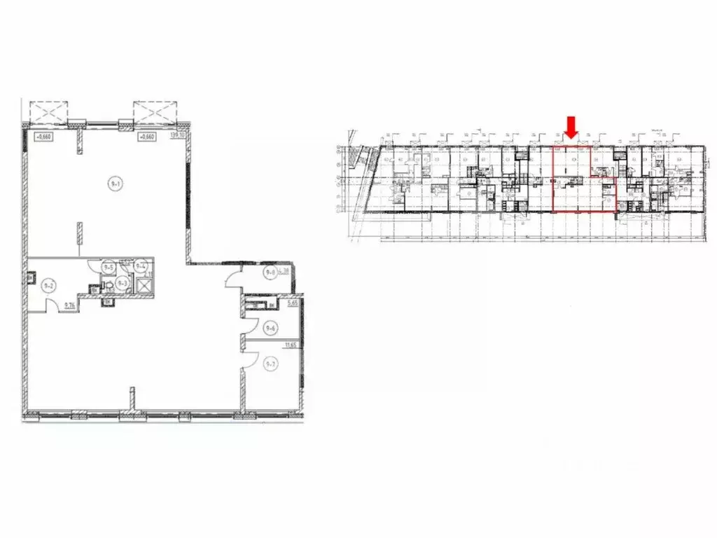
Продажа ПСН 284.2 м у м. Бабушкинская (СВАО) Расположение: Москва, СВАО, р-н Лосиноостровский, ул. Изумрудная, 24К11-й этаж 16-этажного жилого дома Транспорт: Бабушкинская 19 мин. пешком Медведково 6 мин. на транспорте Свиблово 6 мин. на транспорте Описание помещения: Площадь: 284.2 м Состояние: Витринное остекление Коммуникации: Высота потолков: 4.5 м Мощность: 59 кВт Центральные коммуникации, технологическая вытяжка для общепита Инфраструктура: Отдельный вход с фасада Отдельный вход со двора Ключевые преимущества: Высокие потолки 4.5 м Витринное остекление Готовая технологическая вытяжка под общепит Два отдельных входа (с улицы и со двора) Условия аренды: • Налогообложение: УСН• Тип сделки: Продажа объекта недвижимости Просторное помещение с высокими потолками и двумя входами. Идеально подходит для ресторана, кафе, магазина или сервисного центра. Готовая вытяжка и витринное остекление создают все условия для успешного бизнеса. Звоните для организации просмотра и уточнения деталей Объект №.

Читать полностью
    Позвонить Написать
    86 000 000 Р1 034 600 $ или 908 500
    Агент
    +7 (932) 441-39-13
    Начать чат с агентом
    Похожие предложения
    Помещение свободного назначения в Москва просп. Лихачева, 20 (178 м) - Фото 1
    Помещение свободного назначения в Москва просп. Лихачева, 20 (178 м) - Фото 2
    644466. Предлагаем к приобретению помещение свободного назначения, площадью 177,7 кв. м., расположенное на первом этаже жилого дома в ЖК бизнес-класса Nagatino i-Land . Корпус 1. Без комиссии для покупателя.Преимущества объекта: -ЖК состоит из 12 корпусов...
    • 1/14 эт.
    86 579 704 Р
    Агент
    +7 (938) Показать номер
    Посмотреть контакты
    Помещение свободного назначения в Москва Долгоруковская ул., 40 (28 м) - Фото 1
    Помещение свободного назначения в Москва Долгоруковская ул., 40 (28 м) - Фото 2
    1020848. Предлагаем помещение свободного назначения, площадью 28.4 кв. м, расположенное на первом этаже 14-этажного жилого дома. Без комиссии для покупателя.Преимущества объекта:-на пересечении ул. Долгоруковская и Селезнёвская;-первая линия;-шаговая...
    • 1/14 эт.
    86 400 000 Р
    Агент
    +7 (938) Показать номер
    Посмотреть контакты
    Помещение свободного назначения в Москва Тагильская ул., 6 (222 м) - Фото 1
    Помещение свободного назначения в Москва Тагильская ул., 6 (222 м) - Фото 2
    ЛотПредложение от Собственника Продажа коммерческого помещения в новостройке: 222,30 кв. м., 1 этаж в комплексе Метроном, 2 очередь, корп.1, сдача: 3кв. , этажей: 31, адрес Тагильская ул., д. 6, Застройщик: Брусника.Два квартала переменной высотности,...
    • 1/31 эт.
    85 540 000 Р
    Агент
    +7 (986) Показать номер
    Посмотреть контакты
    Помещение свободного назначения в Москва Малая Бронная ул., 13 (155 м) - Фото 1
    Помещение свободного назначения в Москва Малая Бронная ул., 13 (155 м) - Фото 2
    Данные получены с сайта ГИС Торги.Продажа имущества, находящегося в собственности города Москвы, нежилое помещение по адресу: г. Москва, ул. Малая Бронная, д. 13, общей площадью 154,9 кв. м, (Этаж 1), кадастровый номер: 77:01:0001068:2555.
    • 5 этажей
    86 687 000 Р
    Агент
    +7 (933) Показать номер
    Посмотреть контакты
    Помещение свободного назначения в Москва ул. Земляной Вал, 25 (56 м) - Фото 1
    Помещение свободного назначения в Москва ул. Земляной Вал, 25 (56 м) - Фото 2
    АГЕНТАМ ПЛАТИМ. Рентавик — участник ассоциации КОКОН Жилой дом расположен в Басманном районе Центрального административного округа города Москвы. Стоит отметить выгодное транспортное положение здания - в шаговой доступности от него расположена станция...
    • 1/9 эт.
    85 000 000 Р
    Агент
    +7 (933) Показать номер
    Посмотреть контакты

    Не нашли подходящего объявления?

    Оставьте заявку, и наши риэлторы подберут псн в районе Москвы

    (0)