39 900 000 Р 496 700 $ или 430 300

Информация об помещении

1
Этаж

Состояние и оснащение

Количество этажей
31
Развернуть
Агент
+7 (916) 235-89-20
Начать чат с агентом

Помещение свободного назначения в Москва Тагильская ул., 6/1 (84 м)

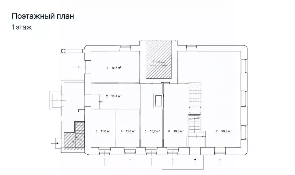
Лот 160204.В продажу предлагается торговое помещение в ЖК Метроном , по адресу: Москва, Тагильская 6/1, общей площадью 83.8 кв.м. Ближайшие станции метро: Бульвар Рокоссовского — всего 20 минут пешком, Щелковская и Партизанская — 5 минут на транспорте. Помещение находится на первом этаже 31-этажного жилого дома. ЖК комфорт-класса на 2628 квартир, сдаются в предчистовой отделке. Плотная жилая застройка. 6942 квартиры в радиусе 500 м. Ввод в эксплуатацию - 3 квартал 2026 года. Фото в презентации на момент марта 2026 года. Технические характеристики:Отдельный вход с фасада, высокие потолки. Витринное остекление. Открытая планировка. Коммерческие условия: Стоимость:. Стоимость за кв.м:.

Читать полностью
    Позвонить Написать
    39 900 000 Р496 700 $ или 430 300
    Агент
    +7 (916) 235-89-20
    Начать чат с агентом
    Похожие предложения
    Помещение свободного назначения в Москва Тагильская ул., 6/1 (84 м) - Фото 1
    Помещение свободного назначения в Москва Тагильская ул., 6/1 (84 м) - Фото 2
    979552. Предлагаем помещение свободного назначения в ЖК Квартал Метроном , площадью 83.8 кв. м, расположенное на первом этаже 31-этажного жилого дома. Без комиссии для покупателя.Преимущества объекта:-первая линия;-ЖК состоит из 2-х 31-этажных корпусов,...
    • 1/31 эт.
    39 900 000 Р
    Агент
    +7 (938) Показать номер
    Посмотреть контакты
    Помещение свободного назначения в Москва Открытое ш., 30 (128 м) - Фото 1
    Помещение свободного назначения в Москва Открытое ш., 30 (128 м) - Фото 2
    Коммерческое помещение площадью 127,5 м, расположено по адресу: г. Москва, Открытое шоссе, 30, помещение 48Н, район Метрогородок. Объект занимает 1 этаж в здании с этажностью 25 этажей. Помещение без отделки, свободного назначения, имеет отдельный вход....
    • 1/25 эт.
    40 132 000 Р
    Агент
    +7 (985) Показать номер
    Посмотреть контакты
    Помещение свободного назначения в Москва БК Прокшино тер., 3 (65 м) - Фото 1
    Помещение свободного назначения в Москва БК Прокшино тер., 3 (65 м) - Фото 2
    1102260. Предлагаем помещение свободного назначения в бизнес-квартале Прокшино , площадью 64.6 кв. м, расположенное на первом этаже 12-этажного жилого дома. Корпус: 3.1. Без комиссии для покупателя.Преимущества объекта:-первая линия Филатовского шоссе;-офисный...
    • 1/12 эт.
    39 710 266 Р
    Агент
    +7 (938) Показать номер
    Посмотреть контакты
    Помещение свободного назначения в Москва Родные кварталы жилой ... - Фото 1
    Помещение свободного назначения в Москва Родные кварталы жилой ... - Фото 2
    1094933. Предлагаем к приобретению помещение свободного назначения, площадью 123,5 кв. м., расположенное на первом этаже жилого дома в ЖК Родные кварталы . Без комиссии для покупателя.Преимущества объекта:-первая линия;-ЖК состоит из трёх домов и 8 корпусов...
    • 1/10 эт.
    40 587 040 Р
    Агент
    +7 (938) Показать номер
    Посмотреть контакты
    Помещение свободного назначения в Москва Бауманская ул., 33/2С3 (19 м) - Фото 1
    Помещение свободного назначения в Москва Бауманская ул., 33/2С3 (19 м) - Фото 2
    1112590. Предлагаем к приобретению торговое помещение, площадью 15,7 кв. м., расположенное на первом этаже жилого дома. Без комиссии для покупателя.Преимущества объекта: -в 65 метрах станция метро Бауманская;-центр плотного жилого массива, премиальная...
    • 1/4 эт.
    39 600 000 Р
    Агент
    +7 (938) Показать номер
    Посмотреть контакты

    Не нашли подходящего объявления?

    Оставьте заявку, и наши риэлторы подберут псн в районе Москвы

    (0)