177 600 000 Р 2 191 200 $ или 1 916 800

Информация об помещении

3
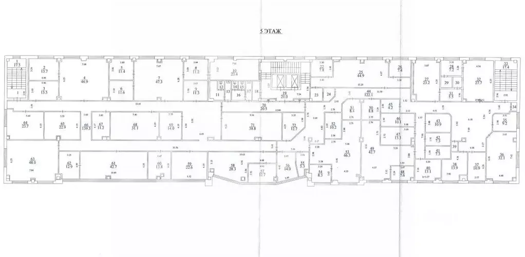
Этаж

Состояние и оснащение

Количество этажей
6
Развернуть
Агент
+7 (938) 656-74-88
Начать чат с агентом

Помещение свободного назначения в Москва ул. Бутырский Вал, 68/70С1 ...

907982. Предлагаем офисное помещение площадью 444 кв. м, расположенное на 3 этаже БЦ Бейкер Плаза Преимущества объекта:- Бизнес-центр класса В+- Шаговая доступность от станции метро Савёловская (8 минут пешком)- Этаж: 3- Помещение предлагается с отделкой- Планировка смешанная- На первом этаже представительская входная группа, просторный холл, зона ожидания.Оперативно организуем для Вас показ и ответим на все вопросы.Свяжитесь с нами для получения дополнительной информации

Читать полностью
    Позвонить Написать
    177 600 000 Р2 191 200 $ или 1 916 800
    Агент
    +7 (938) 656-74-88
    Начать чат с агентом
    Похожие предложения
    Помещение свободного назначения в Москва ул. Горбунова, 2С3 (1165 м) - Фото 1
    Помещение свободного назначения в Москва ул. Горбунова, 2С3 (1165 м) - Фото 2
    В Бизнес-центре Гранд Сетунь Плаза реализуется помещение 1165 кв.м. на 0м этаже с действующей столовой. Гранд Сетунь Плаза качественный офисный центр класса B+ со стильной входной группой. Достойные ключевые параметры действующего бизнеса:Ассортимент...
    • -1/10 эт.
    180 000 000 Р
    Агент
    +7 (915) Показать номер
    Посмотреть контакты
    Помещение свободного назначения в Москва проезд Серебрякова, 6 (1469 ... - Фото 1
    Помещение свободного назначения в Москва проезд Серебрякова, 6 (1469 ... - Фото 2
    827895. Предлагаем офисное помещение с гарантированным арендным потоком, площадью 1 469 кв. м., расположенное на 1 этаже в Деловом Центре Серебрякова Преимущества объекта:- Бизнес-центр класса В- Шаговая доступность от станции метро Ботанический сад...
    • 1/5 эт.
    183 625 000 Р
    Агент
    +7 (938) Показать номер
    Посмотреть контакты
    Помещение свободного назначения в Москва Дмитровское ш., 81 (627 м) - Фото 1
    Помещение свободного назначения в Москва Дмитровское ш., 81 (627 м) - Фото 2
    1095706. Предлагаем офисное помещение площадью 627 кв. м, расположенное в бизнес-центре Ритм Преимущества объекта:- Бизнес-центр класса В+- Шаговая доступность от станции метро Селигерская (5 минут пешком)- Этаж: 2- Помещение предлагается с отделкой-...
    • 2/6 эт.
    170 000 000 Р
    Агент
    +7 (938) Показать номер
    Посмотреть контакты
    Помещение свободного назначения в Москва проезд Серебрякова, 6 (1307 ... - Фото 1
    Помещение свободного назначения в Москва проезд Серебрякова, 6 (1307 ... - Фото 2
    827915. Предлагаем офисное помещение с гарантированным арендным потоком, площадью 1 307 кв. м., расположенное на 5 этаже в Деловом Центре Серебрякова Преимущества объекта:- Бизнес-центр класса В- Шаговая доступность от станции метро Ботанический сад...
    • 5/5 эт.
    176 445 000 Р
    Агент
    +7 (938) Показать номер
    Посмотреть контакты
    Помещение свободного назначения в Москва Крылатская ул., 33К3 (651 м) - Фото 1
    Помещение свободного назначения в Москва Крылатская ул., 33К3 (651 м) - Фото 2
    688436. Предлагаем торговое помещение с арендатором HUAWEI, площадью 650,8 кв. м., расположенное на первом этаже административного здания, ТЦ. Без комиссии для покупателя. Преимущества объекта:-пешая доступность от станции метро Крылатское (14 минут пешком);-объект...
    • 1/2 эт.
    178 500 000 Р
    Агент
    +7 (938) Показать номер
    Посмотреть контакты

    Не нашли подходящего объявления?

    Оставьте заявку, и наши риэлторы подберут псн в районе Москвы

    (0)