41 400 000 Р 516 000 $ или 450 100

Информация об помещении

1
Этаж

Состояние и оснащение

Количество этажей
9
Развернуть
Агент
+7 (916) 235-89-20
Начать чат с агентом

Помещение свободного назначения в Москва просп. Мира, 97 (13 м)

Лот 157311.Предлагается в продажу помещение свободного назначения с арендатором, в пристроенной части к жилому дому по адресу: проспект Мира д.97. Первая линия домов, одна из знаковых улиц Москвы. В 2 минутах от м. Алексеевская, непосредственно у выхода из подземного перехода. Окружение: плотная жилая застройка. Технические характеристики:Общая площадь - 12.8 кв.м. Зальная планировка. Отдельный вход. Витринные окна, возможность размещения рекламной вывески. Высота потолка: 3,7 м. Наличие мокрых точек. Мощность по запросу.Коммерческие условия:Стоимость -Стоимость за кв.м -Арендатор: сеть магазинов Табак МАП:ГАП:

Читать полностью
    Позвонить Написать
    41 400 000 Р516 000 $ или 450 100
    Агент
    +7 (916) 235-89-20
    Начать чат с агентом
    Похожие предложения в Москве
    Помещение свободного назначения в Москва просп. Мира, 97 (12 м) - Фото 1
    Помещение свободного назначения в Москва просп. Мира, 97 (12 м) - Фото 2
    1069591. Предлагаем к приобретению помещение свободного назначения, площадью 12,1 кв. м., расположенное на первом этаже жилого дома. Без комиссии для покупателя. Преимущества объекта: -первая линия;-3 минуты пешком от станции метро Алексеевская;-удобный...
    • 1/10 эт.
    41 400 000 Р
    Агент
    +7 (938) Показать номер
    Посмотреть контакты
    Помещение свободного назначения в Москва просп. Мира, 97 (13 м) - Фото 1
    Помещение свободного назначения в Москва просп. Мира, 97 (13 м) - Фото 2
    1069596. Предлагаем к приобретению помещение свободного назначения, площадью 13,7 кв. м., расположенное на первом этаже жилого дома. Без комиссии для покупателя. Преимущества объекта: -первая линия;-3 минуты пешком от станции метро Алексеевская;-удобный...
    • 1/10 эт.
    41 400 000 Р
    Агент
    +7 (938) Показать номер
    Посмотреть контакты
    Помещение свободного назначения в Москва просп. Мира, 97 (12 м) - Фото 1
    Помещение свободного назначения в Москва просп. Мира, 97 (12 м) - Фото 2
    1069591. Предлагаем к приобретению помещение свободного назначения, площадью 12,1 кв. м., расположенное на первом этаже жилого дома. Без комиссии для покупателя. Преимущества объекта: -первая линия;-3 минуты пешком от станции метро Алексеевская;-удобный...
    • 1/10 эт.
    41 400 000 Р
    Агент
    +7 (938) Показать номер
    Посмотреть контакты
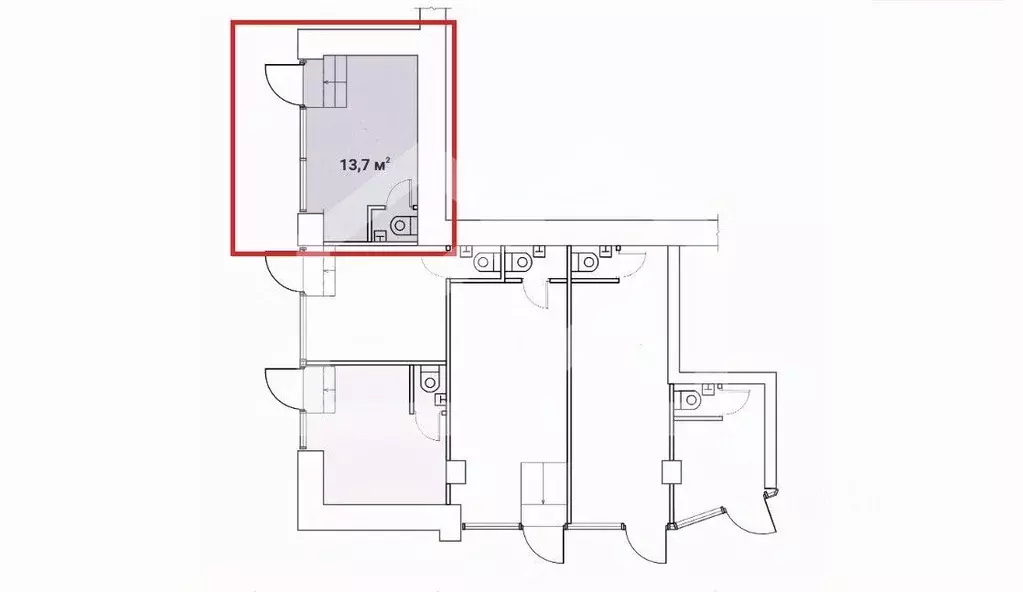
    Помещение свободного назначения в Москва просп. Мира, 97 (13 м) - Фото 1
    Помещение свободного назначения в Москва просп. Мира, 97 (13 м) - Фото 2
    1069596. Предлагаем к приобретению помещение свободного назначения, площадью 13,7 кв. м., расположенное на первом этаже жилого дома. Без комиссии для покупателя. Преимущества объекта: -первая линия;-3 минуты пешком от станции метро Алексеевская;-удобный...
    • 1/10 эт.
    41 400 000 Р
    Агент
    +7 (938) Показать номер
    Посмотреть контакты
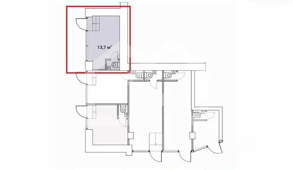
    Помещение свободного назначения в Москва просп. Мира, 97 (13 м) - Фото 1
    Помещение свободного назначения в Москва просп. Мира, 97 (13 м) - Фото 2
    1069596. Предлагаем к приобретению помещение свободного назначения, площадью 13,7 кв. м., расположенное на первом этаже жилого дома. Без комиссии для покупателя. Преимущества объекта: -первая линия;-3 минуты пешком от станции метро Алексеевская;-удобный...
    • 1/10 эт.
    41 400 000 Р
    Агент
    +7 (938) Показать номер
    Посмотреть контакты

    Не нашли подходящего объявления?

    Оставьте заявку, и наши риэлторы подберут псн в районе Москвы

    (0)