39 500 000 Р 492 400 $ или 429 400

Информация об помещении

1
Этаж

Состояние и оснащение

Количество этажей
9
Развернуть
Агент
+7 (916) 698-78-34
Начать чат с агентом

Помещение свободного назначения в Москва Ленинский просп., 70/11 (39 ...

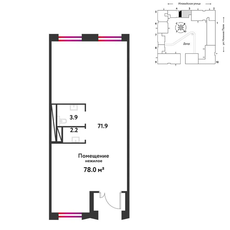
Арт.Продается помещение свободного назначения 39,4 кв.м. на 1 этаже 9ми этажного жилого дома на ключевой артерии города Ленинский проспектПомещение без ремонта, высокие потолки 3,7 м, витринное остекление, мокрая точка, 10 кВт,. вывеска отдельный входПреимущества локацииТранспортная доступностьОдним из главных достоинств рассматриваемой локации является её высокая транспортная доступность. Расположенная вблизи станций метрополитена (Вавиловская, Новаторская, Университет , и др), она обладает следующими преимуществами:Близость к крупным транспортным узлам;Удобство доступа для автомобилистов и пассажиров общественного транспорта;Высокий пассажиропоток, обеспечивающий стабильный приток покупателей.Наличие остановок наземного транспорта значительно увеличивает охват целевой аудитории.Инфраструктура районаЛенинский проспект традиционно воспринимается как один из наиболее престижных районов Москвы. Он отличается наличием множества образовательных учреждений, культурных заведений и медицинских центров, что способствует формированию устойчивого потока посетителей.Низкая конкуренцияНесмотря на свою популярность, район Ленинского проспекта испытывает недостаток качественных торговых площадей. Большая часть имеющихся помещений расположена в старом жилом фонде, что ограничивает возможности модернизации и адаптации под нужды современных арендаторов. Этот фактор создает уникальную возможность для владельцев недвижимости предлагать конкурентоспособные условия аренды и привлекать широкий круг арендаторов.Рост популярности формата street retail;Увеличение доли электронной коммерции;Повышение требований к качеству предоставляемых услуг и комфорту покупателей.Учитывая эти тенденции, можно предположить, что в ближайшие годы спрос на высококачественную торговую недвижимость продолжит расти. Особенно привлекательными будут объекты, расположенные в центральных районах с высокой проходимостью и удобной логистикой.Стоимость помещения 39.500.уб с НДС. Возможна покупка через финансовую аренду (лизинг) с НДС.Прямой договор. Оперативный показ.

Читать полностью
    Позвонить Написать
    39 500 000 Р492 400 $ или 429 400
    Агент
    +7 (916) 698-78-34
    Начать чат с агентом
    Похожие предложения
    Помещение свободного назначения в Москва Ленинский просп., 70/11 (27 ... - Фото 1
    Помещение свободного назначения в Москва Ленинский просп., 70/11 (27 ... - Фото 2
    Арт.Продается помещение свободного назначения 27,3 кв.м. на 1 этаже 9ми этажного жилого дома на ключевой артерии города Ленинский проспектПомещение без ремонта, высокие потолки 3,7 м, витринное остекление, мокрая точка, 10 кВт,. вывеска отдельный входПреимущества...
    • 1/9 эт.
    41 000 000 Р
    Агент
    +7 (916) Показать номер
    Посмотреть контакты
    Помещение свободного назначения в Москва Ленинский просп., 70/11 (25 ... - Фото 1
    Помещение свободного назначения в Москва Ленинский просп., 70/11 (25 ... - Фото 2
    Арт.Продается помещение свободного назначения 25,4 кв.м. на 1 этаже 9ми этажного жилого дома на ключевой артерии города Ленинский проспектПомещение без ремонта, высокие потолки 3,7 м, витринное остекление, мокрая точка, 10 кВт,. вывеска отдельный входПреимущества...
    • 1/9 эт.
    39 500 000 Р
    Агент
    +7 (916) Показать номер
    Посмотреть контакты
    Продается ПСН 78 м2 - Фото 1
    Продается ПСН 78 м2 - Фото 2
    Продается ПСН 78 м2 - Фото 3
    Продается ПСН 78 м2 - Фото 4
    Продается ПСН 78 м2 - Фото 5
    полезная площадь 78м²

    Стрит-ритейл в новом ЖК «Страна. Заречная» в Москве от федерального застройщика «Страна Девелопмент». Проект расположен в пешей доступности от станции МЦД «Перерва». Район Марьино активно развивается: строятся новые жилые кварталы, социальные объекты...
    • 78 м²
    • 1/38 эт.
    39 990 000 Р
    Агент
    +7 (495) Показать номер
    Посмотреть контакты
    Помещение свободного назначения в Москва Гостиничный проезд, 10 (107 ... - Фото 1
    4 минуты пешком от метро. нежилое помещение свободного назначения, на 1 этаже жилого многоквартирного дома.угловое Помещение на 1-й линии с высоким пешеходным и автомобильным трафиком, хорошо просматривается с проезжей части. 2 входа, витринное остекление....
    • 1/22 эт.
    39 000 000 Р
    Агент
    +7 (915) Показать номер
    Посмотреть контакты
    Помещение свободного назначения (107.4 м) - Фото 1
    Помещение свободного назначения (107.4 м) - Фото 2
    Объект №6154. Продается офис (офис). Общая площадь 107.4 м. 3 этаж из 21 этажей. Свободный доступ, электричество подключено 220 вольт, общий вход, потолок 3.2 м. Вдобавок пропускная система, охраняемая парковка, общепит рядом, интернет, выбор оператора...
    • 3/21 эт.
    39 738 000 Р
    Агент
    +7 (966) Показать номер
    Посмотреть контакты

    Не нашли подходящего объявления?

    Оставьте заявку, и наши риэлторы подберут псн в районе Москвы

    (0)