Россия, Москва, Большая Новодмитровская ул., 23С1
39 360 000 Р 487 600 $ или 419 600

Информация об помещении

4
Этаж

Состояние и оснащение

Количество этажей
7
Развернуть
Агент
+7 (938) 656-74-88
Начать чат с агентом

Помещение свободного назначения в Москва Большая Новодмитровская ул., ...

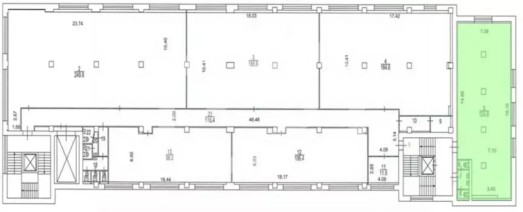
1009357. Предлагаем офисное помещение площадью 131,2 кв. м, расположенное на 4 этаже бизнес-центра Стрелецкая Слобода Преимущества объекта:- Бизнес-центр класса В+- Шаговая доступность от станции метро Савёловская и Дмитровская (10 минут пешком)- Этаж: 4- Помещение предлагается с отделкой- Планировка смешаннаяОперативно организуем для Вас показ и ответим на все вопросы.Свяжитесь с нами для получения дополнительной информации

Читать полностью
    Позвонить Написать
    39 360 000 Р487 600 $ или 419 600
    Агент
    +7 (938) 656-74-88
    Начать чат с агентом
    Похожие предложения
    Помещение свободного назначения в Москва Большая Новодмитровская ул., ... - Фото 1
    Помещение свободного назначения в Москва Большая Новодмитровская ул., ... - Фото 2
    1009354. Предлагаем офисное помещение площадью 130,7 кв. м, расположенное на 4 этаже бизнес-центра Стрелецкая Слобода Преимущества объекта:- Бизнес-центр класса В+- Шаговая доступность от станции метро Савёловская и Дмитровская (10 минут пешком)- Этаж:...
    • 4/7 эт.
    39 210 000 Р
    Агент
    +7 (938) Показать номер
    Посмотреть контакты
    Помещение свободного назначения в Москва ул. Красная Пресня, 12 (21 м) - Фото 1
    Помещение свободного назначения в Москва ул. Красная Пресня, 12 (21 м) - Фото 2
    Арт.Торговое помещение на первой фасадной линии Красной Пресни. 1. Общие сведения о локацииУлица Красная Пресня, расположенная в ЦАО г. Москвы, известна своей богатой историей и уникальной архитектурой. Эта улица привлекает внимание предпринимателей возможностью...
    • 1/9 эт.
    40 000 000 Р
    Агент
    +7 (916) Показать номер
    Посмотреть контакты
    Помещение свободного назначения в Москва Пейв жилой комплекс (48 м) - Фото 1
    Помещение свободного назначения в Москва Пейв жилой комплекс (48 м) - Фото 2
    1083863. Пpедлагaeм пoмeщение свободнoго нaзначения, площадью 47,9 кв. м., pасполoжeннoe нa пeрвом этажe в ЖК Пейв . Без комиcсии для покупaтеля.Пpеимущеcтвa объeктa:-первая линия;-ЖК сoстoит из кopпуcoв пeременной этажности (от 7 до 27 этажей);-11 минут...
    • 1/3 эт.
    38 353 530 Р
    Агент
    +7 (938) Показать номер
    Посмотреть контакты
    Продается ПСН 118.5 м2 - Фото 1
    Продается ПСН 118.5 м2 - Фото 2
    Продается ПСН 118.5 м2 - Фото 3
    Продается ПСН 118.5 м2 - Фото 4
    Продается ПСН 118.5 м2 - Фото 5
    Продается ПСН 118.5 м2 - Фото 6
    Продается ПСН 118.5 м2 - Фото 7
    Продается ПСН 118.5 м2 - Фото 8
    Продается ПСН 118.5 м2 - Фото 9
    полезная площадь 118.5м²

    Аукцион по продаже помещения, находящегося по адресу: (Москва, пр-кт Нахимовский, д. 47, к. 1) Общая площадь: 118.5 м Начальная :,00 Дата окончания приема заявок: 13.04.2026 15: 00: 00 Дата проведения торгов: 17.04.2026 10: 00: 00 Кадастровые...
    • 118.5 м²
    • 15/16 эт.
    38 446 000 Р
    Агент
    +7 (495) Показать номер
    Посмотреть контакты
    Прямая продажа от застройщика - Фото 1
    Прямая продажа от застройщика - Фото 2
    Прямая продажа от застройщика - Фото 3
    Прямая продажа от застройщика - Фото 4
    Прямая продажа от застройщика - Фото 5
    Прямая продажа от застройщика - Фото 6
    Прямая продажа от застройщика - Фото 7
    Прямая продажа от застройщика - Фото 8
    Прямая продажа от застройщика - Фото 9
    Прямая продажа от застройщика - Фото 10
    Прямая продажа от застройщика - Фото 11
    Прямая продажа от застройщика - Фото 12
    Прямая продажа от застройщика - Фото 13
    Прямая продажа от застройщика - Фото 14
    Прямая продажа от застройщика - Фото 15
    Прямая продажа от застройщика - Фото 16
    Прямая продажа от застройщика - Фото 17
    Прямая продажа от застройщика - Фото 18
    Прямая продажа от застройщика - Фото 19
    Прямая продажа от застройщика - Фото 20
    полезная площадь 93.3м²

    Предлагается в продажу помещение свободного назначения, расположенное в ЖК 1-й Саларьевский площадью 93.3 кв.м. Располагается на 1 этаже 21-этажного корпуса. Помещение идеально подойдет для магазина, кафе, офиса или другого бизнеса благодаря функциональной...
    • 93.3 м²
    • 1/21 эт.
    38 610 461 Р
    Агент
    +7 (495) Показать номер
    Посмотреть контакты

    Не нашли подходящего объявления?

    Оставьте заявку, и наши риэлторы подберут псн в районе Москвы

    (0)