Россия, Москва, Квартал Герцена жилой комплекс, к2
50 770 000 Р 642 100 $ или 552 200

Информация об помещении

1
Этаж

Состояние и оснащение

Количество этажей
30
Развернуть
Агент
+7 (985) 168-48-36
Начать чат с агентом

Помещение свободного назначения в Москва Квартал Герцена жилой ...

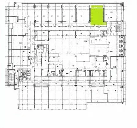
Арт.Продается помещение свободного назначения, 116,1 м, Москва, ЮАО, р-н Бирюлево Восточное, Квартал Герцена жилой комплекс, к2Площадь: 116,1 мЭтаж: 1 из 30Помещение: Свободно.Срок сдачи: 4 квартал 2027Метро: Домодедовская (5 мин.), Красногвардейская (8 мин.), Зябликово (9 мин.)Характеристики помещения: Этаж 1Отдельный вход в помещение с улицы. Площадь: 116,1 мВысота потолков: 3.9 мВитринное остекление Электричество, 20 кВтЦементно-песчаная стяжка пола Инженерные коммуникации: водоотведение, канализация, вентиляция, электричество.Парковка: наземная ЖК Квартал Герцена - это комплекс из восьми жилых домов, состоящих из разноуровневых секций высотой от 6 до 55 этажей. Расположен в Восточном Бирюлево, будут проживать более восьми тысяч человек. Здесь разместится торговый центр и павильон проката.Первые этажи жилых домов будут отданы под коммерческие помещения, в которых откроются кафе, рестораны, магазины и полезные для жителей квартала сервисы. Перспективное количество жителей жилого района 21 000 человек Количество жителей в шаговой доступности 89 000 человек Площадь застройки 12,4 Га Площадь жилья 511 541 м Прямая продажа от застройщика по договору ДДУ.Стоимость : 50.770. без НДС

Читать полностью
    Позвонить Написать
    50 770 000 Р642 100 $ или 552 200
    Агент
    +7 (985) 168-48-36
    Начать чат с агентом
    Похожие предложения
    Помещение свободного назначения в Москва 2-я Брестская ул., 6 (79 м) - Фото 1
    Помещение свободного назначения в Москва 2-я Брестская ул., 6 (79 м) - Фото 2
    1085942. Предлагаем офисное помещение площадью 78,8 кв. м, расположенное на 9 этаже в современном комплексе апартаментов Резиденция Тверская Преимущества объекта:- Здание класса А- Шаговая доступность от станции метро Маяковская (6 минут пешком)- Этаж:...
    • 6/15 эт.
    52 000 000 Р
    Агент
    +7 (938) Показать номер
    Посмотреть контакты
    Прямая продажа от застройщика - Фото 1
    Прямая продажа от застройщика - Фото 2
    Прямая продажа от застройщика - Фото 3
    Прямая продажа от застройщика - Фото 4
    Прямая продажа от застройщика - Фото 5
    Прямая продажа от застройщика - Фото 6
    Прямая продажа от застройщика - Фото 7
    Прямая продажа от застройщика - Фото 8
    Прямая продажа от застройщика - Фото 9
    Прямая продажа от застройщика - Фото 10
    Прямая продажа от застройщика - Фото 11
    Прямая продажа от застройщика - Фото 12
    Прямая продажа от застройщика - Фото 13
    Прямая продажа от застройщика - Фото 14
    Прямая продажа от застройщика - Фото 15
    Прямая продажа от застройщика - Фото 16
    Прямая продажа от застройщика - Фото 17
    Прямая продажа от застройщика - Фото 18
    Прямая продажа от застройщика - Фото 19
    Прямая продажа от застройщика - Фото 20
    полезная площадь 69.1м²

    Предлагается в продажу торговое помещение, расположенное в ЖК «Сидней Прайм»
    • 69.1 м²
    • 1/8 эт.
    51 004 510 Р
    Агент
    +7 (495) Показать номер
    Посмотреть контакты
    Помещение свободного назначения (120 м) - Фото 1
    Помещение свободного назначения (120 м) - Фото 2
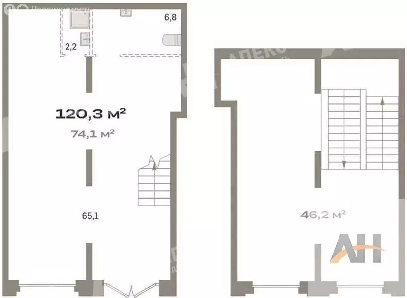
    Лот №1054156 Напишите нам в Ватсап, чтобы получить ПОДРОБНУЮ ПРЕЗЕНТАЦИЮ С ПЛАНИРОВКОЙ И ФОТОГРАФИЯМИ Продажа коммерческого помещения в новостройке: 120,30 кв. м., 1 этаж в комплексе Метроном, 2 очередь, корп.1, сдача: 3кв. , этажей: 31, адрес Тагильская...
    • 1/31 эт.
    51 920 000 Р
    Агент
    +7 (495) Показать номер
    Посмотреть контакты
    Помещение свободного назначения (144 м) - Фото 1
    Помещение свободного назначения (144 м) - Фото 2
    Лот №1054164 Напишите нам в Ватсап, чтобы получить ПОДРОБНУЮ ПРЕЗЕНТАЦИЮ С ПЛАНИРОВКОЙ И ФОТОГРАФИЯМИ Продажа коммерческого помещения в новостройке: 143,80 кв. м., 1 этаж в комплексе Метроном, 2 очередь, корп.1, сдача: 3кв. , этажей: 31, адрес Тагильская...
    • 1/31 эт.
    51 990 000 Р
    Агент
    +7 (495) Показать номер
    Посмотреть контакты
    Помещение свободного назначения в Москва Балаклавский просп., 16К2 ... - Фото 1
    Помещение свободного назначения в Москва Балаклавский просп., 16К2 ... - Фото 2
    Готовый арендный бизнес В продаже торговое помещение в 4 минутах от м. Чертановская. Помещение расположено на 1 этаже, 2 отдельных входа со стороны улицы и двора. Общая площадь 134,8 кв.м. (включая с/у, кухонную зону для персонала).Помещение продается...
    • 1/17 эт.
    50 000 000 Р
    Агент
    +7 (923) Показать номер
    Посмотреть контакты

    Не нашли подходящего объявления?

    Оставьте заявку, и наши риэлторы подберут псн в районе Москвы

    (0)