Россия, Москва, Ходынский бул., вл1
104 566 000 Р 1 303 400 $ или 1 136 800

Информация об помещении

9
Этаж

Состояние и оснащение

Количество этажей
16
Развернуть
Агент
+7 (938) 656-74-88
Начать чат с агентом

Помещение свободного назначения в Москва Ходынский бул., вл1 (194 м)

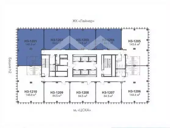
1141774. Предлагаем офисное помещение площадью 194 кв. м, расположенное на 9 этаже строящегося премиального бизнес-центра STONE Ходынка 4 .Адрес объекта отсутствует на Яндекс.Картах, поэтому указан ближайший. Адрес проекта: Хорошевское ш., первая линия парка Ходынское поле Преимущества объекта:- Бизнес-центр класса А- Шаговая доступность от станции метро ЦСКА (2-4 минуты пешком)- Этаж: 9- Помещение предлагается в состоянии под отделку- Планировка открытая- Поземный паркинг- Панорамное остекление - Высота потолков: 3,75 мСвяжитесь с нами для получения дополнительной информации

Читать полностью
    Позвонить Написать
    104 566 000 Р1 303 400 $ или 1 136 800
    Агент
    +7 (938) 656-74-88
    Начать чат с агентом
    Похожие предложения
    Помещение свободного назначения в Москва Ходынский бул., 6с2 (149 м) - Фото 1
    Помещение свободного назначения в Москва Ходынский бул., 6с2 (149 м) - Фото 2
    840913. Предлагаем офисное помещение площадью 148,8 кв. м, расположенное на 12 этаже строящегося БЦ STONE Ходынка Преимущества объекта:- Бизнес-центр класса А- Шаговая доступность от станции метро ЦСКА (1 минута пешком)- Этаж: 12- Помещение предлагается...
    • 12/13 эт.
    92 702 400 Р
    Агент
    +7 (938) Показать номер
    Посмотреть контакты
    Помещение свободного назначения в Москва Хорошевское ш., 38к1 (554 м) - Фото 1
    Помещение свободного назначения в Москва Хорошевское ш., 38к1 (554 м) - Фото 2
    806786. Предлагаем офисное помещение площадью 554 кв. м, расположенное на 4 этаже административного здания. Преимущества объекта:- Бизнес-центр класса В- Шаговая доступность от станции метро ЦСКА (12 минут пешком)- Этаж: 4- Помещение предлагается с отделкой-...
    • 4/6 эт.
    106 368 000 Р
    Агент
    +7 (938) Показать номер
    Посмотреть контакты
    Помещение свободного назначения в Москва Хорошевское ш., 38к1 (554 м) - Фото 1
    Помещение свободного назначения в Москва Хорошевское ш., 38к1 (554 м) - Фото 2
    806786. Предлагаем офисное помещение площадью 554 кв. м, расположенное на 4 этаже административного здания. Преимущества объекта:- Бизнес-центр класса В- Шаговая доступность от станции метро ЦСКА (12 минут пешком)- Этаж: 4- Помещение предлагается с отделкой-...
    • 4/6 эт.
    106 368 000 Р
    Агент
    +7 (938) Показать номер
    Посмотреть контакты
    Помещение свободного назначения в Москва Ходынский бул., 6с2 (149 м) - Фото 1
    Помещение свободного назначения в Москва Ходынский бул., 6с2 (149 м) - Фото 2
    840913. Предлагаем офисное помещение площадью 148,8 кв. м, расположенное на 12 этаже строящегося БЦ STONE Ходынка Преимущества объекта:- Бизнес-центр класса А- Шаговая доступность от станции метро ЦСКА (1 минута пешком)- Этаж: 12- Помещение предлагается...
    • 12/13 эт.
    92 702 400 Р
    Агент
    +7 (938) Показать номер
    Посмотреть контакты
    Продажа ПСН, м. Профсоюзная, ул. Вавилова - Фото 1
    Продажа ПСН, м. Профсоюзная, ул. Вавилова - Фото 2
    Продажа ПСН, м. Профсоюзная, ул. Вавилова - Фото 3
    Продажа ПСН, м. Профсоюзная, ул. Вавилова - Фото 4
    Продажа ПСН, м. Профсоюзная, ул. Вавилова - Фото 5
    Продажа ПСН, м. Профсоюзная, ул. Вавилова - Фото 6
    Продажа ПСН, м. Профсоюзная, ул. Вавилова - Фото 7
    Продажа ПСН, м. Профсоюзная, ул. Вавилова - Фото 8
    Продажа ПСН, м. Профсоюзная, ул. Вавилова - Фото 9
    Продажа ПСН, м. Профсоюзная, ул. Вавилова - Фото 10
    Продажа ПСН, м. Профсоюзная, ул. Вавилова - Фото 11
    общая площадь 259.5м², полезная площадь 259.5м²

    м. Вавиловская (700м) 8 минут пешком, 1200метров. 1-я линия домов. Продажа помещения свободного назначения. Площадь -259,5 кв.м, помещение на 1 этаже в 13ти этажном жилом доме. Два отдельных входа с фасада, большие витринные окна, высота потолков 2,7м,...
    • 259.5 м²
    • 1-й эт.
    99 000 000 Р
    PRO
    +7 (903) Показать номер
    Посмотреть контакты

    Не нашли подходящего объявления?

    Оставьте заявку, и наши риэлторы подберут псн в районе Москвы

    (0)