37 940 000 Р 479 800 $ или 412 700

Информация об помещении

2
Этаж

Состояние и оснащение

Количество этажей
4
Развернуть
Агент
+7 (915) 164-56-43
Начать чат с агентом

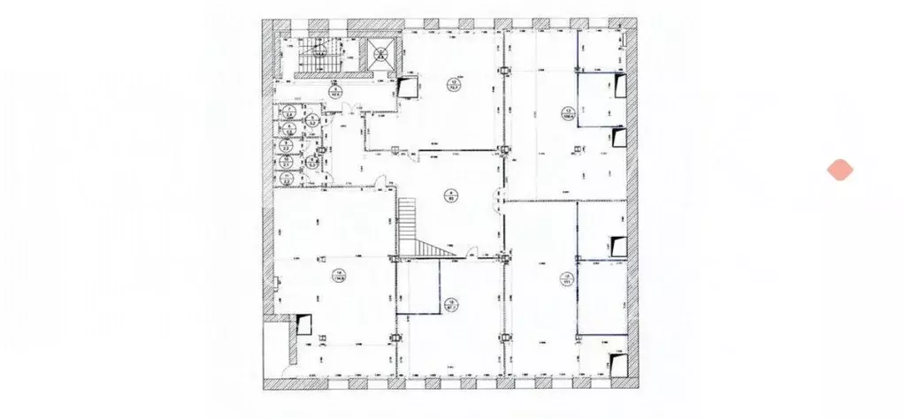
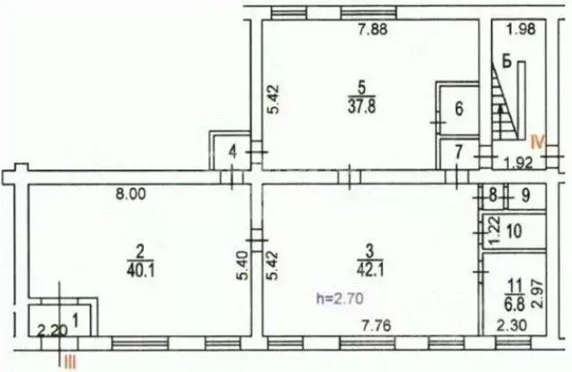
Помещение свободного назначения в Москва Спартаковский пер., 2С1 (108 ...

Предлагается в покупку уникальное помещение 108,4 кв.м. в БЦ Платформа по адресу: Спартаковский переулок, дом 2с1, всего 10 мин от Кремля Располагается в Красносельском районе, ЦАО, в непосредственной близости к крупной дорожной артерии — ТТК, удобный выезд на Русаковскую эстакаду и Нижнюю Красносельскую улицу, что позволяет без труда добираться в любую точку города. Рядом находятся станции метро Красносельская и Бауманская — в 7-10 минутах ходьбы.Сверхинтенсивный автомобильный трафик. Интенсивный пешеходный трафик. БЦ Платформа занимает территорию площадью 1.54 гектара. Стильная и благоустроенная территория. Наземная парковка на 50 м/м. Подземная парковка на 100 м/м.Комплекс выполнен в эффектном стиле loft. Класс В+.2-й этаж. Смешанная планировка. Дизайнерский ремонт. Помещение готово к въезду.В помещении есть 2 переговорные комнаты. Сан узел на этаже.Прекрасная инсоляция помещений в любое время года. Пространство, где хочется работать. Светло. Просторно. УдобноРасположение в одном из самых привлекательных районах Москвы - идеальное и продуманное решение для ведения бизнеса, пространство, в котором можно не только комфортно работать, но и проводить время, заниматься спортом, посещать различные мероприятия для развития.центральная система кондиционирования централизованные коммуникацииприточно-вытяжная вентиляциясвободный доступ 24/7, без пропускной системыкруглосуточная охрана территории и внутренних помещенийвидеонаблюдениелифтысистема пожаротушений выделенная электрическая мощность 240 кВтвысокие потолки - 3,2мблизость к основным автомагистралямширокополосный интернет, надёжный интернет-провайдер.Инфраструктура делового центра включает: подземный паркинг и наземные стоянки, кафе, минимаркет, магазины, буфет, центр медицинских услуг, салон красоты, ателье, службу курьерской доставки.Подходит под любой вид деятельности (офис, фотостудию, шоурум, проведение мероприятий и т.д.Налоговая: 01. Тип налогообложения: УСН. Тип сделки: ДКП. Чтобы получить ПОДРОБНУЮ ПРЕЗЕНТАЦИЮ С ПЛАНИРОВКОЙ И ФОТОГРАФИЯМИ, звоните или отправьте свой email и номер телефона в сообщении на портале. Поможем с планом рассадки, ремонтом, мебелью.14 лет наша компания представляет на рынке недвижимости качественные услуги для собственников и арендаторов. Звоните, записывайтесь на показ.Рады ответить на ваши вопросы с 9:00 до 21:00 часа.Арт.

Читать полностью
    Позвонить Написать
    37 940 000 Р479 800 $ или 412 700
    Агент
    +7 (915) 164-56-43
    Начать чат с агентом
    Похожие предложения
    Помещение свободного назначения в Москва Спартаковский пер., 2С1 (111 ... - Фото 1
    Помещение свободного назначения в Москва Спартаковский пер., 2С1 (111 ... - Фото 2
    Предлагается в покупку уникальное помещение 111 кв.м. в БЦ Платформа по адресу: Спартаковский переулок, дом 2с1, всего 10 мин от Кремля Располагается в Красносельском районе, ЦАО, в непосредственной близости к крупной дорожной артерии — ТТК, удобный...
    • 2/4 эт.
    38 500 000 Р
    Агент
    +7 (915) Показать номер
    Посмотреть контакты
    Помещение свободного назначения (108.4 м) - Фото 1
    Помещение свободного назначения (108.4 м) - Фото 2
    Предлагается в покупку уникальное помещение 108,4 кв.м. в БЦ Платформа по адресу: Спартаковский переулок, дом 2с1, всего 10 мин от Кремля Располагается в Красносельском районе, ЦАО, в непосредственной близости к крупной дорожной артерии — ТТК, удобный...
    • 2/4 эт.
    37 940 000 Р
    Агент
    +7 (963) Показать номер
    Посмотреть контакты
    Помещение свободного назначения (55.4 м) - Фото 1
    Помещение свободного назначения (55.4 м) - Фото 2
    В продаже помещение свободного назначения, расположенное в современном ЖК премиум-класса ORO. Объект построен. - Помещение подойдет под небольшой магазин или аптеку- Отдельный вход- Эл. мощность 3.1 кВт- Без ремонта Транспортная доступность:Из комплекса...
    • 1/10 эт.
    38 780 000 Р
    Агент
    +7 (965) Показать номер
    Посмотреть контакты
    Помещение свободного назначения в Москва 1-й Красносельский пер., 15 ... - Фото 1
    Помещение свободного назначения в Москва 1-й Красносельский пер., 15 ... - Фото 2
    В продаже помещение свободного назначения, расположенное в современном ЖК премиум-класса ORO. Объект построен.- Помещение подойдет под небольшой магазин или аптеку- Отдельный вход- Эл. мощность 3.1 кВт- Без ремонтаТранспортная доступность:Из комплекса...
    • 1/10 эт.
    38 780 000 Р
    Агент
    +7 (985) Показать номер
    Посмотреть контакты
    Помещение свободного назначения в Москва Большой Краснопрудный туп., ... - Фото 1
    Помещение свободного назначения в Москва Большой Краснопрудный туп., ... - Фото 2
    Арт.ВАШЕМУ ВНИМАНИЮ ПРЕДЛАГАЮ --- помещение свободного назначения расположенное на первой линии домов.ХАРАКТЕРИСТИКИ:-Помещение в жилом доме (не будет налога на земельный участок);-Отдельный вход с улицы + запасный в подъезд;-Две мокрые точки;-Эл.мощность...
    • 1/5 эт.
    39 000 000 Р
    Агент
    +7 (910) Показать номер
    Посмотреть контакты

    Не нашли подходящего объявления?

    Оставьте заявку, и наши риэлторы подберут псн в районе Москвы

    (0)