605 556 000 Р 7 137 800 $ или 6 248 300

Информация об помещении

1
Этаж

Состояние и оснащение

Количество этажей
5
Развернуть
Агент
+7 (938) 656-74-88
Начать чат с агентом

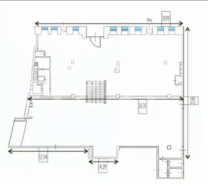
Помещение свободного назначения в Москва ул. Арбат, 39 (561 м)

878421. Предлагаем помещение свободного назначения в клубном доме Artisan , площадью 560.7 кв. м, расположенное на первом этаже 5-этажного жилого дома. Без комиссии для покупателя.Преимущества объекта:-первая линия ул. Арбат;-ЖК состоит из 7 корпусов переменной этажности (от 4 до 16 этажей), рассчитанных на 5 097 квартир;-шаговая доступность от станции метро Смоленская (5 минут пешком);-удобная транспортная доступность: 1.2 км до Садового кольца, 3.3 км до Кутузовского проспекта, 5.3 км до ТТК;-плотный жилой массив;-развитая инфраструктура района;-высокий автомобильный и пешеходный трафик;-отлично просматривается, находится в легком доступе для потенциальных клиентов;-гибкая планировка, позволяющая адаптировать пространство под различные нужды;-дизайнерский ремонт;-окна с рамой из сосны цвет профиля Remmers;-временные напольные радиаторы отопления;-вертикальная разводка систем горячего и холодного водоснабжения, канализации, приточно-вытяжной вентиляции и кондиционирования воздуха;-электрический кабель подведен к электрощиту механизации;-возможность размещения вывески;-зона погрузки/разгрузки с -1 уровня автостоянки и грузовыми лифтами;-наземная парковка.Технические параметры объекта:-отдельный вход со стороны улицы Арбат.-электрическая мощность: 20 кВт.-высота потолков: от 3.3 м до 3.6 м.Свяжитесь с нами для получения дополнительной информации

Читать полностью
    Позвонить Написать
    605 556 000 Р7 137 800 $ или 6 248 300
    Агент
    +7 (938) 656-74-88
    Начать чат с агентом
    Похожие предложения
    Помещение свободного назначения в Москва ул. Арбат, 39 (561 м) - Фото 1
    Помещение свободного назначения в Москва ул. Арбат, 39 (561 м) - Фото 2
    878421. Предлагаем помещение свободного назначения в клубном доме Artisan , площадью 560.7 кв. м, расположенное на первом этаже 5-этажного жилого дома. Без комиссии для покупателя.Преимущества объекта:-первая линия ул. Арбат;-ЖК состоит из 7 корпусов...
    • 1/5 эт.
    605 556 000 Р
    Агент
    +7 (938) Показать номер
    Посмотреть контакты
    Продается здание 11263.1 м2 - Фото 1
    Продается здание 11263.1 м2 - Фото 2
    Продается здание 11263.1 м2 - Фото 3
    Продается здание 11263.1 м2 - Фото 4
    Продается здание 11263.1 м2 - Фото 5
    Продается здание 11263.1 м2 - Фото 6
    Продается здание 11263.1 м2 - Фото 7
    полезная площадь 11263.1м²

    Аукцион по продаже здания и аренде земельного участка, находящегося по адресу: (Москва, ул. Спартаковская, д. 2/5, Дом Мусина-Пушкина) Общая площадь: 0.79 га / 11263.1 м Начальная :,00 Дата окончания приема заявок: 18.05.2026 15: 00: 00 Дата...
    • 11 263.1 м²
    • 5 этажей
    610 575 000 Р
    Агент
    +7 (495) Показать номер
    Посмотреть контакты
    Помещение свободного назначения в Москва, Москва, Зеленоград просп. ... - Фото 1
    Помещение свободного назначения в Москва, Москва, Зеленоград просп. ... - Фото 2
    918996. Предлагаем к приобретению отдельно стоящее здание, площадью 4 914,83 кв. м., расположенное в Зеленограде. Без комиссии для покупателя. Преимущества объекта: -на пересечении ул. Алабушевская и пр-та Генерала Алексеева;-7 минут на автомобиле от...
    • 2/2 эт.
    600 000 000 Р
    Агент
    +7 (938) Показать номер
    Посмотреть контакты
    Помещение свободного назначения в Москва Люблинская ул., 64 (1644 м) - Фото 1
    Помещение свободного назначения в Москва Люблинская ул., 64 (1644 м) - Фото 2
    1014662. Предлагаем двухэтажное торговое здание с подвалом, площадью 1 643.8 кв. м. Без комиссии для покупателя. Преимущества объекта:-первая линия;-17 минут пешком от станции метро Люблино;-густонаселённый жилой массив;-развитая инфраструктура района;-стабильный...
    • 2/2 эт.
    620 000 000 Р
    Агент
    +7 (938) Показать номер
    Посмотреть контакты
    Помещение свободного назначения в Москва Озерковская наб., 12 (959 м) - Фото 1
    Помещение свободного назначения в Москва Озерковская наб., 12 (959 м) - Фото 2
    838055. Предлагаем офисный особняк площадью 959,5 кв. м, расположенный на Озерковской набережнойПреимущества объекта:- Здание класса В+- Шаговая доступность от станции метро Новокузнецкая (6 минут пешком)- Помещение предлагается с отделкой- Планировка...
    • 4/4 эт.
    600 000 000 Р
    Агент
    +7 (938) Показать номер
    Посмотреть контакты

    Не нашли подходящего объявления?

    Оставьте заявку, и наши риэлторы подберут псн в районе Москвы

    (0)