690 000 000 Р 8 214 500 $ или 7 092 300

Информация об помещении

1
Этаж

Состояние и оснащение

Количество этажей
1
Развернуть
Агент
+7 (938) 656-74-88
Начать чат с агентом

Помещение свободного назначения в Москва Шипиловский проезд, 39К3 (742 ...

807078. Предлагаем отдельно стоящее одноэтажное здание с арендаторами, площадью 742.2 кв. м. Без комиссии для покупателя.Преимущества объекта:-первая линия Шипиловского проезда;-в 100 м от станции метро Орехово;-удобная транспортная доступность: 590 м до Новоцарицынского шоссе, 1.8 км до Каширского шоссе, 3.8 км до МКАД, 4.8 км до Бесединского шоссе;-плотный жилой массив;-развитая инфраструктура района;-высокий автомобильный и пешеходный трафик;-отлично просматривается, находится в легком доступе для потенциальных клиентов;-гибкая планировка, позволяющая адаптировать пространство под различные нужды;-возможность размещения вывески;-допустимый режим работы: 24/7.-наземная парковка;-рядом остановка общественного транспорта;-ЗУ (1400 кв. м).Технические параметры объекта:-несколько отдельных входных групп.-высота потолков: от 3 м до 3.6 м.Информация об арендаторах: -арендаторы: разные арендаторы.-доход: Сдано: 633,1 м/мес.Прогнозируемый арендный поток (при 100 заполняемости):/мес. (/год) - 1й годСвяжитесь с нами для получения дополнительной информации

Читать полностью
    Позвонить Написать
    690 000 000 Р8 214 500 $ или 7 092 300
    Агент
    +7 (938) 656-74-88
    Начать чат с агентом
    Похожие предложения
    Помещение свободного назначения в Москва Шипиловский проезд, 39К3 (742 ... - Фото 1
    Помещение свободного назначения в Москва Шипиловский проезд, 39К3 (742 ... - Фото 2
    РАБОТАЕМ С АГЕНТАМИ. ПЛАТИМ ВОЗНАГРАЖДЕНИЕ. Готовый арендный бизнес (ГАБ). Доходность 10 , окупаемость до 9.99 лет.Здание находится в районе Орехово-Борисово Северное Южного административного округа города Москвы. В одной минуте расположена станция метро...
    • 1/1 эт.
    690 000 000 Р
    Агент
    +7 (933) Показать номер
    Посмотреть контакты
    Помещение свободного назначения в Москва Волоколамское ш., 103 (5844 ... - Фото 1
    Помещение свободного назначения в Москва Волоколамское ш., 103 (5844 ... - Фото 2
    АГЕНТАМ ПЛАТИМ. Рентавик — участник ассоциации КОКОН Торгов-офисный центр Гвоздь, расположен на первой линии, на пересечение МКАД и Волоколамского шоссе. Здание оснащено современными техническими и телекоммуникационными средствами.Налоговая: 33. Лифты:...
    • 4/4 эт.
    684 449 280 Р
    Агент
    +7 (933) Показать номер
    Посмотреть контакты
    Помещение свободного назначения в Москва ул. Габричевского, 5К9 (2143 ... - Фото 1
    Помещение свободного назначения в Москва ул. Габричевского, 5К9 (2143 ... - Фото 2
    682993. Отдельно стоящее 4-этажное офисное здание в пешей доступности от ст. метро Щукинская. Здание 1985 года постройки, расположено на собственном земельном участке 4 679 м2. Территория огорожена, есть КПП, шлагбаум, своя парковка на 100 машиномест....
    • 4/4 эт.
    700 000 000 Р
    Агент
    +7 (938) Показать номер
    Посмотреть контакты
    Помещение свободного назначения в Москва Лобненская ул., 14 (2759 м) - Фото 1
    Помещение свободного назначения в Москва Лобненская ул., 14 (2759 м) - Фото 2
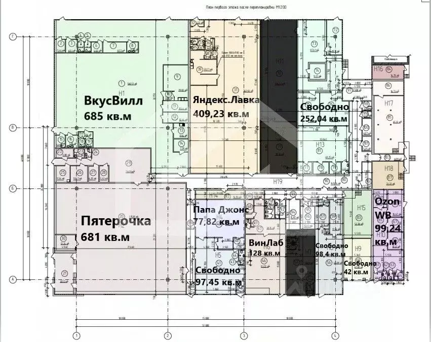
    967830. Предлагаем отдельно стоящее здание с сетевыми арендаторами ВкусВилл Доставка, Яндекс.Лавка, Пятерочка, WB/Ozon, ВинЛаб, Папа Джонс и др., площадью 2 759 кв. м. Без комиссии для покупателя.Преимущества объекта:-15 минут пешком от станции метро...
    • 1/1 эт.
    681 669 504 Р
    Агент
    +7 (938) Показать номер
    Посмотреть контакты
    Помещение свободного назначения в Москва Моховая ул., 11С13 (780 м) - Фото 1
    Помещение свободного назначения в Москва Моховая ул., 11С13 (780 м) - Фото 2
    862772. Предлагаем отдельно стоящее административное здание класса В с арендаторами, площадью 780 кв. м. Без комиссии для покупателя.Преимущества объекта:-шаговая доступность от станции метро Охотный ряд (4 минуты пешком);-удобная транспортная доступность:...
    • 3/3 эт.
    680 000 000 Р
    Агент
    +7 (938) Показать номер
    Посмотреть контакты

    Не нашли подходящего объявления?

    Оставьте заявку, и наши риэлторы подберут псн в районе Москвы

    (0)