Россия, Москва, Юту жилой комплекс
723 745 000 Р 9 153 600 $ или 7 919 400

Информация об помещении

1
Этаж

Состояние и оснащение

Количество этажей
25
Развернуть
Агент
+7 (938) 656-74-88
Начать чат с агентом

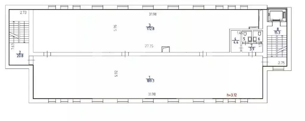
Помещение свободного назначения в Москва Юту жилой комплекс (1316 м)

1000569. Предлагаем помещение свободного назначения в ЖК ЮТУ , площадью 1315.9 кв. м, расположенное на первом этаже 25-этажного жилого дома. Без комиссии для покупателя.Преимущества объекта:-первая линия ул. Лодочная;-ЖК состоит из 2 башен переменной этажности (от 21 до 29 этажей), рассчитанных на 498 квартир;-6 минут на автомобиле от станции метро Сходненская ;-удобная транспортная доступность: 2.6 км до Волоколамского шоссе, 5.3 км до МКАД, 6.5 км до Ленинградского шоссе;-плотный жилой массив;-мало коммерческих помещений, что гарантирует высокий спрос;-высокий автомобильный и пешеходный трафик;-отлично просматривается, находится в легком доступе для потенциальных клиентов;-гибкая планировка, позволяющая адаптировать пространство под различные нужды;-витринное остекление;-возможность размещения вывески;-зона погрузки/разгрузки;-наземная парковка;-рядом остановка общественного транспорта.Технические параметры объекта:-15 отдельных входных групп с фасада.Ввод в эксплуатацию - IV кв. 2027 года.Свяжитесь с нами для получения дополнительной информации

Читать полностью
    Позвонить Написать
    723 745 000 Р9 153 600 $ или 7 919 400
    Агент
    +7 (938) 656-74-88
    Начать чат с агентом
    Похожие предложения
    Помещение свободного назначения в Москва Юту жилой комплекс (1316 м) - Фото 1
    Помещение свободного назначения в Москва Юту жилой комплекс (1316 м) - Фото 2
    1000569. Предлагаем помещение свободного назначения в ЖК ЮТУ , площадью 1315.9 кв. м, расположенное на первом этаже 25-этажного жилого дома. Без комиссии для покупателя.Преимущества объекта:-первая линия ул. Лодочная;-ЖК состоит из 2 башен переменной...
    • 1/25 эт.
    723 745 000 Р
    Агент
    +7 (938) Показать номер
    Посмотреть контакты
    Помещение свободного назначения в Москва Юту жилой комплекс (1316 м) - Фото 1
    Помещение свободного назначения в Москва Юту жилой комплекс (1316 м) - Фото 2
    1000569. Предлагаем помещение свободного назначения в ЖК ЮТУ , площадью 1315.9 кв. м, расположенное на первом этаже 25-этажного жилого дома. Без комиссии для покупателя.Преимущества объекта:-первая линия ул. Лодочная;-ЖК состоит из 2 башен переменной...
    • 1/25 эт.
    723 745 000 Р
    Агент
    +7 (938) Показать номер
    Посмотреть контакты
    Помещение свободного назначения в Москва Каширское ш., 3к2с1 (2910 м) - Фото 1
    Помещение свободного назначения в Москва Каширское ш., 3к2с1 (2910 м) - Фото 2
    725811. Предлагаем офисное здание площадью 2 910 кв. м, строение целиком, расположенное в бизнес-центре Сириус Парк Преимущества объекта:- Бизнес-центр класса В+- Шаговая доступность от станции метро Нагатинская (16 минут пешком)- Этажность: 7- Помещение...
    • 7/7 эт.
    727 500 000 Р
    Агент
    +7 (938) Показать номер
    Посмотреть контакты
    Помещение свободного назначения в Москва ул. Нижние Мневники, 37АС17 ... - Фото 1
    Помещение свободного назначения в Москва ул. Нижние Мневники, 37АС17 ... - Фото 2
    933090. Предлагаем офисное помещение площадью 1 509 кв. м, расположенное на 11 этаже бизнес-центра Stone Мневники Преимущества объекта:- Бизнес-центр класса А- Шаговая доступность от станции метро (БКЛ) Терехово (7 минут пешком)- Этаж: 11- Помещение...
    • 11/12 эт.
    718 020 850 Р
    Агент
    +7 (938) Показать номер
    Посмотреть контакты
    Помещение свободного назначения в Москва Каширское ш., 3к2с1 (2910 м) - Фото 1
    Помещение свободного назначения в Москва Каширское ш., 3к2с1 (2910 м) - Фото 2
    725811. Предлагаем офисное здание площадью 2 910 кв. м, строение целиком, расположенное в бизнес-центре Сириус Парк Преимущества объекта:- Бизнес-центр класса В+- Шаговая доступность от станции метро Нагатинская (16 минут пешком)- Этажность: 7- Помещение...
    • 7/7 эт.
    727 500 000 Р
    Агент
    +7 (938) Показать номер
    Посмотреть контакты

    Не нашли подходящего объявления?

    Оставьте заявку, и наши риэлторы подберут псн в районе Москвы

    (0)