31 900 000 Р 379 800 $ или 327 900

Информация об помещении

1
Этаж

Состояние и оснащение

Количество этажей
1
Развернуть
Агент
+7 (923) 070-35-80
Начать чат с агентом

Помещение свободного назначения в Москва Рабочая ул., 84С3 (58 м)

ПРОДАЖА помещения свободного назначения в креативном кластере Красный путь в ЦАО Строение 3 Оранжерея Площадь помещения: 58 м2Помещение расположено на 1 этаже малоэтажной постройки Имеет собственный вход.Новые коммуникации Историческое здание XIX века.Внутри есть вся необходимая для бизнеса и творчества инфраструктура:Укрепленные конструкции, усиленные стены.Бесперебойная работа газа, электричества, водоснабжения и вентиляции. Мокрые точки и подкрановые пути в цехахПрофессиональная управляющая компанияОхрана 24/7 и видеонаблюдениеПарковка на 150 местБлагоустроенная территория, стильное оформление Красный путь — это новое столичное творческое пространство, которое подходит для музыкальных и продюсерских студий, репетиционных баз, концертных площадок, арт-мастерских, event-площадок, танцевальных или спортивных баз, серийных производств, галерей, шоурумов и баров.Кластер расположен в Таганском районе Москвы, где высоко развита деловая активность и городская инфраструктура — поблизости расположены торговые центры Город и Три D , бизнес-центры, кафе и рестораны, парки и зоны отдыха. Удобная транспортная доступность:м. Римская, Площадь Ильича — 15 минут пешком;м. Нижегородская — 6 минут езды;Садовое кольцо — 10 минут езды;МКАД — 15 минут езды.Ежедневный показ. Онлайн показ.Быстрая сделка.Звоните Ответим на все вопросы.

Читать полностью
    Позвонить Написать
    31 900 000 Р379 800 $ или 327 900
    Агент
    +7 (923) 070-35-80
    Начать чат с агентом
    Похожие предложения
    Помещение свободного назначения в Москва Рабочая ул., 84С1 (58 м) - Фото 1
    Помещение свободного назначения в Москва Рабочая ул., 84С1 (58 м) - Фото 2
    Шикарная галерея при въезде на территорию бизнес-парка площадью 58 кв.м. Идеально подойдет под кафе или ресторан. Продается блок из 8-ми коммерческих помещений 58 кв.м. на территории Креативного пластера Красный путь .Каждое помещение с отдельным входом...
    • 1/2 эт.
    31 900 000 Р
    Агент
    +7 (985) Показать номер
    Посмотреть контакты
    Помещение свободного назначения в Москва БК Прокшино тер., 2 (58 м) - Фото 1
    Помещение свободного назначения в Москва БК Прокшино тер., 2 (58 м) - Фото 2
    1048398. Предлагаем помещение свободного назначения в бизнес-квартале Прокшино , площадью 57.5 кв. м, расположенное на первом этаже 12-этажного жилого дома. Корпус: 2.1. Без комиссии для покупателя.Преимущества объекта:-первая линия Филатовского шоссе;-офисный...
    • 1/12 эт.
    31 978 050 Р
    Агент
    +7 (938) Показать номер
    Посмотреть контакты
    Помещение свободного назначения в Москва Тагильская ул., 6/5 (45 м) - Фото 1
    Помещение свободного назначения в Москва Тагильская ул., 6/5 (45 м) - Фото 2
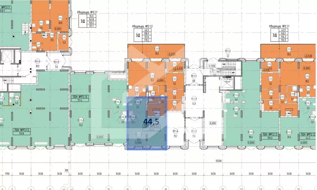
    1008023. Предлагаем помещение свободного назначения с арендатором аптека Ригла в ЖК Квартал Метроном , площадью 44.5 кв. м, расположенное на первом этаже 31-этажного жилого дома. Без комиссии для покупателя.Преимущества объекта:-первая линия;-ЖК состоит...
    • 1/31 эт.
    31 150 000 Р
    Агент
    +7 (938) Показать номер
    Посмотреть контакты
    Помещение свободного назначения в Москва Дмитровское ш., вл89 (25 м) - Фото 1
    Помещение свободного назначения в Москва Дмитровское ш., вл89 (25 м) - Фото 2
    1009417. Предлагаем к приобретению помещение свободного назначения, площадью 25 кв. м., расположенное на первом этаже 45-этажного жилого дома. Без комиссии для покупателя.Преимущества объекта:-первая линия Дмитровского шоссе;-шаговая доступность от станции...
    • 1/45 эт.
    32 500 000 Р
    Агент
    +7 (938) Показать номер
    Посмотреть контакты
    Помещение свободного назначения в Москва Дмитровское ш., вл89 (27 м) - Фото 1
    Помещение свободного назначения в Москва Дмитровское ш., вл89 (27 м) - Фото 2
    1009421. Предлагаем к приобретению помещение свободного назначения, площадью 27 кв. м., расположенное на первом этаже 45-этажного жилого дома. Без комиссии для покупателя.Преимущества объекта:-первая линия Дмитровского шоссе;-шаговая доступность от станции...
    • 1/45 эт.
    32 500 000 Р
    Агент
    +7 (938) Показать номер
    Посмотреть контакты

    Не нашли подходящего объявления?

    Оставьте заявку, и наши риэлторы подберут псн в районе Москвы

    (0)