Россия, Москва, 4-я оч., Шагал жилой комплекс, к2.6
62 423 604 Р 743 200 $ или 641 600

Информация об помещении

1
Этаж

Состояние и оснащение

Количество этажей
7
Развернуть
Агент
+7 (938) 656-74-88
Начать чат с агентом

Помещение свободного назначения в Москва 4-я оч., Шагал жилой ...

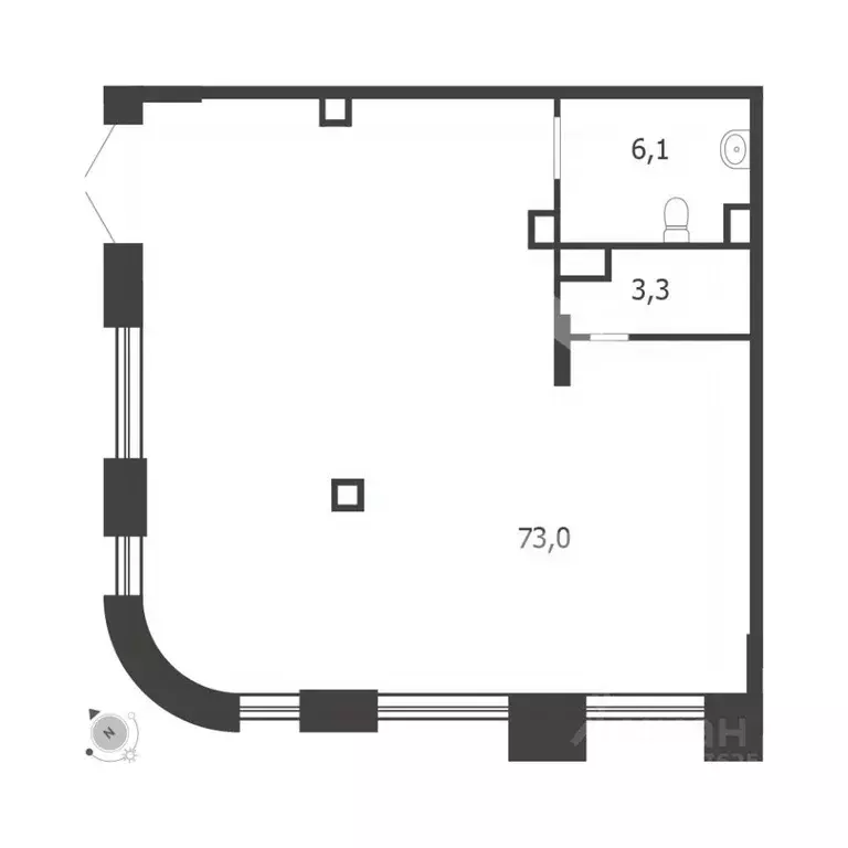
1110499. Предлагаем помещение свободного назначения в ЖК Shagal , площадью 81.3 кв. м, расположенное на первом этаже 7-этажного жилого дома. 4 очередь, 2 этап, корпус 6. Без комиссии для покупателя.Преимущества объекта:-первая линия;-в престижном Даниловском районе столицы;-ЖК состоит из 33 корпусов переменной этажности (от 6 до 28 этажей), рассчитанных на 6 238 квартир;-20 минут пешком от станции метро Технопарк ;-удобная транспортная доступность: выезд на ТТК, Варшавское и Загородное шоссе;-плотный жилой массив;-мало коммерческих помещений, что гарантирует высокий спрос;-высокий автомобильный и пешеходный трафик;-отлично просматривается, находится в легком доступе для потенциальных клиентов;-гибкая планировка, позволяющая адаптировать пространство под различные нужды;-витринное остекление;-возможность размещения вывески;-наземная парковка.Технические параметры объекта:-отдельный вход с улицы.-электрическая мощность: 16 кВт.-высота потолков: 5.3 м.Свяжитесь с нами для получения дополнительной информации

Читать полностью
    Позвонить Написать
    62 423 604 Р743 200 $ или 641 600
    Агент
    +7 (938) 656-74-88
    Начать чат с агентом
    Похожие предложения
    Помещение свободного назначения в Москва 4-я оч., Шагал жилой ... - Фото 1
    Помещение свободного назначения в Москва 4-я оч., Шагал жилой ... - Фото 2
    1110499. Предлагаем помещение свободного назначения в ЖК Shagal , площадью 81.3 кв. м, расположенное на первом этаже 7-этажного жилого дома. 4 очередь, 2 этап, корпус 6. Без комиссии для покупателя.Преимущества объекта:-первая линия;-в престижном Даниловском...
    • 1/7 эт.
    62 423 604 Р
    Агент
    +7 (938) Показать номер
    Посмотреть контакты
    Помещение свободного назначения в Москва 3-я оч., Шагал жилой ... - Фото 1
    Помещение свободного назначения в Москва 3-я оч., Шагал жилой ... - Фото 2
    1083457. Предлагаем помещение свободного назначения в ЖК Shagal , площадью 82,4 кв. м, расположенное на первом этаже 13-этажного жилого дома. 3 очередь, 3 этап, корпус 6. Без комиссии для покупателя.Преимущества объекта:-в престижном Даниловском районе...
    • 1/13 эт.
    61 109 145 Р
    Агент
    +7 (938) Показать номер
    Посмотреть контакты
    Помещение свободного назначения в Москва 3-я оч., Шагал жилой ... - Фото 1
    Помещение свободного назначения в Москва 3-я оч., Шагал жилой ... - Фото 2
    В продаже коммерческое помещение Street Retail, в ЖК Shagal .ВЫГОДНЫЕ УСЛОВИЯ ПРИ РАССРОЧКЕ ПВ от 30 . Рассрочка без удорожания 1 этаж, собственный вход, витринное остекление, высокие потолки.Характеристики помещения:-отдельный вход с улицы-панорамное...
    • 1/19 эт.
    61 957 000 Р
    Агент
    +7 (915) Показать номер
    Посмотреть контакты
    Помещение свободного назначения в Москва Ленинский просп., 158 (177 м) - Фото 1
    Уважаемый Покупатель, предлагаем Вам приобрести в БЦ Салют помещение свободного назначения 177.3 м на 1 этаже в собственность на выгодных условиях.Приточно-вытяжная вентиляция. Центральное кондиционирование. Пожарная сигнализация. Интернет, телефония....
    • 1/3 эт.
    62 000 000 Р
    Агент
    +7 (985) Показать номер
    Посмотреть контакты
    Продажа ПСН, м. Тульская, Холодильный пер. - Фото 1
    Продажа ПСН, м. Тульская, Холодильный пер. - Фото 2
    Продажа ПСН, м. Тульская, Холодильный пер. - Фото 3
    Продажа ПСН, м. Тульская, Холодильный пер. - Фото 4
    Продажа ПСН, м. Тульская, Холодильный пер. - Фото 5
    Продажа ПСН, м. Тульская, Холодильный пер. - Фото 6
    Продажа ПСН, м. Тульская, Холодильный пер. - Фото 7
    Продажа ПСН, м. Тульская, Холодильный пер. - Фото 8
    Продажа ПСН, м. Тульская, Холодильный пер. - Фото 9
    Продажа ПСН, м. Тульская, Холодильный пер. - Фото 10
    Продажа ПСН, м. Тульская, Холодильный пер. - Фото 11
    Продажа ПСН, м. Тульская, Холодильный пер. - Фото 12
    общая площадь 153.3м², полезная площадь 153.3м²

    ЮАО, Даниловский район, 100 метров от метро Тульская! ПСН площадью 153,3 м2 (№8102) расположено в Деловом квартале в стиле Лофт – в ДК «Товарищество Рябовской Мануфактуры», в 3-х минутах пешком от метро Тульская. Помещение на 1-м этаже в 3-х этажном...
    • 153.3 м²
    • 1-й эт.
    62 853 000 Р
    Агент
    +7 (903) Показать номер
    Посмотреть контакты

    Не нашли подходящего объявления?

    Оставьте заявку, и наши риэлторы подберут псн в районе Москвы

    (0)