45 000 000 Р 560 900 $ или 489 200

Информация об помещении

1
Этаж

Состояние и оснащение

Количество этажей
42
Развернуть
Агент
+7 (938) 656-74-88
Начать чат с агентом

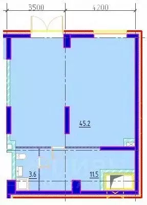
Помещение свободного назначения в Москва Дубининская ул., 59А (44 м)

1079485. Предлагаем помещение свободного назначения в ЖК Павелецкая Сити , площадью 44.3 кв. м, расположенное на первом этаже 42-этажного жилого дома. Корпус: Кэрри. Без комиссии для покупателя.Преимущества объекта:-ЖК состоит из 12 корпусов переменной этажности (от 9 до 46 этажей), рассчитанных на 3 253 квартир;-17 минут пешком от станции метро Серпуховская ;-удобная транспортная доступность: 900 м до Подольского шоссе, 2.4 км до Садового кольца, 2.8 км до Варшавского шоссе, 3 км до Загородного шоссе, 4.3 км до ТТК;-плотный жилой массив;-мало коммерческих помещений, что гарантирует высокий спрос;-стабильный автомобильный и пешеходный трафик;-находится в легком доступе для потенциальных клиентов;-гибкая планировка, позволяющая адаптировать пространство под различные нужды;-возможность увеличения площади на 40 за счет антресоли;-идеально подойдет под любой вид деятельности: магазин у дома, пекарня, кофейня, салон красоты, аптека, офис, шоурум, винотека и т.д;-витринное остекление;-возможность размещения вывески.Технические параметры объекта:-отдельный вход с улицы.-высота потолков: 6 м.Свяжитесь с нами для получения дополнительной информации

Читать полностью
    Позвонить Написать
    45 000 000 Р560 900 $ или 489 200
    Агент
    +7 (938) 656-74-88
    Начать чат с агентом
    Похожие предложения
    Помещение свободного назначения в Москва Дубининская ул., 59А (44 м) - Фото 1
    Помещение свободного назначения в Москва Дубининская ул., 59А (44 м) - Фото 2
    1079485. Предлагаем помещение свободного назначения в ЖК Павелецкая Сити , площадью 44.3 кв. м, расположенное на первом этаже 42-этажного жилого дома. Корпус: Кэрри. Без комиссии для покупателя.Преимущества объекта:-ЖК состоит из 12 корпусов переменной...
    • 1/42 эт.
    45 000 000 Р
    Агент
    +7 (938) Показать номер
    Посмотреть контакты
    Помещение свободного назначения в Москва 2-й Павелецкий проезд, 7 (63 ... - Фото 1
    Помещение свободного назначения в Москва 2-й Павелецкий проезд, 7 (63 ... - Фото 2
    Помещение в строящемся проекте бизнес-класса ПЕЙВ от девелопера FORMA на 847 квартир. 25 минут пешком от метро Павелецкая. Проект расположен в Даниловском районе между 2-м и 3-м Павелецкими проездами. 300 м до набережной. Характеристики помещения:- Площадь...
    • 1/27 эт.
    45 266 060 Р
    Агент
    +7 (749) Показать номер
    Посмотреть контакты
    Помещение свободного назначения в Москва 1-й Красносельский пер., 15 ... - Фото 1
    Помещение свободного назначения в Москва 1-й Красносельский пер., 15 ... - Фото 2
    В продаже помещение свободного назначения, расположенное в современном ЖК премиум-класса ORO. Объект построен.- Помещение подойдет под небольшой магазин или аптеку- Отдельный вход- Эл. мощность 4.1 кВт- Без ремонтаТранспортная доступность:Из комплекса...
    • 1/10 эт.
    44 380 000 Р
    Агент
    +7 (985) Показать номер
    Посмотреть контакты
    Помещение свободного назначения в Москва бул. Скандинавский, 17 (343 ... - Фото 1
    Помещение свободного назначения в Москва бул. Скандинавский, 17 (343 ... - Фото 2
    Лот 158812.Продается торговое помещение площадью 342.50. на 1-м этаже ЖК Скандинавия . Дом сдан.Первая линия оживленной внутрирайонной улицы самого густозаселенного нового района Новой Москвы.Пешая доступность от станции метро Потапово .Торговое окружение...
    • 1/18 эт.
    44 740 200 Р
    Агент
    +7 (916) Показать номер
    Посмотреть контакты
    Продажа ПСН, ул. Медынская - Фото 1
    Продажа ПСН, ул. Медынская - Фото 2
    Продажа ПСН, ул. Медынская - Фото 3
    Продажа ПСН, ул. Медынская - Фото 4
    Продажа ПСН, ул. Медынская - Фото 5
    Продажа ПСН, ул. Медынская - Фото 6
    Продажа ПСН, ул. Медынская - Фото 7
    Продажа ПСН, ул. Медынская - Фото 8
    Продажа ПСН, ул. Медынская - Фото 9
    Продажа ПСН, ул. Медынская - Фото 10
    Продажа ПСН, ул. Медынская - Фото 11
    Продажа ПСН, ул. Медынская - Фото 12
    Продажа ПСН, ул. Медынская - Фото 13
    Продажа ПСН, ул. Медынская - Фото 14
    Продажа ПСН, ул. Медынская - Фото 15
    Продажа ПСН, ул. Медынская - Фото 16
    Продажа ПСН, ул. Медынская - Фото 17
    Продажа ПСН, ул. Медынская - Фото 18
    Продажа ПСН, ул. Медынская - Фото 19
    Продажа ПСН, ул. Медынская - Фото 20
    общая площадь 348.6м², полезная площадь 348.6м²

    Арт. Продаётся помещение свободного назначения 348,6 м — первая линия, отличная проходимость! Идеальный объект под любой бизнес и офисное помещение в густонаселённом спальном районе Бирюлёво (ЮАО Москвы). Основные характеристики: - Общая площадь — 348,6...
    • 348.6 м²
    • 2-й эт.
    45 000 000 Р
    Агент
    +7 (499) Показать номер
    Агентство
    МИЭЛЬ
    Посмотреть контакты

    Не нашли подходящего объявления?

    Оставьте заявку, и наши риэлторы подберут псн в районе Москвы

    (0)