18 500 000 Р 230 600 $ или 201 100

Информация об помещении

1
Этаж

Состояние и оснащение

Количество этажей
5
Развернуть
Агент
+7 (982) 087-12-18
Начать чат с агентом

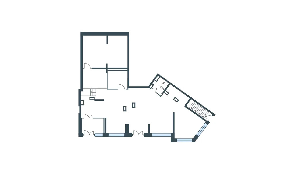
Помещение свободного назначения в Москва Кутузовский просп., 59 (66 м)

Продаётся помещение свободного назначения 66 м на 1 этаже кирпичного 5-этажного жилого дома по Кутузовскому проспекту, 59.Подойдёт под офис, шоурум, услуги, кабинетную медицину (стоматология/мануальная практика/массаж/косметология), а также под небольшую торговлю при работе по записи/потоку (формат зависит от вашей концепции).Планировка удобная для бизнеса: коридор, 2 изолированные комнаты, общий холл и санузел — легко сделать ресепшен + 2 кабинета, либо кабинет и переговорную/склад.Вход через подъезд. Выполнен косметический ремонт, установлены пластиковые окна с двойным остеклением Документы: 1 взрослый собственник, основание ДКП, в собственности более 5 лет.Организуем безопасную и комфортную сделку.

Читать полностью
    Позвонить Написать
    18 500 000 Р230 600 $ или 201 100
    Агент
    +7 (982) 087-12-18
    Начать чат с агентом
    Похожие предложения
    Помещение свободного назначения в Москва Новослободская ул., 20 (46 м) - Фото 1
    Помещение свободного назначения в Москва Новослободская ул., 20 (46 м) - Фото 2
    ЛотПредложение от Собственника Предлагаем помещение свободного назначения 45.5 кв.м. на 3 этаже административного здания в непосредственной близости от метро Менделеевская в престижном районе центрального округа г. Москвы с насыщенной инфраструктурой....
    • 3/4 эт.
    19 900 000 Р
    Агент
    +7 (986) Показать номер
    Посмотреть контакты
    Прямая продажа от застройщика - Фото 1
    Прямая продажа от застройщика - Фото 2
    Прямая продажа от застройщика - Фото 3
    Прямая продажа от застройщика - Фото 4
    Прямая продажа от застройщика - Фото 5
    Прямая продажа от застройщика - Фото 6
    Прямая продажа от застройщика - Фото 7
    Прямая продажа от застройщика - Фото 8
    Прямая продажа от застройщика - Фото 9
    Прямая продажа от застройщика - Фото 10
    Прямая продажа от застройщика - Фото 11
    Прямая продажа от застройщика - Фото 12
    Прямая продажа от застройщика - Фото 13
    Прямая продажа от застройщика - Фото 14
    Прямая продажа от застройщика - Фото 15
    Прямая продажа от застройщика - Фото 16
    Прямая продажа от застройщика - Фото 17
    Прямая продажа от застройщика - Фото 18
    Прямая продажа от застройщика - Фото 19
    Прямая продажа от застройщика - Фото 20
    полезная площадь 74.6м²

    Предлагается в продажу помещение свободного назначения, расположенное в ЖК 1-й Ленинградский площадью 74.6 кв.м. Располагается на 1 этаже 14-этажного корпуса. Помещение идеально подойдет для магазина, кафе, офиса или другого бизнеса благодаря функциональной...
    • 74.6 м²
    • 1/14 эт.
    19 480 320 Р
    Агент
    +7 (495) Показать номер
    Посмотреть контакты
    Прямая продажа от застройщика - Фото 1
    Прямая продажа от застройщика - Фото 2
    Прямая продажа от застройщика - Фото 3
    Прямая продажа от застройщика - Фото 4
    Прямая продажа от застройщика - Фото 5
    Прямая продажа от застройщика - Фото 6
    Прямая продажа от застройщика - Фото 7
    Прямая продажа от застройщика - Фото 8
    Прямая продажа от застройщика - Фото 9
    Прямая продажа от застройщика - Фото 10
    Прямая продажа от застройщика - Фото 11
    Прямая продажа от застройщика - Фото 12
    Прямая продажа от застройщика - Фото 13
    Прямая продажа от застройщика - Фото 14
    Прямая продажа от застройщика - Фото 15
    Прямая продажа от застройщика - Фото 16
    Прямая продажа от застройщика - Фото 17
    Прямая продажа от застройщика - Фото 18
    Прямая продажа от застройщика - Фото 19
    Прямая продажа от застройщика - Фото 20
    полезная площадь 82.8м²

    Предлагается в продажу помещение свободного назначения, расположенное в ЖК 1-й Ленинградский площадью 82.8 кв.м. Располагается на 1 этаже 14-этажного корпуса. Помещение идеально подойдет для магазина, кафе, офиса или другого бизнеса благодаря функциональной...
    • 82.8 м²
    • 1/14 эт.
    18 982 656 Р
    Агент
    +7 (495) Показать номер
    Посмотреть контакты
    Продается ПСН 120.9 м2 - Фото 1
    Продается ПСН 120.9 м2 - Фото 2
    Продается ПСН 120.9 м2 - Фото 3
    Продается ПСН 120.9 м2 - Фото 4
    Продается ПСН 120.9 м2 - Фото 5
    Продается ПСН 120.9 м2 - Фото 6
    Продается ПСН 120.9 м2 - Фото 7
    Продается ПСН 120.9 м2 - Фото 8
    Продается ПСН 120.9 м2 - Фото 9
    Продается ПСН 120.9 м2 - Фото 10
    Продается ПСН 120.9 м2 - Фото 11
    Продается ПСН 120.9 м2 - Фото 12
    Продается ПСН 120.9 м2 - Фото 13
    полезная площадь 120.9м²

    Продаётся коммерческое помещение площадью 120,9 м2 на 1-м этаже 15-этажного жилого дома в ЖК «Москвичка». Основные преимущества: отдельный вход; место под вывеску; витринное остекление; круглосуточный доступ; помещение без ремонта, что позволяет...
    • 120.9 м²
    • 1/15 эт.
    19 544 000 Р
    Агент
    +7 (495) Показать номер
    Посмотреть контакты
    Продажа ПСН, м. Бабушкинская, Олонецкий проезд - Фото 1
    Продажа ПСН, м. Бабушкинская, Олонецкий проезд - Фото 2
    Продажа ПСН, м. Бабушкинская, Олонецкий проезд - Фото 3
    Продажа ПСН, м. Бабушкинская, Олонецкий проезд - Фото 4
    Продажа ПСН, м. Бабушкинская, Олонецкий проезд - Фото 5
    Продажа ПСН, м. Бабушкинская, Олонецкий проезд - Фото 6
    Продажа ПСН, м. Бабушкинская, Олонецкий проезд - Фото 7
    Продажа ПСН, м. Бабушкинская, Олонецкий проезд - Фото 8
    Продажа ПСН, м. Бабушкинская, Олонецкий проезд - Фото 9
    Продажа ПСН, м. Бабушкинская, Олонецкий проезд - Фото 10
    Продажа ПСН, м. Бабушкинская, Олонецкий проезд - Фото 11
    Продажа ПСН, м. Бабушкинская, Олонецкий проезд - Фото 12
    общая площадь 93м², полезная площадь 93м²

    Продается офис в Б.Ц. Олонецкий проезд, 4к2, состоящий из двух помещений по 46.5 кв.м. с разными кадастровыми номерами. До метро бабушкинская 6 минут пешком. Можно рассматривать как арендный бизнес. В здании есть лифт, круглосуточная охрана, В собственности...
    • 93 м²
    • 5-й эт.
    18 500 000 Р
    PRO
    +7 (963) Показать номер
    Агентство
    Мариако
    Посмотреть контакты

    Не нашли подходящего объявления?

    Оставьте заявку, и наши риэлторы подберут псн в районе Москвы

    (0)