10 800 000 Р 137 200 $ или 117 500

Информация об помещении

1
Этаж

Состояние и оснащение

Количество этажей
14
Развернуть
Агент
+7 (916) 545-04-12
Начать чат с агентом

Помещение свободного назначения в Москва ул. Маршала Савицкого, 22к2 ...

Номер в базе: 9858817. Помещение свободного назначения площадью 58,7 м расположено на первом этаже 14-этажного жилого дома и обладает ключевым преимуществом — отдельным входом с улицы. Это обеспечивает полную автономность и круглосуточную доступность без необходимости взаимодействия с жилыми зонами. ОБ ОБЪЕКТЕ:Объект находится в состоянии предчистовой отделки: выполнены стяжка пола, выравнивание стен и монтаж электропроводки с распределением по точкам, что позволяет новому собственнику в кратчайшие сроки и с минимальными вложениями провести чистовые работы под конкретные задачи. О ЛОКАЦИИ:Расположение объекта характеризуется высокой пешеходной проходимостью благодаря плотной застройке развитого жилого микрорайона с собственной социальной инфраструктурой. В непосредственной близости находятся общеобразовательные школы, детские сады, поликлиники, аптеки и остановки общественного транспорта, что гарантирует постоянный поток потенциальных клиентов из числа местных жителей. Транспортная доступность района позволяет легко добраться из других частей города. Наличие парковочных карманов добавляет удобство для посетителей, прибывающих на автомобиле. Данное сочетание факторов — удачное расположение, готовность к быстрому вводу в эксплуатацию и универсальность планировочного решения — делает объект идеальным решением для инвестирования с целью последующей организации собственного бизнеса или стабильного источника арендного дохода. Код пользователя: 182801

Читать полностью
    Позвонить Написать
    10 800 000 Р137 200 $ или 117 500
    Агент
    +7 (916) 545-04-12
    Начать чат с агентом
    Похожие предложения
    Помещение свободного назначения в Москва Пролетарский просп., 18К3 ... - Фото 1
    Помещение свободного назначения в Москва Пролетарский просп., 18К3 ... - Фото 2
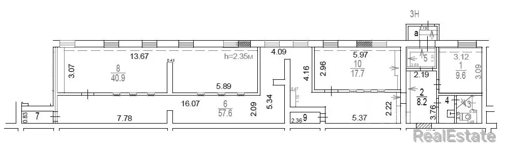
    Помещение на цокольном этаже жилого дома.В собственности физ. лица.Отдельный вход.10 окон.Высота потолка- 2,35 метра.Все коммуникации - свет, вода, отопление, канализация.Выделенная мощность- 15 кВт на все помещение.До метро Кантемировская менее 5 минут...
    • -1/5 эт.
    11 000 000 Р
    Агент
    +7 (923) Показать номер
    Посмотреть контакты
    Помещение свободного назначения в Москва Новопесчаная ул., 4К1 (142 м) - Фото 1
    Помещение свободного назначения в Москва Новопесчаная ул., 4К1 (142 м) - Фото 2
    Объект реализуется на городских торгах Дополнительная информация и документы расположены на Инвестиционном портале города Москвы по ссылке:https://investmoscow. ru/tenders/tender/20024069?utm_source=cian utm_me dium=razmeshenie-obectov utm_campaign=freeAppointm...
    • -2/4 эт.
    10 014 000 Р
    Агент
    +7 (985) Показать номер
    Посмотреть контакты
    Помещение свободного назначения в Москва ул. Академика Скрябина, 8 (35 ... - Фото 1
    Помещение свободного назначения в Москва ул. Академика Скрябина, 8 (35 ... - Фото 2
    Просторная квартира с хорошей планировкой, находится на втором этаже в современном жилом доме. Объект полностью изолирован и имеет собственный вход , что кратно повышает его ликвидность на рынке. Квартира имеет комнату большой правильной формы с большими...
    • 2/25 эт.
    10 000 000 Р
    Агент
    +7 (923) Показать номер
    Посмотреть контакты
    Помещение свободного назначения в Москва Кировоградская ул., 8К3 (34 ... - Фото 1
    Помещение свободного назначения в Москва Кировоградская ул., 8К3 (34 ... - Фото 2
    Продается художественная студия в нежилом фонде, находящаяся в современном жилом доме. Ее можно использовать с различными целями - так же, как и жилую квартиру. Очень удобное расположение - от метро Южная спокойным шагом 5 минут. Окна выходят во двор...
    • 23/24 эт.
    11 000 000 Р
    Агент
    +7 (985) Показать номер
    Посмотреть контакты
    Помещение свободного назначения в Москва Дмитровское ш., 73С3 (23 м) - Фото 1
    Помещение свободного назначения в Москва Дмитровское ш., 73С3 (23 м) - Фото 2
    Продается помещение 23м2 в ТЦ МЕТРОМОЛЛ. Первый 1 этаж. Есть мокрая точка. ТЦ МЕТРОМОЛЛ располагается на первой линии Дмитровского шоссе, на выходе из ст. метро Верхние Лихоборы . Площадь ТЦ 15 000 кв. м., он открыт и работает. Помещение сдается в...
    • 1/3 эт.
    11 200 000 Р
    Агент
    +7 (985) Показать номер
    Посмотреть контакты

    Не нашли подходящего объявления?

    Оставьте заявку, и наши риэлторы подберут псн в районе Москвы

    (0)