Россия, Москва, жилой комплекс Квартал Герцена, к2
60 990 000 Р 770 600 $ или 664 100

Информация об помещении

1
Этаж

Состояние и оснащение

Количество этажей
30
Развернуть
Агент
+7 (909) 729-89-61
Начать чат с агентом

Помещение свободного назначения (136.6 м)

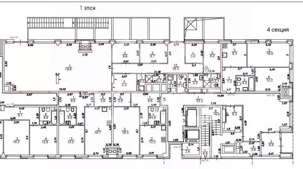
Арт.Продается помещение свободного назначения, 136.6 м, Москва, ЮАО, р-н Бирюлево Восточное, Квартал Герцена жилой комплекс, к2 Площадь: 136.6 м Этаж: 1 из 30 Помещение: Свободно. Срок сдачи: 4 квартал 2027 Метро: Домодедовская (5 мин.), Красногвардейская (8 мин.), Зябликово (9 мин.) Характеристики помещения: Этаж 1 Отдельный вход в помещение с улицы. Площадь: 136.6 м Высота потолков: 3.9 м Витринное остекление Электричество, 25 кВт Цементно-песчаная стяжка пола Инженерные коммуникации: водоотведение, канализация, вентиляция, электричество. Парковка: наземная ЖК Квартал Герцена - это комплекс из восьми жилых домов, состоящих из разноуровневых секций высотой от 6 до 55 этажей. Расположен в Восточном Бирюлево, будут проживать более восьми тысяч человек. Здесь разместится торговый центр и павильон проката. Первые этажи жилых домов будут отданы под коммерческие помещения, в которых откроются кафе, рестораны, магазины и полезные для жителей квартала сервисы. Перспективное количество жителей жилого района 21 000 человек Количество жителей в шаговой доступности 89 000 человек Площадь застройки 12,4 Га Площадь жилья 511 541 м Прямая продажа от застройщика по договору ДДУ. Стоимость : 60.990. без НДС

Читать полностью
    Позвонить Написать
    60 990 000 Р770 600 $ или 664 100
    Агент
    +7 (909) 729-89-61
    Начать чат с агентом
    Похожие предложения
    Помещение свободного назначения в Москва ул. Молостовых, 19К1 (650 м) - Фото 1
    Помещение свободного назначения в Москва ул. Молостовых, 19К1 (650 м) - Фото 2
    1075223. Предлагаем помещение свободного назначения с якорным арендатором супермаркет Чижик , площадью 650,2 кв. м., расположенное в цоколе жилого дома. Без комиссии для покупателя. Преимущества объекта:-первая линия ул. Молостовых;-12 минут пешком от...
    • -1/9 эт.
    60 000 000 Р
    Агент
    +7 (938) Показать номер
    Посмотреть контакты
    Помещение свободного назначения в Москва ул. Инженера Кнорре, 7к5 (148 ... - Фото 1
    Помещение свободного назначения в Москва ул. Инженера Кнорре, 7к5 (148 ... - Фото 2
    835735. Предлагаем помещение свободного назначения с арендатором Магнит в ЖК Homecity , корпус: 5, площадью 148 кв. м, расположенное на первом этаже 9-этажного жилого дома. Без комиссии для покупателя.Преимущества объекта:-ЖК состоит из 5-ти 9-этажных...
    • 1/9 эт.
    61 500 000 Р
    Агент
    +7 (938) Показать номер
    Посмотреть контакты
    Помещение свободного назначения в Москва ул. Петра Кончаловского, 5 ... - Фото 1
    Помещение свободного назначения в Москва ул. Петра Кончаловского, 5 ... - Фото 2
    1070863. Предлагаем помещение свободного назначения в ЖК Shagal , площадью 79 кв. м, расположенное на первом этаже 9-этажного жилого дома. 3 очередь, 2 этап, корпус 1. Без комиссии для покупателя.Преимущества объекта:-в престижном Даниловском районе...
    • 1/5 эт.
    60 464 220 Р
    Агент
    +7 (938) Показать номер
    Посмотреть контакты
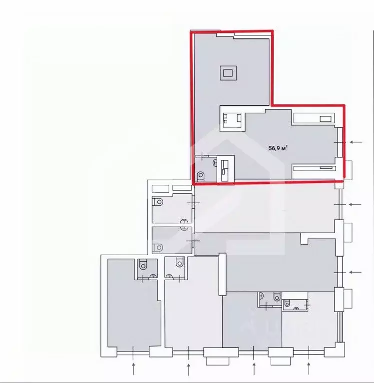
    Помещение свободного назначения в Москва Дмитровское ш., вл89 (57 м) - Фото 1
    Помещение свободного назначения в Москва Дмитровское ш., вл89 (57 м) - Фото 2
    1009422. Предлагаем к приобретению помещение свободного назначения, площадью 56.9 кв. м., расположенное на первом этаже 45-этажного жилого дома. Без комиссии для покупателя.Преимущества объекта:-первая линия Дмитровского шоссе;-шаговая доступность от...
    • 1/45 эт.
    60 000 000 Р
    Агент
    +7 (938) Показать номер
    Посмотреть контакты
    Помещение свободного назначения в Москва Юту жилой комплекс (93 м) - Фото 1
    Помещение свободного назначения в Москва Юту жилой комплекс (93 м) - Фото 2
    1000567. Предлагаем помещение свободного назначения в ЖК ЮТУ , площадью 92.7 кв. м, расположенное на первом этаже 29-этажного жилого дома. Без комиссии для покупателя.Преимущества объекта:-первая линия ул. Лодочная;-ЖК состоит из 2 башен переменной этажности...
    • 1/29 эт.
    61 645 500 Р
    Агент
    +7 (938) Показать номер
    Посмотреть контакты

    Не нашли подходящего объявления?

    Оставьте заявку, и наши риэлторы подберут псн в районе Москвы

    (0)