130 000 000 Р 1 642 500 $ или 1 415 500

Информация об помещении

1
Этаж

Состояние и оснащение

Количество этажей
4
Развернуть
Агент
+7 (938) 656-74-88
Начать чат с агентом

Помещение свободного назначения в Москва Окружная ул., 2 (583 м)

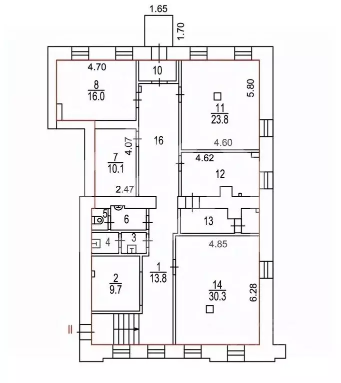
646051. Предлагаем помещение свободного назначения с якорным арендатором - супермаркет Магнит , площадью 583,4 кв. м., расположенное на первом этаже жилого дома. Без комиссии для покупателя.Преимущества объекта:-первая линия ул. Окружная;-7 минут на автомобиле от станций метро Волоколамская и Сходненская;-объект отлично просматривается, находится в легком доступе для клиентов;-развитая инфраструктура района;-надежный сетевой арендатор;-открытая планировка;-место для вывески;-центральные коммуникации;-зона разгрузки/погрузки;-вытяжка для общепита;-3 мокрые точки;-наземная парковка.Технические параметры объекта:- 2 отдельные входные группы;-электрическая мощность: 70 кВт;-высота потолков: 3 м.Информация об арендаторе: -арендатор: супермаркет Магнит ;-доход:/мес.;-окупаемость: 8 лет;-доходность: 12,46 .Свяжитесь с нами для получения дополнительной информации

Читать полностью
    Позвонить Написать
    130 000 000 Р1 642 500 $ или 1 415 500
    Агент
    +7 (938) 656-74-88
    Начать чат с агентом
    Похожие предложения
    Помещение свободного назначения в Москва Окружная ул., 2 (583 м) - Фото 1
    Помещение свободного назначения в Москва Окружная ул., 2 (583 м) - Фото 2
    646051-gab . Предлагаем помещение свободного назначения формата Street Retail с якорным арендатором - супермаркет Магнит , площадью 583,4 кв. м., расположенное на первом этаже жилого дома. Без комиссии для покупателя.Преимущества объекта:-первая линия...
    • 1/4 эт.
    130 000 000 Р
    Агент
    +7 (938) Показать номер
    Посмотреть контакты
    Помещение свободного назначения в Москва Окружная ул., 2 (583 м) - Фото 1
    Помещение свободного назначения в Москва Окружная ул., 2 (583 м) - Фото 2
    646051-gab . Предлагаем помещение свободного назначения формата Street Retail с якорным арендатором - супермаркет Магнит , площадью 583,4 кв. м., расположенное на первом этаже жилого дома. Без комиссии для покупателя.Преимущества объекта:-первая линия...
    • 1/4 эт.
    130 000 000 Р
    Агент
    +7 (938) Показать номер
    Посмотреть контакты
    Помещение свободного назначения в Москва Большая Академическая ул., ... - Фото 1
    Помещение свободного назначения в Москва Большая Академическая ул., ... - Фото 2
    932028. Предлагаем помещение свободного назначения с якорным арендатором Дикси, площадью 455,8 кв. м., расположенное на первом этаже жилого дома. Без комиссии для покупателя.Преимущества объекта:-первая линия домов по ул. Большая Академическая;-пешая...
    • 1/14 эт.
    126 690 000 Р
    Агент
    +7 (938) Показать номер
    Посмотреть контакты
    Помещение свободного назначения в Москва ул. Бахрушина, 28 (155 м) - Фото 1
    Помещение свободного назначения в Москва ул. Бахрушина, 28 (155 м) - Фото 2
    1049927. Предлагаем помещение свободного назначения с арендаторами Цветы и Кофейня Б. 28 , площадью 155 кв. м, расположенное на первом этаже 8-этажного жилого дома. Без комиссии для покупателя.Преимущества объекта:-первая линия ул. Бахрушина;-шаговая...
    • 1/8 эт.
    122 450 000 Р
    Агент
    +7 (938) Показать номер
    Посмотреть контакты
    Помещение свободного назначения в Москва Ленинградский просп., 33К3 ... - Фото 1
    Помещение свободного назначения в Москва Ленинградский просп., 33К3 ... - Фото 2
    957933. Предлагаем помещение свободного назначения с арендатором Табак , площадью 195.1 кв. м, расположенное в подвале и на первом этаже 7-этажного жилого дома. Без комиссии для покупателя.Преимущества объекта:-первая линия Ленинградского проспекта;-шаговая...
    • 1/7 эт.
    137 000 000 Р
    Агент
    +7 (938) Показать номер
    Посмотреть контакты

    Не нашли подходящего объявления?

    Оставьте заявку, и наши риэлторы подберут псн в районе Москвы

    (0)