400 000 000 Р 5 053 700 $ или 4 355 400

Информация об помещении

1
Этаж

Состояние и оснащение

Количество этажей
3
Развернуть
Агент
+7 (938) 656-74-88
Начать чат с агентом

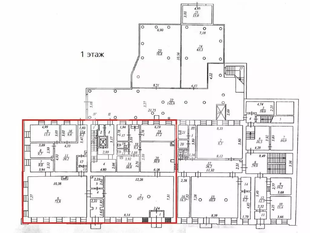
Помещение свободного назначения в Москва Куликовская ул., 9 (3568 м)

645144. Предлагаем торговый центр Гранд Апельсин с сетевыми якорными арендаторами Пятерочка , Магнит Косметик , Фитнес, Салон красоты, Разные арендаторы, площадью 3 568 кв. м. 1, 2 этажи, подвал и тех. этаж. Без комиссии для покупателя.Преимущества объекта:-первая линия;-пешая доступность от станций метро Бульвар Дмитрия Донского и Улица Старокачаловская (12 минут пешком);-объект отлично просматривается, находится в легком доступе для клиентов;-развитая инфраструктура района;-надежные арендаторы;-открытая планировка;-витринное остекление;-место для вывески;-зона разгрузки/погрузки;-бесплатная парковка перед фасадом на 24 машиноместа;-рядом остановка общественного транспорта.Технические параметры объекта:-несколько отдельных входных групп;-земельный участок - 2 100 кв. м. (в аренде);-электрическая мощность: 285 кВт;-высота потолков: 3 м.Информация об арендаторах:-арендаторы: Пятерочка , Магнит Косметик , Фитнес, Салон красоты, Разные арендаторы;-доход:/мес.Свяжитесь с нами для получения дополнительной информации

Читать полностью
    Позвонить Написать
    400 000 000 Р5 053 700 $ или 4 355 400
    Агент
    +7 (938) 656-74-88
    Начать чат с агентом
    Похожие предложения
    Помещение свободного назначения в Москва ул. Нижние Мневники, 37АС17 ... - Фото 1
    Помещение свободного назначения в Москва ул. Нижние Мневники, 37АС17 ... - Фото 2
    933058. Предлагаем офисное помещение площадью 853,8 кв. м, расположенное на 5 этаже БЦ Stone Мневники Преимущества объекта:- Бизнес-центр класса А- Шаговая доступность от станции метро Терехово (7 минут пешком)- Этаж: 5- Помещение предлагается в состоянии...
    • 5/12 эт.
    406 408 800 Р
    Агент
    +7 (938) Показать номер
    Посмотреть контакты
    Помещение свободного назначения в Москва Последний пер., 22 (742 м) - Фото 1
    Помещение свободного назначения в Москва Последний пер., 22 (742 м) - Фото 2
    846252. Предлагаем отдельно стоящее административное здание - четырёхэтажный особняк, площадью 742 кв. м. Без комиссии для покупателя.Преимущества объекта:-первая линия Последнего переулка;-шаговая доступность от станции метро Сухаревская (6 минут пешком);-удобная...
    • 4/4 эт.
    400 000 000 Р
    Агент
    +7 (938) Показать номер
    Посмотреть контакты
    Помещение свободного назначения в Москва ул. Арбат, 39 (406 м) - Фото 1
    Помещение свободного назначения в Москва ул. Арбат, 39 (406 м) - Фото 2
    878423. Предлагаем помещение свободного назначения в клубном доме Artisan , площадью 405.5 кв. м, расположенное на первом этаже 2-этажного жилого дома. Без комиссии для покупателя.Преимущества объекта:-первая линия ул. Арбат;-шаговая доступность от станции...
    • 1/2 эт.
    394 146 000 Р
    Агент
    +7 (938) Показать номер
    Посмотреть контакты
    Помещение свободного назначения в Москва ул. Остоженка, 10 (333 м) - Фото 1
    Помещение свободного назначения в Москва ул. Остоженка, 10 (333 м) - Фото 2
    664209. Предлагаем помещение свободного назначения с сетевым арендатором Азбука Вкуса , площадью 333 кв. м., расположенное на первом этаже административного здания. Без комиссии для покупателя.Преимущества объекта:-первая линия;-пешая доступность от...
    • 1/4 эт.
    400 000 000 Р
    Агент
    +7 (938) Показать номер
    Посмотреть контакты
    Помещение свободного назначения в Москва ул. Большие Каменщики, 6С1 ... - Фото 1
    Помещение свободного назначения в Москва ул. Большие Каменщики, 6С1 ... - Фото 2
    731245. Предлагаем помещение свободного назначения с якорными арендаторами Пятерочка и ВкусВилл, площадью 1 546,5 кв. м., расположенное во встроенно-пристроенной части жилого дома. Без комиссии для покупателя.Преимущества объекта:-3 минуты пешком от станции...
    • 1/14 эт.
    400 000 000 Р
    Агент
    +7 (938) Показать номер
    Посмотреть контакты

    Не нашли подходящего объявления?

    Оставьте заявку, и наши риэлторы подберут псн в районе Москвы

    (0)