Россия, Москва, БК Прокшино тер., 3
47 238 066 Р 604 100 $ или 520 300

Информация об помещении

1
Этаж

Состояние и оснащение

Количество этажей
12
Развернуть
Агент
+7 (938) 656-74-88
Начать чат с агентом

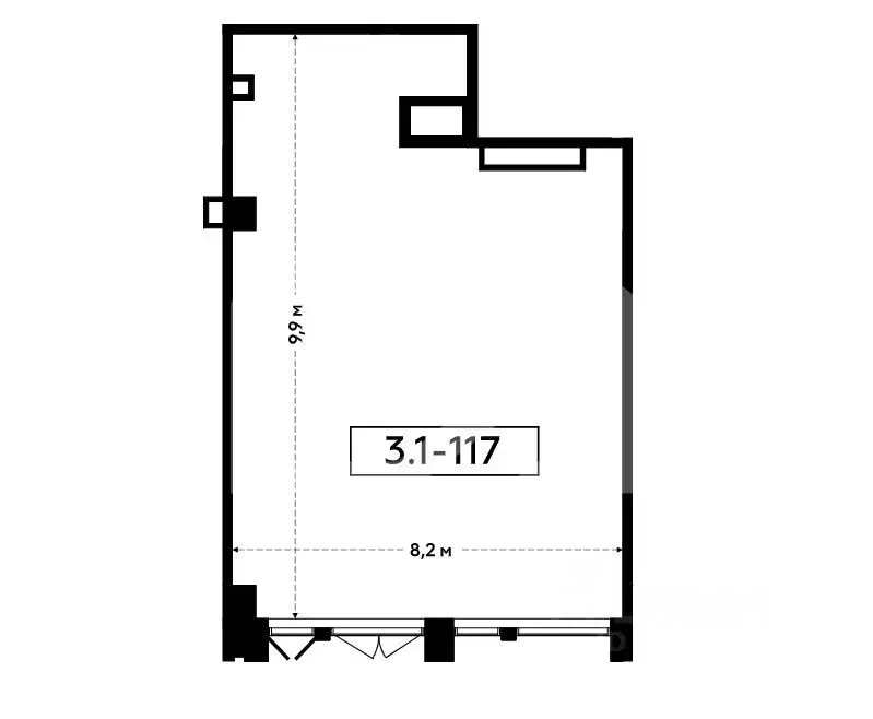
Помещение свободного назначения в Москва БК Прокшино тер., 3 (89 м)

1102269. Предлагаем помещение свободного назначения в бизнес-квартале Прокшино , площадью 89.4 кв. м, расположенное на первом этаже 12-этажного жилого дома. Корпус: 3.1. Без комиссии для покупателя.Преимущества объекта:-первая линия Филатовского шоссе;-офисный квартал состоит из 5 корпусов переменной этажности (от 12 до 13 этажей);-2 минуты пешком от станции метро Прокшино ;-удобная транспортная доступность: 1.3 км до Новомихайловского шоссе, 3 км до Калужского шоссе, 3.5 км до Филимонковского шоссе;-плотный жилой массив;-развитая инфраструктура района;-высокий автомобильный и пешеходный трафик;-отлично просматривается, находится в легком доступе для потенциальных клиентов;-гибкая планировка, позволяющая адаптировать пространство под различные нужды;-витринное остекление;-возможность размещения вывески;-наземная парковка;-рядом остановка общественного транспорта.Технические параметры объекта:-2 отдельные входные группы.-электрическая мощность: 20 кВт.-высота потолков: 5 м.Ввод в эксплуатацию: II квартал 2027.Свяжитесь с нами для получения дополнительной информации

Читать полностью
    Позвонить Написать
    47 238 066 Р604 100 $ или 520 300
    Агент
    +7 (938) 656-74-88
    Начать чат с агентом
    Похожие предложения в Москве
    Помещение свободного назначения в Москва БК Прокшино тер., 3 (91 м) - Фото 1
    Помещение свободного назначения в Москва БК Прокшино тер., 3 (91 м) - Фото 2
    1102277. Предлагаем помещение свободного назначения в бизнес-квартале Прокшино , площадью 90.7 кв. м, расположенное на первом этаже 12-этажного жилого дома. Корпус: 3.1. Без комиссии для покупателя.Преимущества объекта:-первая линия Филатовского шоссе;-офисный...
    • 1/12 эт.
    47 998 440 Р
    Агент
    +7 (938) Показать номер
    Посмотреть контакты
    Помещение свободного назначения в Москва БК Прокшино тер., 3 (87 м) - Фото 1
    Помещение свободного назначения в Москва БК Прокшино тер., 3 (87 м) - Фото 2
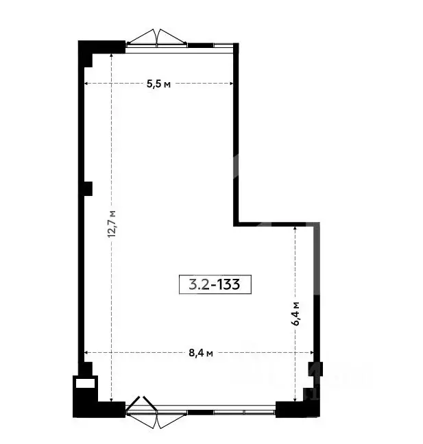
    1102346. Предлагаем помещение свободного назначения в бизнес-квартале Прокшино , площадью 86.8 кв. м, расположенное на первом этаже 12-этажного жилого дома. Корпус: 3.2. Без комиссии для покупателя.Преимущества объекта:-первая линия Филатовского шоссе;-офисный...
    • 1/12 эт.
    47 626 292 Р
    Агент
    +7 (938) Показать номер
    Посмотреть контакты
    Помещение свободного назначения в Москва БК Прокшино тер., 3 (91 м) - Фото 1
    Помещение свободного назначения в Москва БК Прокшино тер., 3 (91 м) - Фото 2
    1102277-s . Предлагаем помещение свободного назначения в бизнес-квартале Прокшино , площадью 90.7 кв. м, расположенное на первом этаже 12-этажного жилого дома. Корпус: 3.1. Без комиссии для покупателя.Преимущества объекта:-первая линия Филатовского шоссе;-офисный...
    • 1/12 эт.
    47 998 440 Р
    Агент
    +7 (938) Показать номер
    Посмотреть контакты
    Помещение свободного назначения в Москва БК Прокшино тер., 3 (87 м) - Фото 1
    Помещение свободного назначения в Москва БК Прокшино тер., 3 (87 м) - Фото 2
    1102346-s . Предлагаем помещение свободного назначения в бизнес-квартале Прокшино , площадью 86.8 кв. м, расположенное на первом этаже 12-этажного жилого дома. Корпус: 3.2. Без комиссии для покупателя.Преимущества объекта:-первая линия Филатовского шоссе;-офисный...
    • 1/12 эт.
    47 626 292 Р
    Агент
    +7 (938) Показать номер
    Посмотреть контакты
    Помещение свободного назначения в Москва БК Прокшино тер., 3 (89 м) - Фото 1
    Помещение свободного назначения в Москва БК Прокшино тер., 3 (89 м) - Фото 2
    1102269-s . Предлагаем помещение свободного назначения в бизнес-квартале Прокшино , площадью 89.4 кв. м, расположенное на первом этаже 12-этажного жилого дома. Корпус: 3.1. Без комиссии для покупателя.Преимущества объекта:-первая линия Филатовского шоссе;-офисный...
    • 1/12 эт.
    47 238 066 Р
    Агент
    +7 (938) Показать номер
    Посмотреть контакты

    Не нашли подходящего объявления?

    Оставьте заявку, и наши риэлторы подберут псн в районе Москвы

    (0)