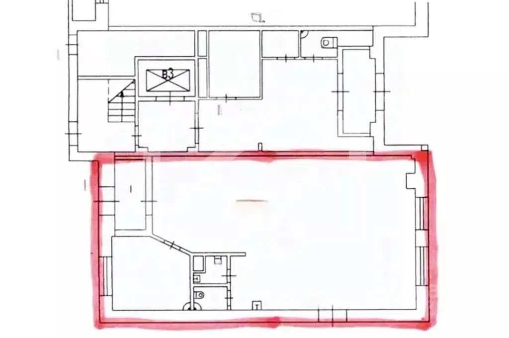
1097619-o . Предлагаем офисное помещение площадью 94,5 кв. м, расположенное на 1 этаже в престижном жилом комплексе Красная Пресня 7.Преимущества объекта:- Шаговая доступность от станции метро Краснопресненская (3 минуты пешком)- Этаж: 1- Помещение предлагается с отделкой- Планировка смешанная: кабинет, просторная входная зона, большая переговорная, санузел, кухня- Есть возможность организации парковки на охраняемой наземной территории.- Два отдельных входаОперативно организуем для Вас показ и ответим на все вопросы.Свяжитесь с нами для получения дополнительной информации
Оставьте заявку, и наши риэлторы подберут псн в районе Москвы