Россия, Москва, Большая Новодмитровская ул., 23С1
39 210 000 Р 511 700 $ или 432 900

Информация об помещении

4
Этаж

Состояние и оснащение

Количество этажей
7
Развернуть
Агент
+7 (938) 656-74-88
Начать чат с агентом

Помещение свободного назначения в Москва Большая Новодмитровская ул., ...

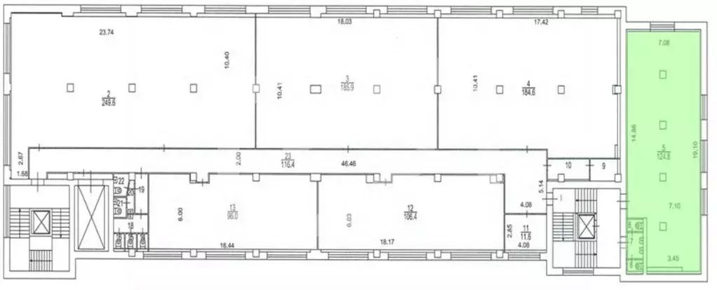
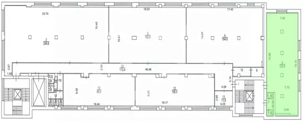
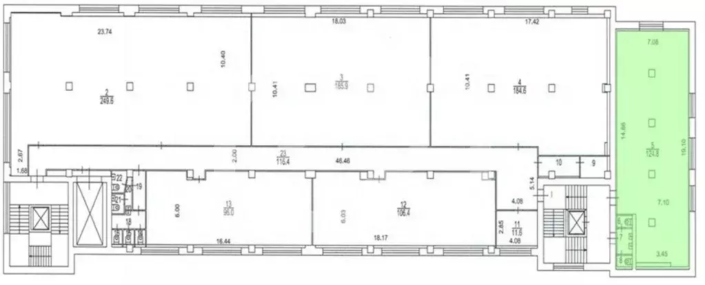
1009354-o . Предлагаем офисное помещение площадью 130,7 кв. м, расположенное на 4 этаже бизнес-центра Стрелецкая Слобода Преимущества объекта:- Бизнес-центр класса В+- Шаговая доступность от станции метро Савёловская и Дмитровская (10 минут пешком)- Этаж: 4- Помещение предлагается с отделкой- Планировка смешаннаяОперативно организуем для Вас показ и ответим на все вопросы.Свяжитесь с нами для получения дополнительной информации

Читать полностью
    Позвонить Написать
    39 210 000 Р511 700 $ или 432 900
    Агент
    +7 (938) 656-74-88
    Начать чат с агентом
    Похожие предложения в Москве
    Помещение свободного назначения в Москва Большая Новодмитровская ул., ... - Фото 1
    Помещение свободного назначения в Москва Большая Новодмитровская ул., ... - Фото 2
    1009357-o . Предлагаем офисное помещение площадью 131,2 кв. м, расположенное на 4 этаже бизнес-центра Стрелецкая Слобода Преимущества объекта:- Бизнес-центр класса В+- Шаговая доступность от станции метро Савёловская и Дмитровская (10 минут пешком)-...
    • 4/7 эт.
    39 360 000 Р
    Агент
    +7 (938) Показать номер
    Посмотреть контакты
    Помещение свободного назначения в Москва Большая Новодмитровская ул., ... - Фото 1
    Помещение свободного назначения в Москва Большая Новодмитровская ул., ... - Фото 2
    1009357-o . Предлагаем офисное помещение площадью 131,2 кв. м, расположенное на 4 этаже бизнес-центра Стрелецкая Слобода Преимущества объекта:- Бизнес-центр класса В+- Шаговая доступность от станции метро Савёловская и Дмитровская (10 минут пешком)-...
    • 4/7 эт.
    39 360 000 Р
    Агент
    +7 (938) Показать номер
    Посмотреть контакты
    Помещение свободного назначения в Москва Большая Новодмитровская ул., ... - Фото 1
    Помещение свободного назначения в Москва Большая Новодмитровская ул., ... - Фото 2
    1009354-o . Предлагаем офисное помещение площадью 130,7 кв. м, расположенное на 4 этаже бизнес-центра Стрелецкая Слобода Преимущества объекта:- Бизнес-центр класса В+- Шаговая доступность от станции метро Савёловская и Дмитровская (10 минут пешком)-...
    • 4/7 эт.
    39 210 000 Р
    Агент
    +7 (938) Показать номер
    Посмотреть контакты
    Помещение свободного назначения в Москва Большая Новодмитровская ул., ... - Фото 1
    Помещение свободного назначения в Москва Большая Новодмитровская ул., ... - Фото 2
    1009354-o . Предлагаем офисное помещение площадью 130,7 кв. м, расположенное на 4 этаже бизнес-центра Стрелецкая Слобода Преимущества объекта:- Бизнес-центр класса В+- Шаговая доступность от станции метро Савёловская и Дмитровская (10 минут пешком)-...
    • 4/7 эт.
    39 210 000 Р
    Агент
    +7 (938) Показать номер
    Посмотреть контакты
    Помещение свободного назначения в Москва Большая Новодмитровская ул., ... - Фото 1
    Помещение свободного назначения в Москва Большая Новодмитровская ул., ... - Фото 2
    1009357-o . Предлагаем офисное помещение площадью 131,2 кв. м, расположенное на 4 этаже бизнес-центра Стрелецкая Слобода Преимущества объекта:- Бизнес-центр класса В+- Шаговая доступность от станции метро Савёловская и Дмитровская (10 минут пешком)-...
    • 4/7 эт.
    39 360 000 Р
    Агент
    +7 (938) Показать номер
    Посмотреть контакты

    Не нашли подходящего объявления?

    Оставьте заявку, и наши риэлторы подберут псн в районе Москвы

    (0)