220 000 000 Р 2 813 700 $ или 2 423 100

Информация об помещении

1
Этаж

Состояние и оснащение

Количество этажей
1
Развернуть
Агент
+7 (938) 656-74-88
Начать чат с агентом

Помещение свободного назначения в Москва Ясеневая ул., 40 (771 м)

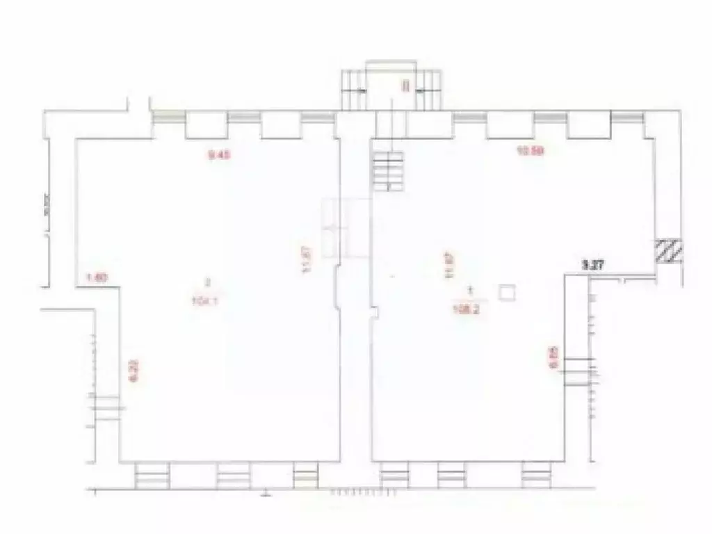
882933-gab . Предлагаем отдельно стоящее здание с якорными арендаторами Пятерочка , Wildberries, площадью 771 кв. м. Преимущества объекта:-первая линия ул. Ясеневая;-шаговая доступность от станции метро Зябликово (4 минуты пешком);-центральные коммуникации;-рядом остановка общественного транспорта;-ЗУ (2 618 кв. м).Технические параметры объекта:-две отдельные входные группы с улицы.-электрическая мощность: 220 кВт.-высота потолков: 4.1 м.Информация об арендаторах:-Арендаторы: Пятерочка , Wildberries.-МАП:уб/мес.-Окупаемость: 10.7 лет.

Читать полностью
    Позвонить Написать
    220 000 000 Р2 813 700 $ или 2 423 100
    Агент
    +7 (938) 656-74-88
    Начать чат с агентом
    Похожие предложения
    Помещение свободного назначения (573 м) - Фото 1
    Помещение свободного назначения (573 м) - Фото 2
    Арт.Продается помещение свободного назначения, 573м, Москва, ЮАО, р-н Бирюлево Восточное, Квартал Герцена жилой комплекс, к2 Площадь: 573 м Этаж: 1 из 30 Помещение: Свободно. Срок сдачи: 4 квартал 2027 г. Метро: Домодедовская (5 мин.), Красногвардейская...
    • 1/30 эт.
    214 960 000 Р
    Агент
    +7 (909) Показать номер
    Посмотреть контакты
    Помещение свободного назначения в Москва Новослободская ул., 19С1 (265 ... - Фото 1
    Уважаемый Покупатель, предлагаем Вам приобрести помещение свободного назначения 265.4 м на 1 этаже в собственность на выгодных условиях.Приточно-вытяжная вентиляция. Интернет, телефония. Отдельный вход. ЦАО Москвы. В 3 минутах от м. Менделеевская, НовослободскаяБыстро...
    • 1/7 эт.
    229 000 000 Р
    Агент
    +7 (985) Показать номер
    Посмотреть контакты
    Помещение свободного назначения в Москва ул. Покровка, 7/9-11К1 (315 ... - Фото 1
    Помещение свободного назначения с отделкойПлощадь: 315.1мЭтаж: 1, 2, антресоль, отдельный входВысота потолков: 4.0мМожет использоваться под магазин О здании:Класс B . Год постройки: 1929. Жилой дом с коммерческими площадями на 1 и 2 этажах. Интернет,...
    • 2/8 эт.
    213 500 000 Р
    Агент
    +7 (985) Показать номер
    Посмотреть контакты
    Помещение свободного назначения в Москва Страстной бул., 4С3 (212 м) - Фото 1
    Помещение свободного назначения в Москва Страстной бул., 4С3 (212 м) - Фото 2
    664023. Предлагаем помещение свободного назначения с арендатором бар Север , площадью 212,3 кв. м., расположенное на первом этаже административного здания. Без комиссии для покупателя.Преимущества объекта:-первая линия Страстного Бульвара;-1 минута пешком...
    • 1/4 эт.
    230 000 000 Р
    Агент
    +7 (938) Показать номер
    Посмотреть контакты
    Продается ПСН 569.4 м2 - Фото 1
    Продается ПСН 569.4 м2 - Фото 2
    Продается ПСН 569.4 м2 - Фото 3
    Продается ПСН 569.4 м2 - Фото 4
    Продается ПСН 569.4 м2 - Фото 5
    Продается ПСН 569.4 м2 - Фото 6
    Продается ПСН 569.4 м2 - Фото 7
    Продается ПСН 569.4 м2 - Фото 8
    полезная площадь 569.4м²

    Предлагаются к продаже нежилое помещение площадью 569.4 кв. м. в историческом центре Москвы в доме 1912 года постройки. Адрес: Москва, улица 1-я Тверская-Ямская, дом 8, пом. 1/2 Кадастровый номер: 77:01:0004011:5592 Номер, тип этажа, на котором расположено...
    • 569.4 м²
    • 2/6 эт.
    222 042 486 Р
    Агент
    +7 (930) Показать номер
    Посмотреть контакты

    Не нашли подходящего объявления?

    Оставьте заявку, и наши риэлторы подберут псн в районе Москвы

    (0)