650 000 000 Р 8 411 700 $ или 7 119 700

Информация об помещении

1
Этаж

Состояние и оснащение

Количество этажей
3
Развернуть
Агент
+7 (983) 478-03-42
Начать чат с агентом

Помещение свободного назначения в Москва ул. Петровка, 21С1 (724 м)

Предлагается к продаже трофейный объект недвижимости с окупаемостью рыночного. Часть здания на первой линии исторической улицы Петровка. Здание ОКН, но не требует каких-либо работ. Общая площадь в несколько уровней 730 кв.м., большой зал со входом с первой линии Петровки с витринными окнами, далее второй этаж с арочными окнами, а также антресоли и веранда. Все планировки согласованы. На здание есть лист ожидания по аренде от резидентов из HoReCa и Fashion, дающее совокупный МАП ., что делает окупаемость объекта менее 10-ти лет, при условиях его трофейности.Цена. Торг уместен с предметным инвестором. УСН.Точки притяжения: объекты культурыБлижайшие станции метро: Чеховская, Цветной бульвар, Трубная, Театральная, Охотный рядПомещение подойдет для: Торговая площадь, Кафе/ресторан ID - 572940

Читать полностью
    Позвонить Написать
    650 000 000 Р8 411 700 $ или 7 119 700
    Агент
    +7 (983) 478-03-42
    Начать чат с агентом
    Похожие предложения
    Продажа ПСН, м. Дмитровская, ул. Добролюбова - Фото 1
    Продажа ПСН, м. Дмитровская, ул. Добролюбова - Фото 2
    Продажа ПСН, м. Дмитровская, ул. Добролюбова - Фото 3
    Продажа ПСН, м. Дмитровская, ул. Добролюбова - Фото 4
    Продажа ПСН, м. Дмитровская, ул. Добролюбова - Фото 5
    Продажа ПСН, м. Дмитровская, ул. Добролюбова - Фото 6
    Продажа ПСН, м. Дмитровская, ул. Добролюбова - Фото 7
    Продажа ПСН, м. Дмитровская, ул. Добролюбова - Фото 8
    общая площадь 3063.5м², полезная площадь 3063.5м²

    От собственника - арендный бизнес. Продажа нежилого 2-х этажного отдельно стоящего здания (ОСЗ) без подвала, в 15 минутах пешком от 2-х станций метро - Дмитровская и Бутырская. Общая площадь всего здания 3063,5 м2, площадь 1-го этажа 2 495,1 м2, площадь...
    • 3 063.5 м²
    • 1-й эт.
    643 335 000 Р
    Агент
    +7 (903) Показать номер
    Посмотреть контакты
    Помещение свободного назначения в Москва 1-я Тверская-Ямская ул., 28 ... - Фото 1
    Помещение свободного назначения в Москва 1-я Тверская-Ямская ул., 28 ... - Фото 2
    Id 388513. ВИТРИННЫЕ ОКНАТРИ ЭТАЖА, ТРИ СОБСТВЕННЫХ ВХОДА1ая Тверская-Ямская. Дом расположен между Белорусской и Маяковской по правой стороне при движении из центра. Боьльшие арочные витринные окна.Три отдельных собственных входа. Два с 1ой Тверской-Ямской,...
    • 1/9 эт.
    650 000 000 Р
    Агент
    +7 (985) Показать номер
    Посмотреть контакты
    Помещение свободного назначения в Москва просп. Маршала Жукова, 7К2 ... - Фото 1
    Помещение свободного назначения в Москва просп. Маршала Жукова, 7К2 ... - Фото 2
    843928-b . Предлагаем к приобретению отдельно стоящее здание, площадью 1 074 кв. м. 1, 2 этаж, мансарда и подвал. Без комиссии для покупателя. Преимущества объекта:-9 минут пешком от станций метро Народное ополчение и МЦК Хорошево;-удобный выезд на проспект...
    • 2/2 эт.
    650 000 000 Р
    Агент
    +7 (938) Показать номер
    Посмотреть контакты
    Помещение свободного назначения в Москва Ходынский бул., 20А/2 (1440 ... - Фото 1
    Помещение свободного назначения в Москва Ходынский бул., 20А/2 (1440 ... - Фото 2
    932524-o . Предлагаем офисное помещение площадью 1 439,9 кв. м, расположенное на 12 этаже строящегося БЦ Stone Ходынка-2 Преимущества объекта:- Бизнес-центр класса А- Шаговая доступность от станции метро ЦСКА (5 минут пешком)- Этаж: 12- Помещение предлагается...
    • 12/23 эт.
    650 834 800 Р
    Агент
    +7 (938) Показать номер
    Посмотреть контакты
    Помещение свободного назначения в Москва Садовническая ул., 84С7 (1184 ... - Фото 1
    Помещение свободного назначения в Москва Садовническая ул., 84С7 (1184 ... - Фото 2
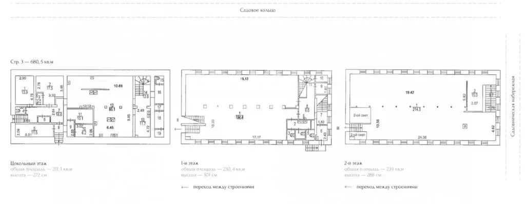
    Арт.ВАШЕМУ ВНИМАНИЮ ПРЕДЛАГАЮ --- ОСЗ (особняк) на первой линии Садового кольца, с узаконенной летней верандой По ЕГРН - 2 строения, физически - единое здание. Не памятник архитектуры ХАРАКТЕРИСТИКИ:-Зем.участок: 538 м2 (ДАЗУ до 2050 г.); -ВРИ: Предпринимательство...
    • 1/2 эт.
    650 000 000 Р
    Агент
    +7 (910) Показать номер
    Посмотреть контакты

    Не нашли подходящего объявления?

    Оставьте заявку, и наши риэлторы подберут псн в районе Москвы

    (0)