41 000 000 Р 528 300 $ или 454 000

Информация об помещении

1
Этаж

Состояние и оснащение

Количество этажей
14
Развернуть
Агент
+7 (938) 656-74-88
Начать чат с агентом

Помещение свободного назначения в Москва Нахимовский просп., 11К1 (73 ...

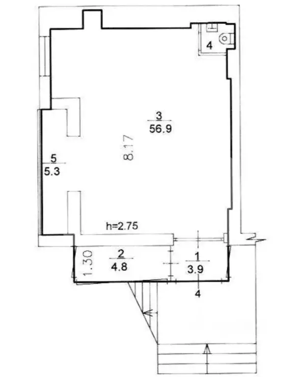
976396-gab . Предлагаем помещение свободного назначения формата Street Retail с сетевым арендатором - алкомаркет Красное и Белое , площадью 72,5 кв. м., расположенное на первом этаже жилого дома. Без комиссии для покупателя. Преимущества объекта:-140 метров от станции метро Нахимовский проспект, первый дом при выходе со станции;-плотный жилой массив;-развитая инфраструктура района;-соседи: алкомаркет, аптека, пункт выдачи заказов;-объект отлично просматривается, находится в легком доступе для клиентов;-надежный сетевой арендатор;-открытая планировка;-дизайнерский ремонт;-витринное остекление;-место для вывески;-городские коммуникации;-наземная парковка. Технические параметры объекта:-отдельный вход со стороны станции метро;-высота потолков: 2.75 м. Информация об арендаторе:-арендатор: алкомаркет Красное и Белое ;-прибыль:/мес. Свяжитесь с нами для получения дополнительной информации

Читать полностью
    Позвонить Написать
    41 000 000 Р528 300 $ или 454 000
    Агент
    +7 (938) 656-74-88
    Начать чат с агентом
    Похожие предложения
    Помещение свободного назначения в Москва Нахимовский просп., 11К1 (73 ... - Фото 1
    Помещение свободного назначения в Москва Нахимовский просп., 11К1 (73 ... - Фото 2
    976396. Предлагаем помещение свободного назначения с сетевым арендатором - алкомаркет Красное и Белое , площадью 72,5 кв. м., расположенное на первом этаже жилого дома. Без комиссии для покупателя. Преимущества объекта:-140 метров от станции метро Нахимовский...
    • 1/14 эт.
    41 000 000 Р
    Агент
    +7 (938) Показать номер
    Посмотреть контакты
    Помещение свободного назначения в Москва Краснобогатырская ул., 40 ... - Фото 1
    Помещение свободного назначения в Москва Краснобогатырская ул., 40 ... - Фото 2
    Лот 159208.Предлагается в продажу помещение свободного назначения, по адресу г. Москва, ул. Краснобогатырская, ЖК Большая семерка ,128. 9 м. Жилой комплекс представлен 7 корпусами высотой 17 этажей, объединенными общим стилобатом. Здания возведены по...
    • -1/1 эт.
    41 276 800 Р
    Агент
    +7 (985) Показать номер
    Посмотреть контакты
    Помещение свободного назначения в Москва ул. Красная Пресня, 12 (21 м) - Фото 1
    Помещение свободного назначения в Москва ул. Красная Пресня, 12 (21 м) - Фото 2
    Арт.Торговое помещение на первой фасадной линии Красной Пресни. 1. Общие сведения о локацииУлица Красная Пресня, расположенная в ЦАО г. Москвы, известна своей богатой историей и уникальной архитектурой. Эта улица привлекает внимание предпринимателей возможностью...
    • 1/9 эт.
    40 000 000 Р
    Агент
    +7 (916) Показать номер
    Посмотреть контакты
    Продается помещение 63 м2 в ЖК бизнес-класса "Событие" Раменки - Фото 1
    Продается помещение 63 м2 в ЖК бизнес-класса "Событие" Раменки - Фото 2
    Продается помещение 63 м2 в ЖК бизнес-класса "Событие" Раменки - Фото 3
    Продается помещение 63 м2 в ЖК бизнес-класса "Событие" Раменки - Фото 4
    Продается помещение 63 м2 в ЖК бизнес-класса "Событие" Раменки - Фото 5
    Продается помещение 63 м2 в ЖК бизнес-класса "Событие" Раменки - Фото 6
    Продается помещение 63 м2 в ЖК бизнес-класса "Событие" Раменки - Фото 7
    Продается помещение 63 м2 в ЖК бизнес-класса "Событие" Раменки - Фото 8
    Продается помещение 63 м2 в ЖК бизнес-класса "Событие" Раменки - Фото 9
    Продается помещение 63 м2 в ЖК бизнес-класса "Событие" Раменки - Фото 10
    Продается помещение 63 м2 в ЖК бизнес-класса "Событие" Раменки - Фото 11
    Продается помещение 63 м2 в ЖК бизнес-класса "Событие" Раменки - Фото 12
    Продается помещение 63 м2 в ЖК бизнес-класса "Событие" Раменки - Фото 13
    Продается помещение 63 м2 в ЖК бизнес-класса "Событие" Раменки - Фото 14
    Продается помещение 63 м2 в ЖК бизнес-класса "Событие" Раменки - Фото 15
    Продается помещение 63 м2 в ЖК бизнес-класса "Событие" Раменки - Фото 16
    Продается помещение 63 м2 в ЖК бизнес-класса "Событие" Раменки - Фото 17
    полезная площадь 63м²

    Продажа помещения (стрит-ритейл) 63 м2 в ЖК бизнес-класса «Событие», Раменки (45 м первый этаж и 18 м надстройка) Локация: Москва, ул. Янковского, д. 1, к. 3. Престижный район Раменки. Жилой комплекс бизнес-класса «Событие» (1-я линия домов). Локация...
    • 63 м²
    • 1/27 эт.
    42 000 000 Р
    Агент
    +7 (983) Показать номер
    Посмотреть контакты
    Прямая продажа от застройщика - Фото 1
    Прямая продажа от застройщика - Фото 2
    Прямая продажа от застройщика - Фото 3
    Прямая продажа от застройщика - Фото 4
    Прямая продажа от застройщика - Фото 5
    Прямая продажа от застройщика - Фото 6
    Прямая продажа от застройщика - Фото 7
    Прямая продажа от застройщика - Фото 8
    Прямая продажа от застройщика - Фото 9
    Прямая продажа от застройщика - Фото 10
    Прямая продажа от застройщика - Фото 11
    Прямая продажа от застройщика - Фото 12
    Прямая продажа от застройщика - Фото 13
    Прямая продажа от застройщика - Фото 14
    Прямая продажа от застройщика - Фото 15
    Прямая продажа от застройщика - Фото 16
    Прямая продажа от застройщика - Фото 17
    Прямая продажа от застройщика - Фото 18
    Прямая продажа от застройщика - Фото 19
    Прямая продажа от застройщика - Фото 20
    полезная площадь 107.7м²

    Предлагается в продажу помещение свободного назначения, расположенное в ЖК 1-й Саларьевский площадью 107.7 кв.м. Располагается на 1 этаже 25-этажного корпуса. Помещение идеально подойдет для магазина, кафе, офиса или другого бизнеса благодаря функциональной...
    • 107.7 м²
    • 1/25 эт.
    41 678 736 Р
    Агент
    +7 (495) Показать номер
    Посмотреть контакты

    Не нашли подходящего объявления?

    Оставьте заявку, и наши риэлторы подберут псн в районе Москвы

    (0)