307 800 000 Р 3 983 200 $ или 3 371 400

Информация об помещении

6
Этаж

Состояние и оснащение

Количество этажей
7
Развернуть
Агент
+7 (923) 073-32-11
Начать чат с агентом

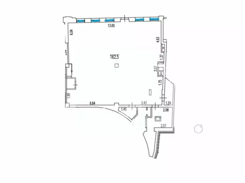
Помещение свободного назначения в Москва Верейская ул., 29С34 (810 м)

Продажа от собственника В современном бизнес-центре Верейская Плаза IV продается помещение площадью 810 кв.м. Комплекс Верейская Плаза состоит их 3-х офисных корпусов класса В+. 6 этаж. - Собственная планировка. - Множество кабинетов с окнами на улицу. - Кабинет руководства. Переговорные. - СКС. Вентиляция. Кондиционирование. - Офис оборудован премиальной сантехникой. - Помещение сдано в аренду. Арендатор до сентября 2026 г. Комплекс БЦ - заселен на 90 -100 .Презентабельная входная группа. Круглосуточная охрана и видеонаблюдение.За БЦ Верейская Плаза ведется активное строительство двух огромных ЖК (Set / Veer).Станция метро Верейская, в радиусе 500 м от БЦ- планируется запуск станции к 2031 г.Звоните и записывайтесь на просмотр

Читать полностью
    Позвонить Написать
    307 800 000 Р3 983 200 $ или 3 371 400
    Агент
    +7 (923) 073-32-11
    Начать чат с агентом
    Похожие предложения
    Помещение свободного назначения в Москва ул. Арбат, 39 (189 м) - Фото 1
    Помещение свободного назначения в Москва ул. Арбат, 39 (189 м) - Фото 2
    663968-gab . Предлагаем помещение свободного назначения с надёжным сетевым арендатором STARS COFFEE , площадью 188.9 кв. м., расположенное на первом этаже административного здания. Без комиссии для покупателя. Преимущества объекта:-первая линия ул. Арбат;-5...
    • 1/2 эт.
    306 018 000 Р
    Агент
    +7 (938) Показать номер
    Посмотреть контакты
    Помещение свободного назначения в Москва Дубравная ул., 51с1 (2229 м) - Фото 1
    Помещение свободного назначения в Москва Дубравная ул., 51с1 (2229 м) - Фото 2
    1115512-gab . Предлагаем помещение свободного назначения с арендатором Спортмастер в МФК Митино Парк , площадью 2229.4 кв. м, расположенное на первом этаже 3-этажного здания. Без комиссии для покупателя.Преимущества объекта:-на пересечении ул. Дубравная...
    • 1/3 эт.
    303 628 500 Р
    Агент
    +7 (938) Показать номер
    Посмотреть контакты
    Помещение свободного назначения в Москва Мясницкая ул., 24/7С8 (199 м) - Фото 1
    Помещение свободного назначения в Москва Мясницкая ул., 24/7С8 (199 м) - Фото 2
    643987-gab . Предлагаем помещение свободного назначения с надёжным арендатором Ресторан, площадью 199.4 кв. м, расположенное на первом этаже 2-этажного административного здания. Без комиссии для покупателя.Преимущества объекта:-первая линия ул. Мясницкая;-шаговая...
    • 1/2 эт.
    320 000 000 Р
    Агент
    +7 (938) Показать номер
    Посмотреть контакты
    Продажа ПСН, м. Китай-город, Лубянский проезд - Фото 1
    Продажа ПСН, м. Китай-город, Лубянский проезд - Фото 2
    Продажа ПСН, м. Китай-город, Лубянский проезд - Фото 3
    Продажа ПСН, м. Китай-город, Лубянский проезд - Фото 4
    Продажа ПСН, м. Китай-город, Лубянский проезд - Фото 5
    Продажа ПСН, м. Китай-город, Лубянский проезд - Фото 6
    общая площадь 720.4м², полезная площадь 720.4м²

    Продажа особняка в историческом центре Москвы. Здание расположено на 1-й линии, в 1 мин. пешей доступности от метро Китай-город. Общая площадь 720,4 кв.м, расположено в 4-х уровнях: подвал 163,4 квм, 1 эт. -198,7 кв.м, 2 эт. -198,4 кв.м, мезонин - 159,9...
    • 720.4 м²
    • 1-й эт.
    310 800 000 Р
    Агент
    +7 (903) Показать номер
    Посмотреть контакты
    Продажа ПСН, м. Алексеевская, ул. Бочкова - Фото 1
    Продажа ПСН, м. Алексеевская, ул. Бочкова - Фото 2
    Продажа ПСН, м. Алексеевская, ул. Бочкова - Фото 3
    Продажа ПСН, м. Алексеевская, ул. Бочкова - Фото 4
    Продажа ПСН, м. Алексеевская, ул. Бочкова - Фото 5
    Продажа ПСН, м. Алексеевская, ул. Бочкова - Фото 6
    Продажа ПСН, м. Алексеевская, ул. Бочкова - Фото 7
    Продажа ПСН, м. Алексеевская, ул. Бочкова - Фото 8
    Продажа ПСН, м. Алексеевская, ул. Бочкова - Фото 9
    Продажа ПСН, м. Алексеевская, ул. Бочкова - Фото 10
    Продажа ПСН, м. Алексеевская, ул. Бочкова - Фото 11
    Продажа ПСН, м. Алексеевская, ул. Бочкова - Фото 12
    общая площадь 388м², полезная площадь 388м²

    От собственника! ПСН общей площадью 388 м2, находится в 2–х минутах пешком от станции метро Алексеевская, СВАО, район Останкинский. Помещение расположено на 1 этаже 2-х этажной пристройки к жилому дому. 1-я линия домов. Высота потолков 3,5 метров, есть...
    • 388 м²
    • 1-й эт.
    310 000 000 Р
    Агент
    +7 (903) Показать номер
    Посмотреть контакты

    Не нашли подходящего объявления?

    Оставьте заявку, и наши риэлторы подберут псн в районе Москвы

    (0)