Россия, Москва, Большая Татарская ул., 7к1
575 000 000 Р 7 167 300 $ или 6 251 000

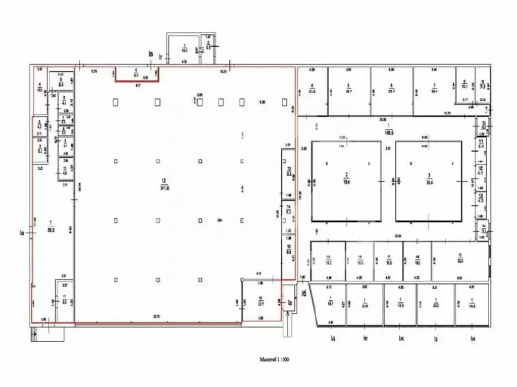
Информация об помещении

1
Этаж

Состояние и оснащение

Количество этажей
10
Развернуть
Агент
+7 (986) 314-26-47
Начать чат с агентом

Помещение свободного назначения в Москва Большая Татарская ул., 7к1 ...

200988 ЖК 4 СолнцаПремиальное ПСН 999,1 м в ЖК Четыре солнца В продажу предлагается уникальный лот в элитном ЖК Четыре солнца (ЦАО). Помещение идеально подходит для представительского офиса, флагманского бутика, клиники или банковского отделения.Основные параметры:Общая площадь: 999,1 м (1 этаж — 324,1 м, 2 этаж — 675 м).Угловое помещение с панорамными окнами на 1-м этаже и тремя независимыми входами.Собственный грузовой лифт на второй этаж. Высота потолков — 3 м.Планировка и состояние:Помещение ранее использовалось под книжный магазин и офис. Полностью готовая инфраструктура:1 этаж: просторный open space с антикражными рамками и книжными стеллажами.2 этаж: ресепшн, переговорная, кабинеты руководителей, серверная, кассовый узел с 3 окнами и санузлами.Система видеонаблюдения и охранная сигнализация установлены.6 парковочных мест:ядом с помещением на улице, 2 в подземном паркинге.Престижное Замоскворечье, 5 минут пешком до м. Новокузнецкая и Третьяковская. Высокий статус соседства и отличный трафик.Презентация по запросу.

Читать полностью
    Позвонить Написать
    575 000 000 Р7 167 300 $ или 6 251 000
    Агент
    +7 (986) 314-26-47
    Начать чат с агентом
    Похожие предложения
    Помещение свободного назначения в Москва Кронштадтский бул., 30Б (1628 ... - Фото 1
    Помещение свободного назначения в Москва Кронштадтский бул., 30Б (1628 ... - Фото 2
    644220. Предлагаем отдельно стоящее здание с сетевыми якорными арендаторами Магнит и Пятерочка , площадью 1 628 кв. м. Без комиссии для покупателя.Преимущества объекта:-первая линия;-пешая доступность от станций метро Водный стадион и МЦД-3 Моссельмаш...
    • 1/1 эт.
    575 000 000 Р
    Агент
    +7 (938) Показать номер
    Посмотреть контакты
    Помещение свободного назначения в Москва Измайловский проезд, 8А (4068 ... - Фото 1
    Помещение свободного назначения в Москва Измайловский проезд, 8А (4068 ... - Фото 2
    Продажа здания 4068,3 кв.м в Измайлово на Востоке Москвы.Два этажа, в том числе:1 этаж - 2594,2 м2; 2 этаж - 1474,1 м2.Высота потолка; 2,71 м - 3,41 м2.Часть помещений на 1 этаже имеют второй свет.Состояние: с отделкойМощность - 245,4 кВтДвое въездных...
    • 2/2 эт.
    570 000 000 Р
    Агент
    +7 (923) Показать номер
    Посмотреть контакты
    Помещение свободного назначения в Москва ул. Остоженка, 25 (580 м) - Фото 1
    Помещение свободного назначения в Москва ул. Остоженка, 25 (580 м) - Фото 2
    065092 ЖК Опера ХаусПомещение свободного назначения площадью 580 кв.м на 1 этаже в ЖК Опера Хаус .ЖК Опера Хаус выполненный в архитектурном стилеусский неоклассицизм . Вентилируемый фасад выложен из натурального камня. Вестибюли подъездов отделаны...
    • 1/9 эт.
    580 000 000 Р
    Агент
    +7 (986) Показать номер
    Посмотреть контакты
    Помещение свободного назначения в Москва Верейская ул., 29С32А (1882 ... - Фото 1
    Помещение свободного назначения в Москва Верейская ул., 29С32А (1882 ... - Фото 2
    Продаётся двухэтажное коммерческое помещение свободного назначения с отдельным входом на 1 этаже жилого комплекса СЕТ от застройщика. Ввод в эксплуатацию - 3 кв. 2028 года.Отлично подойдет под медицинский центр или офис.Площадь - 1 882,4 м. Электрическая...
    • 1/24 эт.
    583 544 000 Р
    Агент
    +7 (916) Показать номер
    Посмотреть контакты
    Помещение свободного назначения в Москва Садовая-Черногрязская ул., ... - Фото 1
    Помещение свободного назначения в Москва Садовая-Черногрязская ул., ... - Фото 2
    636766. Отдельно стоящее 3-х этажное здание с подземным этажом в ЦАО. Объект расположен на оживленной улице Покровка, до метро Красные ворота 7 минут пешком. В здании есть лифт, парковка на прилегающей территории. 4 отдельных входа. Смешанная планировка....
    • 3/3 эт.
    580 000 000 Р
    Агент
    +7 (938) Показать номер
    Посмотреть контакты

    Не нашли подходящего объявления?

    Оставьте заявку, и наши риэлторы подберут псн в районе Москвы

    (0)