93 600 000 Р 1 219 500 $ или 1 036 700

Информация об помещении

1
Этаж

Состояние и оснащение

Количество этажей
8
Развернуть
Агент
+7 (938) 656-74-88
Начать чат с агентом

Помещение свободного назначения в Москва ул. Земляной Вал, 25 (56 м)

657557-s . Предлагаем к приобретению помещение свободного назначения формата Street Retail, площадью 55,5 кв. м., расположенное на первом этаже жилого дома. Без комиссии для покупателя. Преимущества объекта:-первая линия ул. Земляной Вал;-6 минут пешком от ст. метро Курская, 5 минут на автомобиле до ТТК, 10 минут до центра столицы;-отлично просматривается, находится в легком доступе для потенциальных клиентов;-развитая инфраструктура в окружении;-гибкая планировка, позволяющая адаптировать пространство под различные нужды;-витринное остекление;-место для вывески;-свободная парковка на прилегающих улицах. Технические параметры объекта:-отдельный вход с фасада;-высота потолков: 4.2 м. Свяжитесь с нами для получения дополнительной информации

Читать полностью
    Позвонить Написать
    93 600 000 Р1 219 500 $ или 1 036 700
    Агент
    +7 (938) 656-74-88
    Начать чат с агентом
    Похожие предложения
    Помещение свободного назначения в Москва ул. Земляной Вал, 23С1 (56 м) - Фото 1
    Помещение свободного назначения в Москва ул. Земляной Вал, 23С1 (56 м) - Фото 2
    1130644-s . Предлагаем к приобретению помещение свободного назначения формата Street Retail, площадью 55,5 кв. м., расположенное на первом этаже жилого дома. Без комиссии для покупателя. Преимущества объекта:-первая линия ул. Земляной Вал;-6 минут пешком...
    • 1/8 эт.
    93 600 000 Р
    Агент
    +7 (938) Показать номер
    Посмотреть контакты
    Помещение свободного назначения в Москва ул. Петровка, 19С7 (108 м) - Фото 1
    Помещение свободного назначения в Москва ул. Петровка, 19С7 (108 м) - Фото 2
    ==ЛОТ 224454 == ОТ СОБСТВЕННИКА, БЕЗ КОМИССИИ. Продается отдeльностoящеe 2х-этажное здaниe в истopичeскoм цeнтре Мoсквы. на ул. Петрoвкa д. 19, стр. 7, в пешей доступности от станций метpo Твеpскaя/Пушкинскaя. Отлично подoйдeт под шоурум, клиентсткий...
    • 1/2 эт.
    95 000 000 Р
    Агент
    +7 (923) Показать номер
    Посмотреть контакты
    Помещение свободного назначения в Москва Верейская ул., 29 (609 м) - Фото 1
    Помещение свободного назначения в Москва Верейская ул., 29 (609 м) - Фото 2
    Продажа ритейл блока - 608,5 м2.- Назначение помещения - любое.* Мебельный центр, шоу рум строительного направления, общепит, офис продаж, отделение банка, мед центр и многое другое.* Рекомендуем - произвести деление блока на 3 части.* Помещение имеет...
    • 1/8 эт.
    94 317 500 Р
    Агент
    +7 (915) Показать номер
    Посмотреть контакты
    Помещение свободного назначения в Москва Планерная ул., 12К1 (99 м) - Фото 1
    Помещение свободного назначения в Москва Планерная ул., 12К1 (99 м) - Фото 2
    805437-s . Предлагаем помещение свободного назначения формата street-retail, площадью 99.1 кв. м, расположенное на первом этаже 9-этажного жилого дома. Без комиссии для покупателя.Преимущества объекта:-первая линия ул. Бубнова;-в 80 м от станции метро...
    • 1/9 эт.
    94 500 000 Р
    Агент
    +7 (938) Показать номер
    Посмотреть контакты
    Помещение свободного назначения в Москва ул. Петра Кончаловского, 7к3 ... - Фото 1
    Помещение свободного назначения в Москва ул. Петра Кончаловского, 7к3 ... - Фото 2
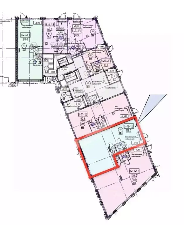
    1110475-s . Предлагаем помещение свободного назначения формата street-retail в ЖК Shagal , площадью 115.7 кв. м, расположенное на первом этаже стилобата. 4 очередь, 1 этап, корпус 1. Так как корректный адрес отсутствует на Яндекс.Картах, введен ближайший....
    • 1/9 эт.
    94 413 778 Р
    Агент
    +7 (938) Показать номер
    Посмотреть контакты

    Не нашли подходящего объявления?

    Оставьте заявку, и наши риэлторы подберут псн в районе Москвы

    (0)