145 000 000 Р 1 878 500 $ или 1 581 000

Информация об помещении

1
Этаж

Состояние и оснащение

Количество этажей
22
Развернуть
Агент
+7 (938) 656-74-88
Начать чат с агентом

Помещение свободного назначения в Москва ул. Дмитрия Ульянова, 47 (309 ...

1044287-gab . Предлагаем угловое помещение свободного назначения формата street-retail с арендатором Дикси , площадью 308.5 кв. м, расположенное на первом этаже 22-этажного жилого дома. Без комиссии для покупателя.Преимущества объекта:-престижный район;-20 минут пешком от станции метро Нагорная и Академическая ;-удобная транспортная доступность: 1.7 км до ул. Профсоюзная, 2 км до Нахимовского проспекта и Загородного шоссе, 2.5 км до Варшавского шоссе, 3 км до ТТК;-плотный жилой массив;-развитая инфраструктура района;-высокий автомобильный и пешеходный трафик;-отлично просматривается, находится в легком доступе для потенциальных клиентов;-гибкая планировка, позволяющая адаптировать пространство под различные нужды;-целевое назначение помещения: для торговли продовольственными и непродовольственными товарами с возможностью продажи алкогольной продукции, для производства и приготовления продуктов питания (в т. ч. хлебобулочных и кондитерских изделий), организации оказания услуг населению (в т. ч. размещения платежных терминалов/банкоматов/торговых автоматов, пунктов выдачи заказов), размещения рекламных материалов, организации общественного питания, осуществления фармацевтической и иной деятельности, складирования товаров и размещения офиса;-витринное остекление;-возможность размещения вывески;-наземная парковка;-рядом остановка общественного транспорта.Технические параметры объекта:-4 отдельные входные группы.-высота потолков: 3.3 м.Информация об арендаторе: -арендатор: Дикси, ДДА.-прибыль:уб/мес.-окупаемость: 11.13 лет.-доходность: 9.98 Свяжитесь с нами для получения дополнительной информации

Читать полностью
    Позвонить Написать
    145 000 000 Р1 878 500 $ или 1 581 000
    Агент
    +7 (938) 656-74-88
    Начать чат с агентом
    Похожие предложения
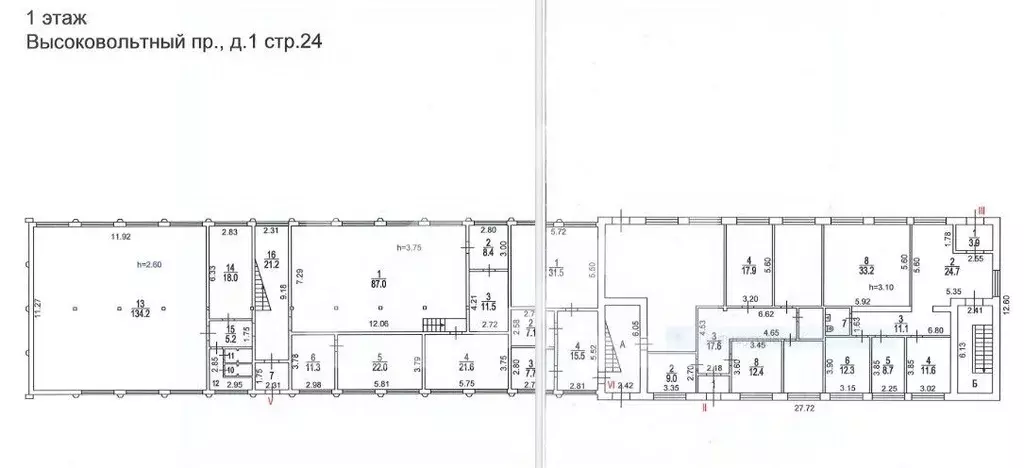
    Помещение свободного назначения в Москва Высоковольтный проезд, 1С24 ... - Фото 1
    Помещение свободного назначения в Москва Высоковольтный проезд, 1С24 ... - Фото 2
    802682-b . Предлагаем к приобретению отдельно стоящее двухэтажное здание под гостиницу, площадью 1 021 кв. м., расположенное в Отрадном. Без комиссии для покупателя.Преимущества объекта: -пешая доступность от станции метро Отрадное (20 минут пешком);-отлично...
    • 2/2 эт.
    140 000 000 Р
    Агент
    +7 (938) Показать номер
    Посмотреть контакты
    Помещение свободного назначения в Москва Дубининская ул., 63С8 (672 м) - Фото 1
    Помещение свободного назначения в Москва Дубининская ул., 63С8 (672 м) - Фото 2
    682105-b . Предлагаем отдельно стоящее административное здание, площадью 672 кв. м. Без комиссии для покупателя.Преимущества объекта:-первая линия ул. Дубининская;-шаговая доступность от станции метро Серпуховская (15 минут пешком);-удобная транспортная...
    • 1/1 эт.
    140 000 000 Р
    Агент
    +7 (938) Показать номер
    Посмотреть контакты
    Помещение свободного назначения в Москва ул. Островитянова, 19/22 (583 ... - Фото 1
    Помещение свободного назначения в Москва ул. Островитянова, 19/22 (583 ... - Фото 2
    816032-s . Предлагаем помещение свободного назначения во встроенно-пристроенной части жилого дома, площадью 583 кв. м, расположенное на первом этаже + антресоли 9-этажного жилого дома. Без комиссии для покупателя.Преимущества объекта:-первая линия ул....
    • 1/9 эт.
    143 000 000 Р
    Агент
    +7 (938) Показать номер
    Посмотреть контакты
    Помещение свободного назначения в Москва пер. Сивцев Вражек, 6/2 (192 ... - Фото 1
    Помещение свободного назначения в Москва пер. Сивцев Вражек, 6/2 (192 ... - Фото 2
    947938-s . Предлагаем помещение свободного назначения формата street-retail, площадью 192 кв. м, расположенное в подвале и на первом этаже 5-этажного жилого дома. Без комиссии для покупателя.Преимущества объекта:-первая линия пер. Сивцев Вражек;-шаговая...
    • 1/5 эт.
    160 000 000 Р
    Агент
    +7 (938) Показать номер
    Посмотреть контакты
    Помещение свободного назначения в Москва пер. Сивцев Вражек, 4 (148 м) - Фото 1
    Помещение свободного назначения в Москва пер. Сивцев Вражек, 4 (148 м) - Фото 2
    947961-s . Предлагаем к приобретению торговое помещение формата Street Retail, площадью 147,7 кв. м., расположенное на первом этаже жилого дома. Без комиссии для покупателя.Преимущества объекта: -4 минуты пешком от станции метро Кропоткинская;-отлично...
    • 1/5 эт.
    150 000 000 Р
    Агент
    +7 (938) Показать номер
    Посмотреть контакты

    Не нашли подходящего объявления?

    Оставьте заявку, и наши риэлторы подберут псн в районе Москвы

    (0)