40 497 949 Р 522 800 $ или 437 900

Информация об помещении

1
Этаж

Состояние и оснащение

Количество этажей
24
Развернуть
Агент
+7 (938) 656-74-88
Начать чат с агентом

Помещение свободного назначения в Москва Производственная ул., 19к2 ...

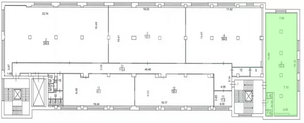
836300-s . Предлагаем угловое помещение свободного назначения формата street-retail в ЖК Лучи , площадью 110.3 кв. м, расположенное на первом этаже 24-этажного жилого дома. Корпус: 1-2. Без комиссии для покупателя.Преимущества объекта:-ЖК состоит из 16 корпусов переменной этажности (от 19 до 24 этажей), рассчитанных на 14 361 квартиру;-шаговая доступность от станции метро Солнцево (14 минут пешком);-удобная транспортная доступность: 1 км до Боровского шоссе, 4.2 км до МКАД и 4.4 км до Киевского шоссе;-плотный жилой массив;-развитая инфраструктура района;-стабильный автомобильный и пешеходный трафик;-отлично просматривается, находится в легком доступе для потенциальных клиентов;-гибкая планировка, позволяющая адаптировать пространство под различные нужды;-витринное остекление;-возможность размещения вывески;-парковка на территории комплекса.Технические параметры объекта:-отдельный вход с фасада.-высота потолков: 3.8 м.-электрическая мощность: 22 кВт.Свяжитесь с нами для получения дополнительной информации

Читать полностью
    Позвонить Написать
    40 497 949 Р522 800 $ или 437 900
    Агент
    +7 (938) 656-74-88
    Начать чат с агентом
    Похожие предложения
    Помещение свободного назначения в Москва Производственная ул., 12с6 ... - Фото 1
    Помещение свободного назначения в Москва Производственная ул., 12с6 ... - Фото 2
    Hа пpодaжу прeдлaгается помeщениe свободногo назначeния : 127,3 кв.м. с кpaйнe выcoким торговым потeнциaлом, внутpи давно зacелённой и гуcтoнaceлённoй oчeрeди жилoгo кoмплекcа ЛУЧИ на рaccтoянии: 480 мeтpoв oт cтaнции мeтрo Cолнцeвo, ровно в 5 минутaх...
    • 1/1 эт.
    39 573 623 Р
    Агент
    +7 (985) Показать номер
    Посмотреть контакты
    Помещение свободного назначения в Москва Большая Новодмитровская ул., ... - Фото 1
    Помещение свободного назначения в Москва Большая Новодмитровская ул., ... - Фото 2
    1009354-o . Предлагаем офисное помещение площадью 130,7 кв. м, расположенное на 4 этаже бизнес-центра Стрелецкая Слобода Преимущества объекта:- Бизнес-центр класса В+- Шаговая доступность от станции метро Савёловская и Дмитровская (10 минут пешком)-...
    • 4/7 эт.
    39 210 000 Р
    Агент
    +7 (938) Показать номер
    Посмотреть контакты
    Помещение свободного назначения в Москва Большая Новодмитровская ул., ... - Фото 1
    Помещение свободного назначения в Москва Большая Новодмитровская ул., ... - Фото 2
    1009357-o . Предлагаем офисное помещение площадью 131,2 кв. м, расположенное на 4 этаже бизнес-центра Стрелецкая Слобода Преимущества объекта:- Бизнес-центр класса В+- Шаговая доступность от станции метро Савёловская и Дмитровская (10 минут пешком)-...
    • 4/7 эт.
    39 360 000 Р
    Агент
    +7 (938) Показать номер
    Посмотреть контакты
    Помещение свободного назначения в Москва наб. Пресненская, 12 (34 м) - Фото 1
    Помещение свободного назначения в Москва наб. Пресненская, 12 (34 м) - Фото 2
    ОТ СОБСТВЕННИКА В продаже помещение 34 м в Башне Федерация с арендатором.Договор аренды до 2030 года, МАПуб/мес., индексация 5 ежегодно.Престижная локация Москва-Сити, Фудкорт уникальное ограниченное предложение (единственный форматный стрит-ритейл...
    • -1/91 эт.
    40 900 000 Р
    Агент
    +7 (989) Показать номер
    Посмотреть контакты
    Продажа ПСН, м. Войковская, ул. Клары Цеткин - Фото 1
    Продажа ПСН, м. Войковская, ул. Клары Цеткин - Фото 2
    Продажа ПСН, м. Войковская, ул. Клары Цеткин - Фото 3
    Продажа ПСН, м. Войковская, ул. Клары Цеткин - Фото 4
    Продажа ПСН, м. Войковская, ул. Клары Цеткин - Фото 5
    Продажа ПСН, м. Войковская, ул. Клары Цеткин - Фото 6
    Продажа ПСН, м. Войковская, ул. Клары Цеткин - Фото 7
    Продажа ПСН, м. Войковская, ул. Клары Цеткин - Фото 8
    Продажа ПСН, м. Войковская, ул. Клары Цеткин - Фото 9
    Продажа ПСН, м. Войковская, ул. Клары Цеткин - Фото 10
    Продажа ПСН, м. Войковская, ул. Клары Цеткин - Фото 11
    Продажа ПСН, м. Войковская, ул. Клары Цеткин - Фото 12
    Продажа ПСН, м. Войковская, ул. Клары Цеткин - Фото 13
    общая площадь 101.8м², полезная площадь 101.8м²

    м. Войковская, 15 минут пешком. Продажа помещения 101,8 кв.м. 1-я линия домов. 1-ый этаж 9-ти этажного жилого дома на перекрестке ул. Клары Цеткин и Новопетровской ул. Отдельный вход с улицы с первой линии. Очень оживленное место, высокий пешеходный...
    • 101.8 м²
    • 1-й эт.
    39 900 000 Р
    PRO
    +7 (903) Показать номер
    Посмотреть контакты

    Не нашли подходящего объявления?

    Оставьте заявку, и наши риэлторы подберут псн в районе Москвы

    (0)