42 000 000 Р 540 900 $ или 456 500

Информация об помещении

2
Этаж

Состояние и оснащение

Количество этажей
11
Развернуть
Агент
+7 (980) 454-78-44
Начать чат с агентом

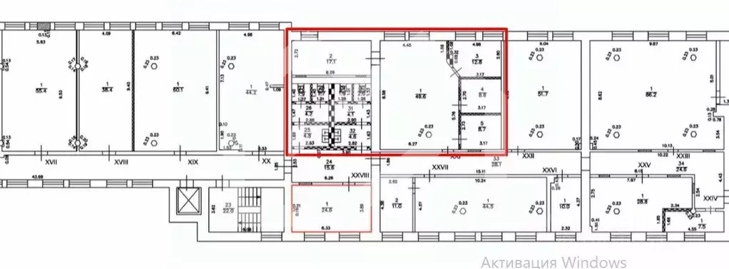
Помещение свободного назначения в Москва Ленинский просп., 131 (180 м)

Продаётся помещение свободного назначения около метро. В данный момент - готовый арендный бизнес ГАБ на краткосрочных договорах, несколько арендаторов. Все подробности и расчёты готова предоставить. Звоните.

Читать полностью
    Позвонить Написать
    42 000 000 Р540 900 $ или 456 500
    Агент
    +7 (980) 454-78-44
    Начать чат с агентом
    Похожие предложения
    Помещение свободного назначения в Москва ул. 2-я Машиностроения, 27С6 ... - Фото 1
    Помещение свободного назначения в Москва ул. 2-я Машиностроения, 27С6 ... - Фото 2
    Арт.ВАШЕМУ ВНИМАНИЮ ПРЕДЛАГАЮ --- ПСН расположенное в пешей доступности от МЦК Угрешская и ст. м Дубровка Остановка общественного транспорта — перед зданием.ХАРАКТЕРИСТИКИ:-Свежий ремонт;-Пассажирский лифт;-Свободная планировка;-Отдельный вход в блок;-Высота...
    • 6/6 эт.
    42 585 000 Р
    Агент
    +7 (910) Показать номер
    Посмотреть контакты
    Помещение свободного назначения в Москва ул. Неверовского, 10С3 (71 м) - Фото 1
    Помещение свободного назначения в Москва ул. Неверовского, 10С3 (71 м) - Фото 2
    1118280-o . Предлагаем офисное помещение площадью 70,7 кв. м, расположенное на 8 этаже нового строящегося бизнес-центра Цетлин Преимущества объекта:- Бизнес-центр класса А- Шаговая доступность от станции метро Парк Победы (4 минуты пешком)- Этаж: 8-...
    • 8/15 эт.
    41 006 000 Р
    Агент
    +7 (938) Показать номер
    Посмотреть контакты
    Помещение свободного назначения в Москва Холодильный пер., 3к1с4 (97 ... - Фото 1
    Помещение свободного назначения в Москва Холодильный пер., 3к1с4 (97 ... - Фото 2
    714303-o . Предлагаем офисное помещение площадью 96,8 кв. м, расположенное на 2 этаже в 4 строении Лофт квартала Товарищество Рябовской Мануфактуры Преимущества объекта:- Здание класса В+- Шаговая доступность от станции метро Тульская (2 минуты пешком)-...
    • 2/4 эт.
    42 592 000 Р
    Агент
    +7 (938) Показать номер
    Посмотреть контакты
    Помещение свободного назначения в Москва ул. Гастелло, 30 (54 м) - Фото 1
    Помещение свободного назначения в Москва ул. Гастелло, 30 (54 м) - Фото 2
    Уважаемый Покупатель, предлагаем Вам приобрести в ТЦ SOKOLNIKI Торгово-инфраструктурный блок 1 помещение свободного назначения 53.6 м на 1 этаже в собственность на выгодных условиях.Приточно-вытяжная вентиляция. Центральное кондиционирование. Пожарная...
    • 1/2 эт.
    41 057 600 Р
    Агент
    +7 (985) Показать номер
    Посмотреть контакты
    Помещение свободного назначения в Москва наб. Пресненская, 12 (68 м) - Фото 1
    Помещение свободного назначения в Москва наб. Пресненская, 12 (68 м) - Фото 2
    960951-gab . Предлагаем помещение свободного назначения с арендатором кухня ресторана AllDay в многофункциональном комплексе Башня Федерация , площадью 68.3 кв. м, расположенное на -2-ом этаже 97-этажного здания. Возможно поделить на 4 отдельных помещения....
    • -1/97 эт.
    42 000 000 Р
    Агент
    +7 (938) Показать номер
    Посмотреть контакты

    Не нашли подходящего объявления?

    Оставьте заявку, и наши риэлторы подберут псн в районе Москвы

    (0)