950 000 000 Р 12 334 100 $ или 10 411 300

Информация об помещении

1
Этаж

Состояние и оснащение

Количество этажей
3
Развернуть
Агент
+7 (985) 158-20-12
Начать чат с агентом

Помещение свободного назначения в Москва Милютинский пер., 18А (3300 ...

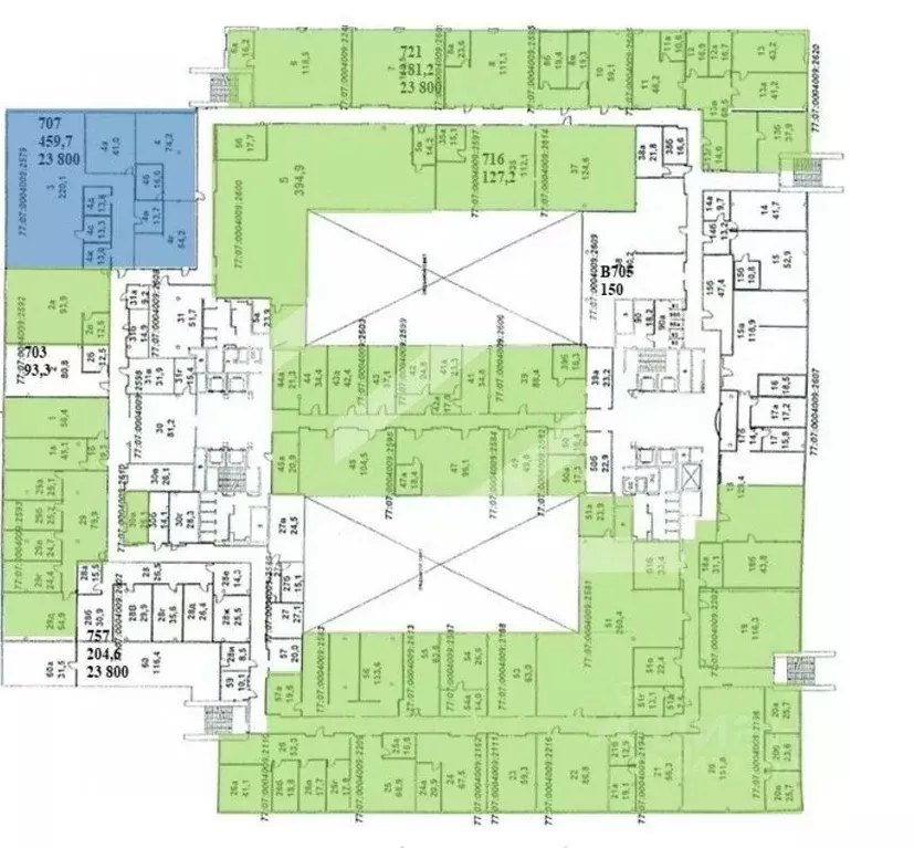
Агентства просьба не беспокоить Объект культурного наследия. Ансамбль Римско-католической церкви Святого Апостола Петра и Павла. Особняк построен в середине 19 века по проекту известного архитектора Алессандро Жилярди, бывший центр польской католической общины. В 1946 году здание храма было переоборудовано под административные цели, после чего в 1978 году в здании разместилась штаб-квартира института угольного машиностроения.Особняк расположен в Красносельском районе (ЦАО), внутри Бульварного кольца, на первой линии домов Милютинского переулка, в шаговой доступности от станций метро Чистые пруды, Лубянка и Цветной бульвар.Общая площадь : 3300 мНаземная площадь : 3074 мНаземная без чердака : 2547 мНаземная без чердака и лестниц : 2408 мТекущая поэтажная площадь:0 этаж : 226 м (высота потолков 292)1 этаж : 845 м (высота потолков 340)2 этаж : 856 м (высота потолков 357)3 этаж : 845 м (высота потолков 357)4 этаж : 527 м (высота потолков 290)Потенциальная общая : 4476 мПотенциальная наземная : 3607 мПотенциальная наземная без лестниц : 3400 мПотенциальная поэтажная площадь:0 этаж : 868 м (высота потолков 292)1 этаж : 879 м (высота потолков 340)2 этаж : 891 м (высота потолков 357)3 этаж : 890 м (высота потолков 357)4 этаж : 947 м (высота потолков 400)Земельный участок : 1322 мПлощадь застройки : 1301 мВид права : аренда до 2031 годаВРИ : эксплуатации здания под административные цели- Год постройки : 1917- Год реконструкции : 1978- Наружные стены : кирпичные- Перекрытия : деревянные по металлическим балкам- Пассажирские лифты : отсутствуют- Наземная парковка : стихийнаяПредложение не является эффективным арендным бизнесом в текущей заполняемости по заявленной стоимости. На сегодня чердак не арендопригодный, помещения сдаются в аренду преимущественно по-кабинетно. Текущий месячный арендный поток. Потенциальный месячный арендный поток (при 100 заполняемости. Текущая заполняемость - 87 , вакансия - 13 . Техническое обустройство: отопление от теплоэлектроцентрали, горячее водоснабжение от теплоэлектроцентрали, водопровод городской, канализация центральная, газоснабжение центральное, мощность электричества 129 кВт. Отлично подойдет для реализации проекта бутик-отеля. Агентства просьба не беспокоить >ID объекта - 52269

Читать полностью
    Позвонить Написать
    950 000 000 Р12 334 100 $ или 10 411 300
    Агент
    +7 (985) 158-20-12
    Начать чат с агентом
    Похожие предложения
    Помещение свободного назначения в Москва Большой Харитоньевский пер., ... - Фото 1
    Помещение свободного назначения в Москва Большой Харитоньевский пер., ... - Фото 2
    Объект культурного наследия. Памятник и доходный дом Вейхельта 1900 год.Предлагается на продажу помещение свободного назначения в нежилом, отдельно стоящем здании, расположенном в Басманном районе (ЦАО) на перекресте Большого Харитоньевско переулка,...
    • 1/4 эт.
    960 000 000 Р
    Агент
    +7 (985) Показать номер
    Посмотреть контакты
    Помещение свободного назначения в Москва Садовая-Спасская ул., 3С3 ... - Фото 1
    Помещение свободного назначения в Москва Садовая-Спасская ул., 3С3 ... - Фото 2
    645403-gab . Предлагаем отдельно стоящее трехэтажное здание с сетевым надежным арендатором М.Видео, площадью 3 175.1 кв. м., расположенное на ул. Садовая-Спасская в ЦАО. Без комиссии для покупателя.Преимущества объекта:-8 минут пешком от станции метро...
    • 1/4 эт.
    960 000 000 Р
    Агент
    +7 (938) Показать номер
    Посмотреть контакты
    Помещение свободного назначения в Москва ул. Добролюбова, 2БС1 (4848 ... - Фото 1
    Помещение свободного назначения в Москва ул. Добролюбова, 2БС1 (4848 ... - Фото 2
    1013425-gab . Предлагаем к продаже имущественный комплекс с арендаторами в районе Бутырский, СВАО.Преимущество комплекса:- центр крупной промышленной зоны;- удобные выезды на Дмитровское, Алтуфьевское шоссе и ТТК;- 10 минут пешком от ст. метро Бутырская...
    • 1/2 эт.
    950 000 000 Р
    Агент
    +7 (938) Показать номер
    Посмотреть контакты
    Помещение свободного назначения в Москва Неглинная ул., 14С1а (401 м) - Фото 1
    Помещение свободного назначения в Москва Неглинная ул., 14С1а (401 м) - Фото 2
    699586-gab . Предлагаем торговое помещение с арендатором - Банк ВТБ, площадью 401,3 кв. м., расположенное на первом этаже, антресоли и в подвале административного здания. Без комиссии для покупателя. Преимущества объекта:-первая линия;-4 минуты пешком...
    • 1/3 эт.
    950 000 000 Р
    Агент
    +7 (938) Показать номер
    Посмотреть контакты
    Помещение свободного назначения в Москва ул. Нижние Мневники, 3С1 ... - Фото 1
    Помещение свободного назначения в Москва ул. Нижние Мневники, 3С1 ... - Фото 2
    1105432-o . Предлагаем офисное помещение площадью 1 891 кв. м, расположенное на 7 этаже строящегося бизнес-центра Stone Мневники 3 Преимущества объекта:- Бизнес-центр класса А- Шаговая доступность от станции метро Терехово (12-14 минут пешком)- Этаж:...
    • 7/27 эт.
    949 282 000 Р
    Агент
    +7 (938) Показать номер
    Посмотреть контакты

    Не нашли подходящего объявления?

    Оставьте заявку, и наши риэлторы подберут псн в районе Москвы

    (0)