1 000 000 000 Р 12 983 300 $ или 10 959 300

Информация об помещении

1
Этаж

Состояние и оснащение

Количество этажей
6
Развернуть
Агент
+7 (985) 158-20-12
Начать чат с агентом

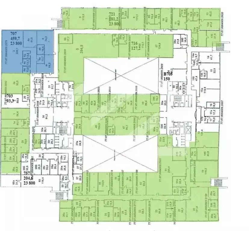
Помещение свободного назначения в Москва Ольховская ул., 22 (5113 м)

Предлагается на продажу помещение свободного назначения в нежилом, отдельно стоящем здании, расположенном в Басманном районе (ЦАО) на первой линии домов Ольховской улицы, в шаговой доступности от станций метро Красносельская и Бауманская.Общая площадь : 5113 мНаземная площадь : 5113 мНаземная без лестниц : 4940 м1 этаж - 998 м2 этаж - 790 м3 этаж - 841 м4 этаж - 818 м5 этаж - 835 м6 этаж - 830 мЗемельный участок : 6013 мВид права : аренда до 2073 годаТип договора : со множественностью лиц на стороне арендатораВРИ : эксплуатации зданий под производственные цели и благоустройства территории- Год постройки : 1968- Год реконструкции : 2002- Наружные стены : кирпичные- Перекрытия : железобетонные- Пассажирские лифты : 2 шт.- Наземная парковка : 20 м/мВ настоящее время здание сдано в аренду целиком моноарендатору. Используется под организацию мест постоянного проживания эконом-класса (общежитие). Долгосрочный договор аренды действует до февраля 2028 года. Планировка кабинетная. Высота потолков типового этажа - 3.70 метра. Мощность электричества 500 кВт. Схема сделки - продажа юридического лица.Агентства просьба не беспокоить >ID объекта - 52293

Читать полностью
    Позвонить Написать
    1 000 000 000 Р12 983 300 $ или 10 959 300
    Агент
    +7 (985) 158-20-12
    Начать чат с агентом
    Похожие предложения
    Помещение свободного назначения в Москва Милютинский пер., 18А (3300 ... - Фото 1
    Помещение свободного назначения в Москва Милютинский пер., 18А (3300 ... - Фото 2
    Агентства просьба не беспокоить Объект культурного наследия. Ансамбль Римско-католической церкви Святого Апостола Петра и Павла. Особняк построен в середине 19 века по проекту известного архитектора Алессандро Жилярди, бывший центр польской католической...
    • 1/3 эт.
    950 000 000 Р
    Агент
    +7 (985) Показать номер
    Посмотреть контакты
    Помещение свободного назначения в Москва Большой Харитоньевский пер., ... - Фото 1
    Помещение свободного назначения в Москва Большой Харитоньевский пер., ... - Фото 2
    Объект культурного наследия. Памятник и доходный дом Вейхельта 1900 год.Предлагается на продажу помещение свободного назначения в нежилом, отдельно стоящем здании, расположенном в Басманном районе (ЦАО) на перекресте Большого Харитоньевско переулка,...
    • 1/4 эт.
    960 000 000 Р
    Агент
    +7 (985) Показать номер
    Посмотреть контакты
    Помещение свободного назначения в Москва наб. Пресненская, 10с2 (1992 ... - Фото 1
    Помещение свободного назначения в Москва наб. Пресненская, 10с2 (1992 ... - Фото 2
    Продаём помещение свободного назначения в бизнес-центре IQ Квартал по адресу: Москва, Пресненская набережная, 10с2. Рабочих мест: от 249 до 442*.Площадь: 1 992 м2.Планировка: смешанная.Состояние: готово к въезду.Цена за м2:Стоимость:Налог: продажа компании.Собственник:...
    • 1/42 эт.
    1 000 000 000 Р
    Агент
    +7 (985) Показать номер
    Посмотреть контакты
    Помещение свободного назначения в Москва ул. Подольских Курсантов, 3С2 ... - Фото 1
    Помещение свободного назначения в Москва ул. Подольских Курсантов, 3С2 ... - Фото 2
    Продаём помещение свободного назначения по адресу: Москва, улица Подольских Курсантов, 3с2.Площадь: 5 729 м2.Планировка: кабинетная.Состояние: готово к въезду.Цена за м2:Стоимость:Налог: продажа компании.Собственник: физ. лицо.Этажей: 3.Охрана: круглосуточная...
    • 1/3 эт.
    1 000 000 000 Р
    Агент
    +7 (985) Показать номер
    Посмотреть контакты
    Помещение свободного назначения в Москва Летниковская ул., 5 (4900 м) - Фото 1
    Помещение свободного назначения в Москва Летниковская ул., 5 (4900 м) - Фото 2
    Агентства просьба не беспокоить Предлагается на продажу помещение свободного назначения в нежилом, отдельно стоящем здании, расположенном в Даниловской районе (ЮАО) на первой линии домов Летниковской улицы, в шаговой доступности от станции метро Павелецкая.Общая...
    • 1/5 эт.
    980 000 000 Р
    Агент
    +7 (985) Показать номер
    Посмотреть контакты

    Не нашли подходящего объявления?

    Оставьте заявку, и наши риэлторы подберут псн в районе Москвы

    (0)