690 000 000 Р 8 929 300 $ или 7 557 800

Информация об помещении

1
Этаж

Состояние и оснащение

Количество этажей
7
Развернуть
Агент
+7 (985) 158-20-12
Начать чат с агентом

Помещение свободного назначения в Москва ул. Ибрагимова, 31к1 (6600 м)

Агентства просьба не беспокоить Предлагается на продажу помещение свободного назначения в нежилом, отдельно стоящем здании (за исключением подвального помещения 80 м) расположенном в районе Соколиная Гора (ВАО) на первой линии домов улицы Ибрагимова, в шаговой доступности от станций метро Семеновская и Партизанская.Общая площадь здания : 6677 мПродаваемая площадь лота : 6597 мВ собственности завода : 80 мОбщая площадь : 6597 мНаземная площадь : 6536 мНаземная без лестниц : 6096 мПлощадь кабинетов : 4808 мПодвал : 61 из 141 м (высота потолков 300)1 этаж : 831 м (высота потолков 340)2 этаж : 918 м (высота потолков 335)3 этаж : 955 м (высота потолков 392)4 этаж : 963 м (высота потолков 386)5 этаж : 962 м (высота потолков 386)6 этаж : 969 м (высота потолков 386)7 этаж : 938 м (высота потолков 250)Земельный участок : 1207 мПлощадь застройки : 1160 мВид права : аренда до 2058 годаВРИ : эксплуатации здания под административные целиХарактеристики здания:- Год постройки : 1957- Год реконструкции : 2008- Наружные стены : кирпичные- Перекрытия (1-6 эт) : железобетонные- Перекрытия (6-7 эт) : деревянные- Пассажирские лифты : 2 шт.- Наземная парковка : стихийнаяТехническое обустройство:- Канализация : централизованная- Водопровод : центральный- Отопление : транзитом от завода- Горячее водоснабжение : нагревается бойлерами- Мощность электричества : 480 кВтОсобенности здания:- 1 этаж здания углублен в землю- Окна 1 этажа в верхней половине стены- Тыльная сторона 1 этажа примыкает к заводу- Перепады на 1 и 2 этаже по центру здания- Перепады на 7 этаже по правому и левому краю- Левый торец здания до 5 этажа примыкает к соседнему зданиюПредложение не является эффективным арендным бизнесом в текущей заполняемости и не является высокодоходным арендным бизнесом по заявленной стоимости. Большое количество арендаторов. Частично заполнено покабинетно, частично поэтажно, 4 этажа в здании занимает образовательное учреждение, долгосрочный договор аренды с которым действует до 30 августа 2030 года. Совокупная выручка менее . /год. Схема сделки - продажа юридического лица. Агентства просьба не беспокоить >ID объекта - 43571

Читать полностью
    Позвонить Написать
    690 000 000 Р8 929 300 $ или 7 557 800
    Агент
    +7 (985) 158-20-12
    Начать чат с агентом
    Похожие предложения
    Помещение свободного назначения в Москва ул. Покровка, 3/7С1а (1819 м) - Фото 1
    Помещение свободного назначения в Москва ул. Покровка, 3/7С1а (1819 м) - Фото 2
    1015667 . Предлагаем к приобретению помещение свободного назначения, площадью 1 819 кв. м., расположенное в отдельно стоящем здании. Часть первого, второй, третий этажи и подвал. Без комиссии для покупателя.Преимущества объекта: -7 минут пешком от станции...
    • 1/3 эт.
    700 000 000 Р
    Агент
    +7 (938) Показать номер
    Посмотреть контакты
    Помещение свободного назначения в Москва Лобненская ул., 14 (2759 м) - Фото 1
    Помещение свободного назначения в Москва Лобненская ул., 14 (2759 м) - Фото 2
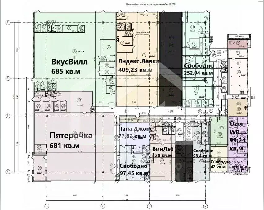
    967830-gab . Предлагаем отдельно стоящее здание с сетевыми арендаторами ВкусВилл Доставка, Яндекс.Лавка, Пятерочка, WB/Ozon, ВинЛаб, Папа Джонс и др., площадью 2 759 кв. м. Без комиссии для покупателя.Преимущества объекта:-15 минут пешком от станции метро...
    • 1/1 эт.
    681 669 504 Р
    Агент
    +7 (938) Показать номер
    Посмотреть контакты
    Помещение свободного назначения в Москва Мантулинская ул., 9к3 (576 м) - Фото 1
    Помещение свободного назначения в Москва Мантулинская ул., 9к3 (576 м) - Фото 2
    1010418-o . Предлагаем офисное помещение площадью 576,4 кв. м, расположенное на 2 этаже в жилом комплексе City Park Преимущества объекта:- Шаговая доступность от станции метро Деловой центр и Москва-Сити (8-10 минут пешком)- Этаж: 2- Помещение предлагается...
    • 2/6 эт.
    691 680 000 Р
    Агент
    +7 (938) Показать номер
    Посмотреть контакты
    Помещение свободного назначения в Москва пос. Ерино, 10 (11000 м) - Фото 1
    Помещение свободного назначения в Москва пос. Ерино, 10 (11000 м) - Фото 2
    928383. Производственно-складской комплекс в районе Щербинки, г. Москва. Развитая инфраструктура, удобная транспортная доступность для грузового автотранспорта. Рядом проходит трасса М12, от станции МДЦ Подольск - 17 минут, от ЦКАД - 30 минут. Огороженная...
    • 1/2 эт.
    700 000 000 Р
    Агент
    +7 (938) Показать номер
    Посмотреть контакты
    Помещение свободного назначения в Москва ул. Покровка, 3/7С1а (1818 м) - Фото 1
    Помещение свободного назначения в Москва ул. Покровка, 3/7С1а (1818 м) - Фото 2
    Деловой комплекс, расположенный между Красной площадью и Покровским бульваром. В пешей доступности станции метро Лубянка и Китай-город. Налоговая: 01. Лифты: Нет. Вентиляция: Приточно-вытяжная. Кондиционирование: Сплит-системы. Безопасность: Круглосуточный...
    • 1/3 эт.
    700 000 000 Р
    Агент
    +7 (933) Показать номер
    Посмотреть контакты

    Не нашли подходящего объявления?

    Оставьте заявку, и наши риэлторы подберут псн в районе Москвы

    (0)