210 000 000 Р 2 710 900 $ или 2 270 900

Информация об помещении

1
Этаж

Состояние и оснащение

Количество этажей
2
Развернуть
Агент
+7 (938) 656-74-88
Начать чат с агентом

Помещение свободного назначения в Москва Измайловский просп., 121 ...

888277-gab . Предлагаем отдельно стоящее здание с арендатором Художественно-гуманитарный колледж, площадью 1000 кв. м. Без комиссии для покупателя.Преимущества объекта:-первая линия Измайловского проспекта;-19 минут пешком от станции метро Первомайская ;-удобная транспортная доступность: 3 км до Щёлковского шоссе, 3.4 км до шоссе Энтузиастов, 4.5 км до МКАД, 6 км до СВХ;-плотный жилой массив;-развитая инфраструктура района;-высокий автомобильный и пешеходный трафик;-отлично просматривается, находится в легком доступе для потенциальных клиентов;-гибкая планировка, позволяющая адаптировать пространство под различные нужды;-офисная отделка;-на каждом этаже с/у и кухня;-возможность размещения вывески;-собственный просторный двор для прогулок-парковка во дворе;-рядом остановка общественного транспорта;-ЗУ под образовательную деятельность.Технические параметры объекта:-отдельный вход с улицы.-этажность: 1 и 2 этаж;-электрическая мощность: кВт.-высота потолков: м.Информация об арендаторе:-арендатор: Художественно-гуманитарный колледж-прибыль: по запросу.-окупаемость: по запросу.-доходность: по запросу.Свяжитесь с нами для получения дополнительной информации

Читать полностью
    Позвонить Написать
    210 000 000 Р2 710 900 $ или 2 270 900
    Агент
    +7 (938) 656-74-88
    Начать чат с агентом
    Похожие предложения
    Продается здание 704.7 м2 - Фото 1
    Продается здание 704.7 м2 - Фото 2
    Продается здание 704.7 м2 - Фото 3
    Продается здание 704.7 м2 - Фото 4
    Продается здание 704.7 м2 - Фото 5
    Продается здание 704.7 м2 - Фото 6
    Продается здание 704.7 м2 - Фото 7
    Продается здание 704.7 м2 - Фото 8
    Продается здание 704.7 м2 - Фото 9
    Продается здание 704.7 м2 - Фото 10
    Продается здание 704.7 м2 - Фото 11
    Продается здание 704.7 м2 - Фото 12
    Продается здание 704.7 м2 - Фото 13
    Продается здание 704.7 м2 - Фото 14
    Продается здание 704.7 м2 - Фото 15
    Продается здание 704.7 м2 - Фото 16
    Продается здание 704.7 м2 - Фото 17
    Продается здание 704.7 м2 - Фото 18
    Продается здание 704.7 м2 - Фото 19
    Продается здание 704.7 м2 - Фото 20
    полезная площадь 704.7м²

    Аукцион по продаже здания и аренде земельного участка, находящегося по адресу: (Москва, р-н Хамовники, пер. Малый Власьевский, вл. 4, стр. 1-2, Дом Россинского ) Общая площадь: 0.10 га / 704.7 м Начальная :,00 Дата окончания приема заявок: 16.03.2026...
    • 704.7 м²
    • 1 этаж
    204 214 750 Р
    Агент
    +7 (495) Показать номер
    Посмотреть контакты
    Помещение свободного назначения в Москва Кожевническая ул., 22 (306 м) - Фото 1
    Помещение свободного назначения в Москва Кожевническая ул., 22 (306 м) - Фото 2
    962227-b . Предлагаем отдельно стоящее двухэтажное административное здание, площадью 305 кв. м. Здание является объектом культурного наследия федерального значения - Палаты XVII века. Без комиссии для покупателя.Преимущества объекта:-первая линия ул....
    • 2/2 эт.
    217 000 000 Р
    Агент
    +7 (938) Показать номер
    Посмотреть контакты
    Помещение свободного назначения в Москва Бибиревская ул., 17Б (2820 м) - Фото 1
    Помещение свободного назначения в Москва Бибиревская ул., 17Б (2820 м) - Фото 2
    644238-b . Предлагаем к приобретению отдельно стоящее здание, площадью 2 820,2 кв. м. 1, 2 этаж, техподполье и подвал. Без комиссии для покупателя.Преимущества объекта: -пешая доступность от станции метро Бибирево (5 минут пешком);-отлично просматривается,...
    • 2/2 эт.
    220 000 000 Р
    Агент
    +7 (938) Показать номер
    Посмотреть контакты
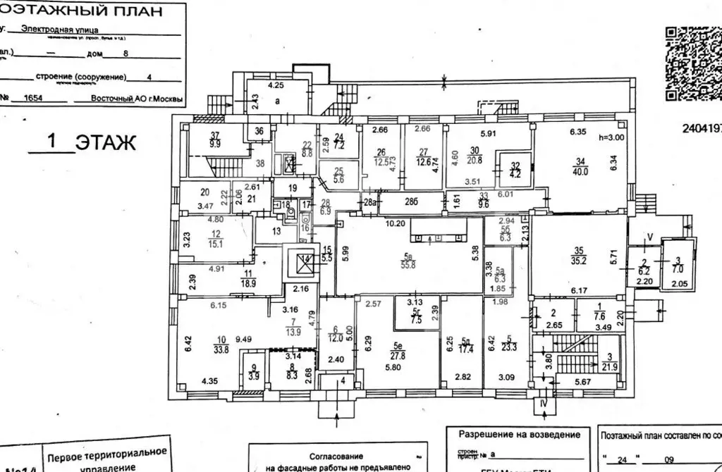
    Помещение свободного назначения в Москва Электродная ул., 8С4 (2196 м) - Фото 1
    Помещение свободного назначения в Москва Электродная ул., 8С4 (2196 м) - Фото 2
    717210-b . Предлагаем отдельно стоящее административное здание, площадью 2 196,1 кв. м., расположенное в Перово. 1, 2, 3, 4 этаж + подвал. Без комиссии для покупателя.Преимущества объекта:-первая линия ул. Электродная;-5 минут пешком от станции метро...
    • 4/4 эт.
    220 000 000 Р
    Агент
    +7 (938) Показать номер
    Посмотреть контакты
    Помещение свободного назначения в Москва ул. Проходчиков, 16С1 (1840 ... - Фото 1
    Помещение свободного назначения в Москва ул. Проходчиков, 16С1 (1840 ... - Фото 2
    666036-b . Здание 2004 г. постройки общей площадью 1 839,7 кв. м. 5 этажей с атриумом и цокольным этажом. На 1,2 и 3 этажах расположен отель Везенфорд на 18 номеров, 4 этаж офисный, 5 этаж - технический. На первом этаже расположен ресторан, в цоколе...
    • 5/5 эт.
    200 000 000 Р
    Агент
    +7 (938) Показать номер
    Посмотреть контакты

    Не нашли подходящего объявления?

    Оставьте заявку, и наши риэлторы подберут псн в районе Москвы

    (0)