220 000 000 Р 2 833 200 $ или 2 391 000

Информация об помещении

1
Этаж

Состояние и оснащение

Количество этажей
2
Развернуть
Агент
+7 (938) 656-74-88
Начать чат с агентом

Помещение свободного назначения в Москва Вильнюсская ул., 5 (1794 м)

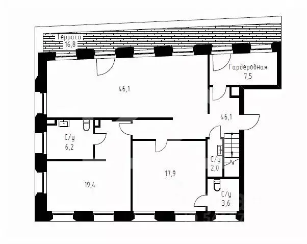
634949-gab . Предлагаем помещение свободного назначения формата Street Retail с арендаторами Чижик, Яндекс Лавка, парикмахерская, магазин непродовольственных товаров, площадью 1 794.3 кв. м., расположенное на 1 и 2 этажах торгового центра. Без комиссии для покупателя.Преимущества объекта:-первая линия;-10 минут пешком от станции метро Ясенево;-плотный жилой массив;-сложившееся торговое окружение;-активный пешеходный и автомобильный трафик;-объект отлично просматривается, находится в легком доступе для клиентов;-надежные арендаторы;-открытая планировка: торговые залы, подсобные помещения, кабинеты для персонала;-витринное остекление;-место для вывески;-два грузовых подъемника;-зона разгрузки/погрузки;-парковка перед фасадом;-земельный участок в долгосрочной аренде у города;-наземная парковка;-рядом остановки общественного транспорта.Технические параметры объекта:-4 отдельные входные группы;-площадь по этажам:1 этаж - 76 кв. м.;2 этаж - 1 718,3 кв. м.;-электрическая мощность: 412 кВт;-высота потолков: от 2,8 до 6 м.Информация об арендаторах: -арендаторы: Чижик, Яндекс Лавка, парикмахерская, магазин непродовольственных товаров;-прибыль:/мес.;-окупаемость: 7,2 лет;-доходность: 13,82 .Свяжитесь с нами для получения дополнительной информации

Читать полностью
    Позвонить Написать
    220 000 000 Р2 833 200 $ или 2 391 000
    Агент
    +7 (938) 656-74-88
    Начать чат с агентом
    Похожие предложения
    Помещение свободного назначения в Москва Большая Садовая ул., 5к1 (247 ... - Фото 1
    Помещение свободного назначения в Москва Большая Садовая ул., 5к1 (247 ... - Фото 2
    643282-gab . Предлагаем помещение свободного назначения формата Street Retail с сетевым арендатором Мята Lounge, площадью 247 кв. м., расположенное на первом этаже в ЖК Сады Пекина. Без комиссии для покупателя.Преимущества объекта:-комплекс состоит из...
    • 1/13 эт.
    210 000 000 Р
    Агент
    +7 (938) Показать номер
    Посмотреть контакты
    Помещение свободного назначения в Москва 9-я Парковая ул., 33 (577 м) - Фото 1
    Помещение свободного назначения в Москва 9-я Парковая ул., 33 (577 м) - Фото 2
    Помещение свободного назначения с отделкойПлощадь: 577.0мЭтаж: 1, отдельный входМожет использоваться под магазин О здании:Класс C . 2-х этажное административно-офисное здание. В соответствии с требованиями, предъявляемыми к инженерному обеспечению объектов...
    • 1/2 эт.
    220 000 000 Р
    Агент
    +7 (985) Показать номер
    Посмотреть контакты
    Помещение свободного назначения в Москва Пятницкая ул., 40С1 (121 м) - Фото 1
    Помещение свободного назначения в Москва Пятницкая ул., 40С1 (121 м) - Фото 2
    1083851-o . Предлагаем офисное помещение площадью 120,5 кв. м, расположенное на 2 этаже нового бизнес-центра Chalet Преимущества объекта:- Офисы класса de luxe- Шаговая доступность от станции метро Третьяковская и Новокузнецкая (5 минут пешком)- Этаж:...
    • 2/4 эт.
    216 900 000 Р
    Агент
    +7 (938) Показать номер
    Посмотреть контакты
    Помещение свободного назначения в Москва Кожевническая ул., 22 (306 м) - Фото 1
    Помещение свободного назначения в Москва Кожевническая ул., 22 (306 м) - Фото 2
    Лот: 37805. Отдельно стоящее здание в ЦАО Москвы. Первая линия Кожевнической улицы. 7 минут пешком до станции метро Павелецкая. В окружении 15 деловых центров и ЖК премиум класса. 2 этажа в стиле лофт. Объект культурного наследия Палаты купца Лихонина...
    • 1/5 эт.
    217 000 000 Р
    Агент
    +7 (986) Показать номер
    Посмотреть контакты
    Помещение свободного назначения в Москва Саввинская наб., 3 (754 м) - Фото 1
    Помещение свободного назначения в Москва Саввинская наб., 3 (754 м) - Фото 2
    Лот: 37633. Помещение свободного назначения формата Street retail в Хамовниках. Помещение 1, отремонтировано, высокая степень готовности- 1 этаж, площадь 101 кв метр, высота потолка 4 метра 2 входа, с фасада здания и со двора, большие витринные распахивающиеся...
    • 1/5 эт.
    220 000 000 Р
    Агент
    +7 (986) Показать номер
    Посмотреть контакты

    Не нашли подходящего объявления?

    Оставьте заявку, и наши риэлторы подберут псн в районе Москвы

    (0)