Россия, Москва, БК Прокшино тер., 3
82 708 432 Р 1 065 100 $ или 898 900

Информация об помещении

1
Этаж

Состояние и оснащение

Количество этажей
12
Развернуть
Агент
+7 (938) 656-74-88
Начать чат с агентом

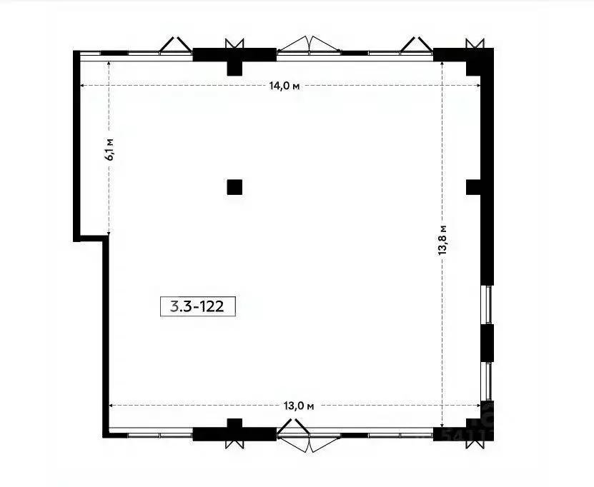
Помещение свободного назначения в Москва БК Прокшино тер., 3 (171 м)

1102369-s . Предлагаем помещение свободного назначения в бизнес-квартале Прокшино , площадью 171.2 кв. м, расположенное на первом этаже 12-этажного жилого дома. Корпус: 3.3. Без комиссии для покупателя.Преимущества объекта:-первая линия Филатовского шоссе;-офисный квартал состоит из 5 корпусов переменной этажности (от 12 до 13 этажей);-2 минуты пешком от станции метро Прокшино ;-удобная транспортная доступность: 1.3 км до Новомихайловского шоссе, 3 км до Калужского шоссе, 3.5 км до Филимонковского шоссе;-плотный жилой массив;-развитая инфраструктура района;-высокий автомобильный и пешеходный трафик;-отлично просматривается, находится в легком доступе для потенциальных клиентов;-гибкая планировка, позволяющая адаптировать пространство под различные нужды;-витринное остекление;-возможность размещения вывески;-наземная парковка;-рядом остановка общественного транспорта.Технические параметры объекта:-4 отдельные входные группы.-электрическая мощность: 70 кВт.-высота потолков: 4.2 м.Ввод в эксплуатацию: II квартал 2027.Свяжитесь с нами для получения дополнительной информации

Читать полностью
    Позвонить Написать
    82 708 432 Р1 065 100 $ или 898 900
    Агент
    +7 (938) 656-74-88
    Начать чат с агентом
    Похожие предложения
    Продажа ПСН, м. Аэропорт, Ленинградский пр-кт. - Фото 1
    Продажа ПСН, м. Аэропорт, Ленинградский пр-кт. - Фото 2
    Продажа ПСН, м. Аэропорт, Ленинградский пр-кт. - Фото 3
    Продажа ПСН, м. Аэропорт, Ленинградский пр-кт. - Фото 4
    общая площадь 64.1м², полезная площадь 64.1м²

    Продажа помещения площадью 64,1 кв.м, на выходе из метро Аэропорт. Помещение свободного назначения расположено на 1-й фасадной линии Ленинградского пр-та. В непосредственной близости подземный пешеходный переход и остановка общественного транспорта. Сдано...
    • 64.1 м²
    • 1-й эт.
    82 800 000 Р
    Агент
    +7 (903) Показать номер
    Посмотреть контакты
    Продажа ПСН, м. Воронцовская, ул. Академика Челомея - Фото 1
    Продажа ПСН, м. Воронцовская, ул. Академика Челомея - Фото 2
    Продажа ПСН, м. Воронцовская, ул. Академика Челомея - Фото 3
    Продажа ПСН, м. Воронцовская, ул. Академика Челомея - Фото 4
    Продажа ПСН, м. Воронцовская, ул. Академика Челомея - Фото 5
    Продажа ПСН, м. Воронцовская, ул. Академика Челомея - Фото 6
    Продажа ПСН, м. Воронцовская, ул. Академика Челомея - Фото 7
    Продажа ПСН, м. Воронцовская, ул. Академика Челомея - Фото 8
    Продажа ПСН, м. Воронцовская, ул. Академика Челомея - Фото 9
    Продажа ПСН, м. Воронцовская, ул. Академика Челомея - Фото 10
    Продажа ПСН, м. Воронцовская, ул. Академика Челомея - Фото 11
    общая площадь 143.9м², полезная площадь 143.9м²

    Продажа помещения свободного назначения в новом комплексе АФИ Парк Воронцовский, в Обручевском районе, ЮЗАО, в 5 минутах пешком от м.Воронцовская. Площадь помещения 143,9 м2, 1-й этаж 25-ти этажного жилого дома (1-я очередь, сдан в 1 кв.2024 года). 2...
    • 143.9 м²
    • 1-й эт.
    83 663 460 Р
    Агент
    +7 (903) Показать номер
    Посмотреть контакты
    Помещение свободного назначения в Москва Новая Басманная ул., 32 (141 ... - Фото 1
    Помещение свободного назначения в Москва Новая Басманная ул., 32 (141 ... - Фото 2
    Лот: 37894. Продажа отдельно стоящего здания в ЦАО Москвы. 8 минут пешком до станций метро Бауманская и Комсомольская. Рядом остановки общественного транспорта. Активный пешеходный автомобильный и пешеходный трафик вдоль объекта. Здание оснащено всеми...
    • 1/5 эт.
    82 000 000 Р
    Агент
    +7 (986) Показать номер
    Посмотреть контакты
    Помещение свободного назначения в Москва Ильменский проезд, 8 (188 м) - Фото 1
    Помещение свободного назначения в Москва Ильменский проезд, 8 (188 м) - Фото 2
    Продаётся помещение свободного назначения площадью 187.9 кв. м. в новостройке Левел Селигерская по адресу Москва, САО, Западное Дегунино, Ильменский проезд, корп. 5. Помещение со свободной планировкой. Окна с видом во двор и на улицу. Высота потолков...
    • 1/40 эт.
    82 280 460 Р
    Агент
    +7 (916) Показать номер
    Посмотреть контакты
    Помещение свободного назначения в Москва Береговой проезд, 1Б (97 м) - Фото 1
    Помещение свободного назначения в Москва Береговой проезд, 1Б (97 м) - Фото 2
    Лот k17218. Продажа торгового блока в составе премиального клубного БЦ класса А , расположенного в ЗАО, в престижном зелёномайоне Филевского парка, в окружении действующих жилых комплексов бизнес-класса и по соседству с Москва-Сити.Общая площадь 16-этажного...
    • 1/16 эт.
    82 000 000 Р
    Агент
    +7 (923) Показать номер
    Посмотреть контакты

    Не нашли подходящего объявления?

    Оставьте заявку, и наши риэлторы подберут псн в районе Москвы

    (0)