Россия, Москва, БК Прокшино тер., 3
125 317 790 Р 1 613 900 $ или 1 361 900

Информация об помещении

1
Этаж

Состояние и оснащение

Количество этажей
12
Развернуть
Агент
+7 (938) 656-74-88
Начать чат с агентом

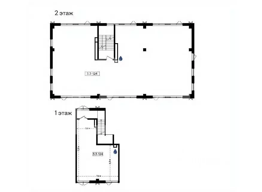
Помещение свободного назначения в Москва БК Прокшино тер., 3 (397 м)

1102379-s . Предлагаем помещение свободного назначения в бизнес-квартале Прокшино , площадью 396.5 кв. м, расположенное на первом этаже 12-этажного жилого дома. Корпус: 3.3. Без комиссии для покупателя.Преимущества объекта:-первая линия Филатовского шоссе;-офисный квартал состоит из 5 корпусов переменной этажности (от 12 до 13 этажей);-2 минуты пешком от станции метро Прокшино ;-удобная транспортная доступность: 1.3 км до Новомихайловского шоссе, 3 км до Калужского шоссе, 3.5 км до Филимонковского шоссе;-плотный жилой массив;-развитая инфраструктура района;-высокий автомобильный и пешеходный трафик;-отлично просматривается, находится в легком доступе для потенциальных клиентов;-гибкая планировка, позволяющая адаптировать пространство под различные нужды;-витринное остекление;-возможность размещения вывески;-наземная парковка;-рядом остановка общественного транспорта.Технические параметры объекта:-3 отдельные входные группы.-электрическая мощность: 100 кВт.-высота потолков: 4.2 м.Ввод в эксплуатацию: II квартал 2027.Свяжитесь с нами для получения дополнительной информации

Читать полностью
    Позвонить Написать
    125 317 790 Р1 613 900 $ или 1 361 900
    Агент
    +7 (938) 656-74-88
    Начать чат с агентом
    Похожие предложения
    Продажа ПСН, м. Воронцовская, Старокалужское ш. - Фото 1
    Продажа ПСН, м. Воронцовская, Старокалужское ш. - Фото 2
    Продажа ПСН, м. Воронцовская, Старокалужское ш. - Фото 3
    Продажа ПСН, м. Воронцовская, Старокалужское ш. - Фото 4
    Продажа ПСН, м. Воронцовская, Старокалужское ш. - Фото 5
    Продажа ПСН, м. Воронцовская, Старокалужское ш. - Фото 6
    Продажа ПСН, м. Воронцовская, Старокалужское ш. - Фото 7
    Продажа ПСН, м. Воронцовская, Старокалужское ш. - Фото 8
    Продажа ПСН, м. Воронцовская, Старокалужское ш. - Фото 9
    Продажа ПСН, м. Воронцовская, Старокалужское ш. - Фото 10
    Продажа ПСН, м. Воронцовская, Старокалужское ш. - Фото 11
    Продажа ПСН, м. Воронцовская, Старокалужское ш. - Фото 12
    Продажа ПСН, м. Воронцовская, Старокалужское ш. - Фото 13
    Продажа ПСН, м. Воронцовская, Старокалужское ш. - Фото 14
    общая площадь 527.8м², полезная площадь 527.8м²

    От собственника. Арендный бизнес. Помещение свободного назначения (ПСН) расположено на 1-м этаже здания в районе Коньково (ЮЗАО), в 30 метрах от метро Воронцовская, в непосредственной близости от выхода из метро. Площадь помещения 527,8 м2. Помещение...
    • 527.8 м²
    • 1-й эт.
    138 300 000 Р
    Агент
    +7 (903) Показать номер
    Посмотреть контакты
    Продажа ПСН, м. Пушкинская, ул. Тверская - Фото 1
    Продажа ПСН, м. Пушкинская, ул. Тверская - Фото 2
    Продажа ПСН, м. Пушкинская, ул. Тверская - Фото 3
    Продажа ПСН, м. Пушкинская, ул. Тверская - Фото 4
    Продажа ПСН, м. Пушкинская, ул. Тверская - Фото 5
    Продажа ПСН, м. Пушкинская, ул. Тверская - Фото 6
    общая площадь 58.4м², полезная площадь 58.4м²

    Продажа помещения стрит-ритейла на ул. Тверская, меньше минуты пешком от станции метро Пушкинская. Первая линия домов на главной улице города. Сверхинтенсивный пешеходный и автомобильный трафик, удобные транспортные пути, отличная видимость, высокий рекламный...
    • 58.4 м²
    • 1-й эт.
    132 500 000 Р
    Агент
    +7 (903) Показать номер
    Посмотреть контакты
    Продажа ПСН, м. Маяковская, ул. Тверская-Ямская 1-Я - Фото 1
    Продажа ПСН, м. Маяковская, ул. Тверская-Ямская 1-Я - Фото 2
    Продажа ПСН, м. Маяковская, ул. Тверская-Ямская 1-Я - Фото 3
    Продажа ПСН, м. Маяковская, ул. Тверская-Ямская 1-Я - Фото 4
    Продажа ПСН, м. Маяковская, ул. Тверская-Ямская 1-Я - Фото 5
    Продажа ПСН, м. Маяковская, ул. Тверская-Ямская 1-Я - Фото 6
    общая площадь 267.2м², полезная площадь 267.2м²

    Продажа торгового помещения в ЦАО, Тверской район. Прекрасная визуализация, меньше минуты до станции метро Маяковская. Сверхинтенсивный пешеходный и автомобильный трафик, развитая инфраструктура. Площадь помещения 267,2 кв.м., подвал 4-х этажного административного...
    • 267.2 м²
    • -1-й эт.
    133 600 000 Р
    Агент
    +7 (903) Показать номер
    Посмотреть контакты
    Продажа ПСН, м. Красносельская, Спартаковский пер. - Фото 1
    Продажа ПСН, м. Красносельская, Спартаковский пер. - Фото 2
    Продажа ПСН, м. Красносельская, Спартаковский пер. - Фото 3
    Продажа ПСН, м. Красносельская, Спартаковский пер. - Фото 4
    Продажа ПСН, м. Красносельская, Спартаковский пер. - Фото 5
    Продажа ПСН, м. Красносельская, Спартаковский пер. - Фото 6
    Продажа ПСН, м. Красносельская, Спартаковский пер. - Фото 7
    Продажа ПСН, м. Красносельская, Спартаковский пер. - Фото 8
    Продажа ПСН, м. Красносельская, Спартаковский пер. - Фото 9
    Продажа ПСН, м. Красносельская, Спартаковский пер. - Фото 10
    Продажа ПСН, м. Красносельская, Спартаковский пер. - Фото 11
    общая площадь 350м², полезная площадь 350м²

    Продажа офиса 350 м2 в БЦ класса B+ , ЦАО, район Красносельский 1-й этаж, планировка смешанная, свои санузлы высокие потолки - 7м, ремонт. Доступ 24/7, действует служба охраны и пропускной режим. Проведены все инженерно-технические коммуникации для обеспечения...
    • 350 м²
    • 1-й эт.
    140 000 000 Р
    Агент
    +7 (903) Показать номер
    Посмотреть контакты
    Помещение свободного назначения в Москва ул. Вавилова, 79К1 (490 м) - Фото 1
    Помещение свободного назначения в Москва ул. Вавилова, 79К1 (490 м) - Фото 2
    Код объекта: 2027025.Продажа помещения свободного назначения по адресу: Москва, р-н Ломоносовский, ул. Вавилова 79 к 1.- Общая площадь - 490 м2.- Площадь 1-го этажа: 237,9 м2. Высота потолков - 3 м- Площадь 2-го этажа: 252,1 м2. Высота потолков - 2,6...
    • 1/5 эт.
    128 000 000 Р
    Агент
    +7 (915) Показать номер
    Посмотреть контакты

    Не нашли подходящего объявления?

    Оставьте заявку, и наши риэлторы подберут псн в районе Москвы

    (0)