431 115 000 Р 5 539 000 $ или 4 761 800

Информация об помещении

2
Этаж

Состояние и оснащение

Количество этажей
13
Развернуть
Агент
+7 (938) 656-74-88
Начать чат с агентом

Помещение свободного назначения в Москва Холодильный пер., 3к1 (1052 ...

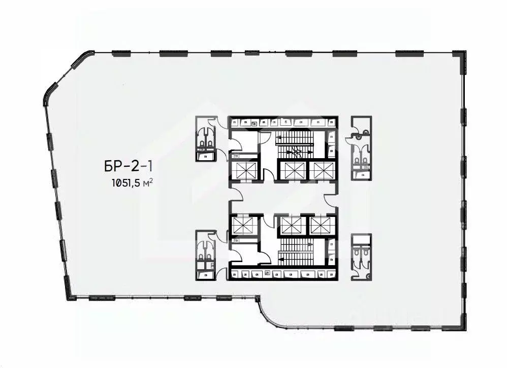
968829 . Предлагаем офисное помещение площадью 1 051 кв. м, расположенное на 2 этаже БЦ Башня Рябов Преимущества объекта:- Бизнес-центр класса А- Шаговая доступность от станции метро Тульская (1 минута пешком)- Этаж: 2- Помещение предлагается в состоянии под отделку- Планировка открытая- Панорамное остекление- Ввод в эксплуатацию ожидается в 4 кв. 2026 гОперативно организуем для Вас показ и ответим на все вопросы.Свяжитесь с нами для получения дополнительной информации

Читать полностью
    Позвонить Написать
    431 115 000 Р5 539 000 $ или 4 761 800
    Агент
    +7 (938) 656-74-88
    Начать чат с агентом
    Похожие предложения
    Помещение свободного назначения в Москва с. Ознобишино, 195 (3016 м) - Фото 1
    Помещение свободного назначения в Москва с. Ознобишино, 195 (3016 м) - Фото 2
    1006772 . Эксклюзивное предложение Складской блок в производственно-складском торговом комплексе формата Light industrial в Новой Москве. Первая линия Варшавского шоссе. 23 км от МКАД, 2 км до ЦКАД. 13 км до Калужского шоссе, 15 км до М-2. 10 км до МЦД-2...
    • 1/1 эт.
    422 240 000 Р
    Агент
    +7 (938) Показать номер
    Посмотреть контакты
    Помещение свободного назначения в Москва Холодильный пер., 3к1 (1052 ... - Фото 1
    Помещение свободного назначения в Москва Холодильный пер., 3к1 (1052 ... - Фото 2
    838646 . Предлагаем офисное помещение площадью 1051 кв. м, расположенное на 2 этаже БЦ Башня Рябов Преимущества объекта:- Бизнес-центр класса А- Шаговая доступность от станции метро Тульская (2 минуты пешком)- Этаж: 2- Помещение предлагается в состоянии...
    • 2/13 эт.
    431 115 000 Р
    Агент
    +7 (938) Показать номер
    Посмотреть контакты
    1091705 . Предлагаем офисное помещение, площадью 1 638,6 кв. м, расположенное на 2 этаже административного здания. Преимущества объекта:- Шаговая доступность от станции метро ВДНХ (20 минут пешком);- Этаж: 2- Помещение предлагается с отделкой- Планировка...
    • 2/10 эт.
    434 657 000 Р
    Агент
    +7 (938) Показать номер
    Посмотреть контакты
    Помещение свободного назначения в Москва ул. Красная Пресня, 23кБс1 ... - Фото 1
    Помещение свободного назначения в Москва ул. Красная Пресня, 23кБс1 ... - Фото 2
    БЕЗ КОМИССИИ Жилой дом. Продаётся помещение свободной планировки на первом этаже площадью 635 кв.м. Стандартная отделка.УСН, эксплуатационные расходы включены. Улица Красная Пресня, 23кБс1, 4 минуты пешком от метро Улица 1905 года. ЛОТ 244685
    • 1/12 эт.
    420 264 590 Р
    Агент
    +7 (915) Показать номер
    Посмотреть контакты
    Помещение свободного назначения (1796.8 м) - Фото 1
    Помещение свободного назначения (1796.8 м) - Фото 2
    В продаже коммерческое помещение свободного назначения в ЖК Бизнес-класса Парксайд , корпс 4.Дом сдан ПОМЕЩЕНИЕ расположено в новостройке с 1-го по 3-й этаж с отдельным входом.ХАРАКТИРИСТИКИ ПОМЕЩЕНИЯ:-Площадь 1 796,8 м2-Высота потолков 4,5м-Состояние...
    • 1/23 эт.
    420 862 016 Р
    Агент
    +7 (925) Показать номер
    Посмотреть контакты

    Не нашли подходящего объявления?

    Оставьте заявку, и наши риэлторы подберут псн в районе Москвы

    (0)