600 000 000 Р 7 708 800 $ или 6 627 200

Информация об помещении

1
Этаж

Состояние и оснащение

Количество этажей
2
Развернуть
Агент
+7 (938) 656-74-88
Начать чат с агентом

Помещение свободного назначения в Москва Остаповский проезд, 16С2 ...

805248 . Офиcно-склaдcкoй кoмплeкc в Текстильщиках, ЮВАО. Первая линия Остаповского проезда. 8 минут от ст. Текстильщики и Новохохловская . Выезд на ЮВХ, ТТК и Волгоградский проспект. Высокий автомобильный и пешеходный трафик. В состав комплекса входят: oфисное двухэтажное строение с КПП общей площaдь 1 100 метров. Складcкой xoлoдильный кoмплeкc (темпеpaтуpный режим до -22С), площaдь 3 300 метров. Стpoения хозяйcтвeнного назначения, включaя автомoбильную ремонтную зoну. Все коммуникации подключены. Свой ТП, городское водоснабжение , канализация. Собственная трансформаторная подстанция ( два луча по 600 кВт). ЗУ площадью 12 200 метров, ВРИ - под хранение продуктов глубокой заморозки. Пол бетон/антикрыло с нагрузкой 3т/кв.м. Tерритория асфальтированная, огорожена забором. ЗУ в долгосрочной аренде до 2049 года. Два въезда на территорию. Парковка на территории комплекса. Напротив остановка общественного транспорта.Технические характеристики:Общая площадь: 4 598 кв. м.Электрическая мощность: 1200 кВт.

Читать полностью
    Позвонить Написать
    600 000 000 Р7 708 800 $ или 6 627 200
    Агент
    +7 (938) 656-74-88
    Начать чат с агентом
    Похожие предложения
    Помещение свободного назначения в Москва Большая Татарская ул., 7к1 ... - Фото 1
    Помещение свободного назначения в Москва Большая Татарская ул., 7к1 ... - Фото 2
    Номер в базе:. Продается помещение свободного назначения в Жилом Комплексе Четыре Солнца . Располагается на 1-ом и 2-ом этажах жилого дома. Находится дом в 5-ти минутах от метро Новокузнецкая. Первый этаж-263 м2, второй этаж-735м2. На 1-ом этаже: 3...
    • 1/10 эт.
    590 000 000 Р
    Агент
    +7 (916) Показать номер
    Посмотреть контакты
    Помещение свободного назначения в Москва Марьинский бул., 8к2 (4230 м) - Фото 1
    Помещение свободного назначения в Москва Марьинский бул., 8к2 (4230 м) - Фото 2
    ЛотПредложение от Собственника Представляем на продажу фитнес клуб премиального уровня площадью 4230 кв.м. Объект оснащен современной системой контроля и управления доступом Pocketkey, обеспечивающей высокий уровень безопасности при сокращении эксплуатационных...
    • 1/3 эт.
    600 000 000 Р
    Агент
    +7 (986) Показать номер
    Посмотреть контакты
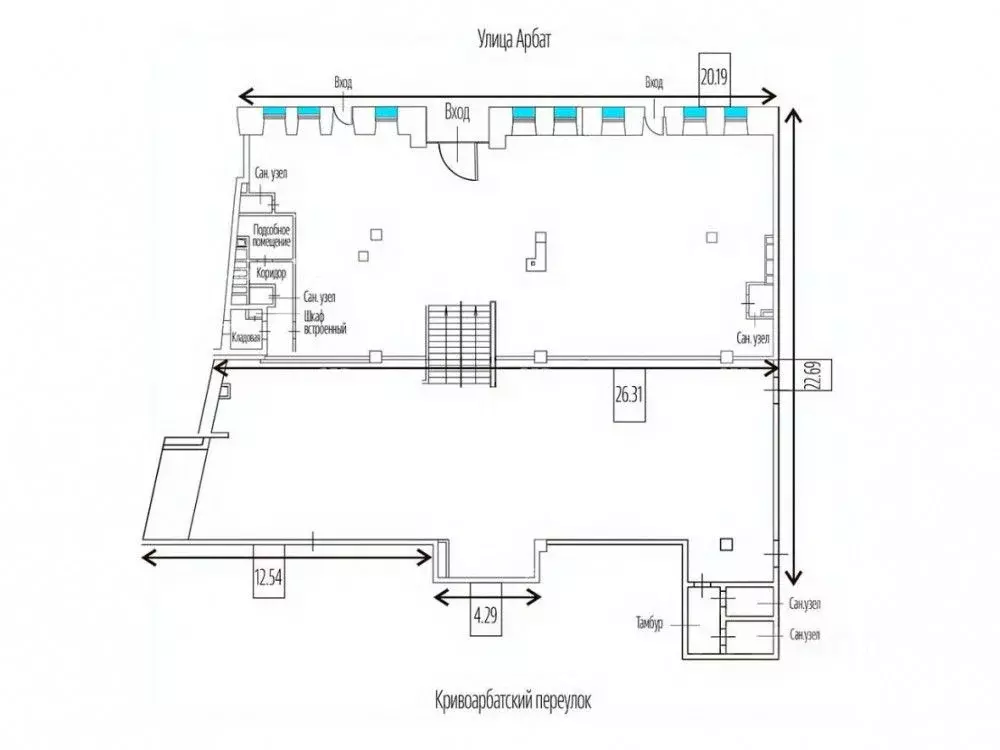
    Помещение свободного назначения в Москва ул. Арбат, 39 (560 м) - Фото 1
    Помещение свободного назначения в Москва ул. Арбат, 39 (560 м) - Фото 2
    Лот 154684.Предлагается на продажу помещение свободного назначения в историческом центре Москвы, в клубном доме Artisan класса de luxe, по адресу: Москва, ул. Арбат, д. 39 - самой известной пешеходной улице Москвы с очень плотным пешеходным трафиком ...
    • 1/3 эт.
    605 556 000 Р
    Агент
    +7 (985) Показать номер
    Посмотреть контакты
    1015692 . Предлагаем офисное помещение площадью 1 422 кв. м, расположенное в особняке на Малой Бронной улицеПреимущества объекта:- Особняк класса В- Шаговая доступность от станции метро Тверская и Арбатская (10 минут пешком)- Этаж: 2-4- Помещение предлагается...
    • 2/4 эт.
    597 240 000 Р
    Агент
    +7 (938) Показать номер
    Посмотреть контакты
    Помещение свободного назначения (4230 м) - Фото 1
    Помещение свободного назначения (4230 м) - Фото 2
    Лот №1009124 Предложение от Собственника Напишите нам в Ватсап, чтобы получить ПОДРОБНУЮ ПРЕЗЕНТАЦИЮ С ПЛАНИРОВКОЙ И ФОТОГРАФИЯМИ Представляем на продажу фитнес клуб премиального уровня площадью 4230 кв.м. Объект оснащен современной системой контроля...
    • 1/3 эт.
    600 000 000 Р
    Агент
    +7 (495) Показать номер
    Посмотреть контакты

    Не нашли подходящего объявления?

    Оставьте заявку, и наши риэлторы подберут псн в районе Москвы

    (0)