92 500 000 Р 1 168 700 $ или 1 007 200

Информация об помещении

1
Этаж

Состояние и оснащение

Количество этажей
7
Развернуть
Агент
+7 (915) 163-95-83
Начать чат с агентом

Помещение свободного назначения в Москва Энергетическая ул., 18 (298 ...

Код объекта: 1304568.Предлагается помещение Street Retail, в жилом кирпичном доме, с арендатором Окупаемость 10 лет, не учитывая последующую индексацию 7 минут пешком от метро.Помещение свободного назначения 298.3 кв.м.Арендатор: 1 Магазин Подружка .2 Аптека Столички Помещение находится на первом этаже, на первой фасадной линии.Отдельный вход.Витринные окна.Потолки 3 м.Преимущества: Интенсивный автомобильный и пешеходный трафик. В доме находится общежитие и пиццерия.Неподалёку расположены магазины Пятерочка и Дикси . Остановка общественного транспорта.Рядом с домом несколько общежитий и гостиниц. С Арендаторами заключены долгосрочные договора.МАП: Столички ежемесячная плата составит х 12 месяцев = в год Подружка ежемесячная плата составит х 12 месяцев = в годГАП: Общий доход в год Окупаемость 10 лет, не учитывая последующую индексацию Оперативный показ. Быстрый выход на сделку. Помещение без обременений. Один собственник. Физлицо.Полная стоимость в договоре.

Читать полностью
    Позвонить Написать
    92 500 000 Р1 168 700 $ или 1 007 200
    Агент
    +7 (915) 163-95-83
    Начать чат с агентом
    Похожие предложения
    Помещение свободного назначения в Москва просп. Мира, 54 (155 м) - Фото 1
    Помещение свободного назначения в Москва просп. Мира, 54 (155 м) - Фото 2
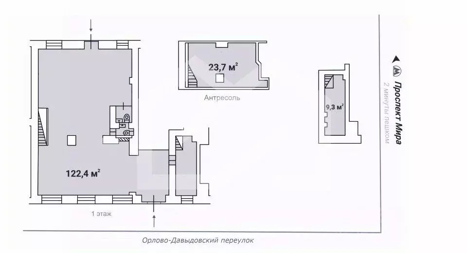
    1018536. Предлагаем помещение свободного назначения, площадью 155.4 кв. м, расположенное на первом этаже и антресоли 8-этажного жилого дома. Без комиссии для покупателя.Преимущества объекта:-первая линия проспекта Мира;-шаговая доступность от станции...
    • 1/8 эт.
    92 400 000 Р
    Агент
    +7 (938) Показать номер
    Посмотреть контакты
    Помещение свободного назначения в Москва ул. Земляной Вал, 23С1 (56 м) - Фото 1
    Помещение свободного назначения в Москва ул. Земляной Вал, 23С1 (56 м) - Фото 2
    1130644. Предлагаем к приобретению помещение свободного назначения, площадью 55,5 кв. м., расположенное на первом этаже жилого дома. Без комиссии для покупателя. Преимущества объекта:-первая линия ул. Земляной Вал;-6 минут пешком от ст. метро Курская,...
    • 1/8 эт.
    93 600 000 Р
    Агент
    +7 (938) Показать номер
    Посмотреть контакты
    Помещение свободного назначения в Москва Барклая ул., 6С5 (228 м) - Фото 1
    Помещение свободного назначения в Москва Барклая ул., 6С5 (228 м) - Фото 2
    667518. Предлагаем офисное помещение с гарантированным арендным потоком, площадью 228 кв. м., расположенное на 3 этаже бизнес-центре Барклай Плаза Преимущества объекта:- Бизнес-центр класса В+- Шаговая доступность от станции метро Багратионовская и...
    • 3/9 эт.
    92 000 000 Р
    Агент
    +7 (938) Показать номер
    Посмотреть контакты
    Помещение свободного назначения в Москва ул. Земляной Вал, 25 (61 м) - Фото 1
    Уважаемый Покупатель, предлагаем Вам приобрести помещение свободного назначения 61.2 м на 1 этаже в собственность на выгодных условиях.Интернет, телефония. Охрана. Отдельный вход. ЦАО Москвы. В 3 минутах от м. Курская, ЧкаловскаяБыстро реагируем на обращения,...
    • 1/9 эт.
    93 000 000 Р
    Агент
    +7 (985) Показать номер
    Посмотреть контакты
    Помещение свободного назначения в Москва Вешняковская ул., 39Б (244 м) - Фото 1
    Помещение свободного назначения в Москва Вешняковская ул., 39Б (244 м) - Фото 2
    646469. Предлагаем торговое помещение с арендаторами, площадью 244 кв. м., расположенное на первом этаже административного здания. Без комиссии для покупателя.Преимущества объекта:-пешая доступность от станции метро Выхино (10 минут пешком);-объект отлично...
    • 1/1 эт.
    92 698 111 Р
    Агент
    +7 (938) Показать номер
    Посмотреть контакты

    Не нашли подходящего объявления?

    Оставьте заявку, и наши риэлторы подберут псн в районе Москвы

    (0)