559 946 000 Р 7 193 900 $ или 6 161 300

Информация об помещении

1
Этаж

Состояние и оснащение

Количество этажей
19
Развернуть
Агент
+7 (986) 362-13-58
Начать чат с агентом

Помещение свободного назначения в Москва просп. Академика Сахарова, 9 ...

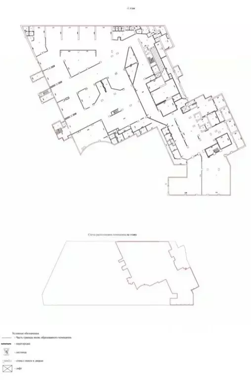
Продажа помещения 584,8 кв.м. под ресторан на 1 этаже в премиальном RED 7 на Садовом кольце. От собственника, без комиссии. 1-я линия проспекта Академика Сахарова и Садового кольца.ХАРАКТЕРИСТИКИ помещения:- вход из галереи первого этажа,- выделенная мощность 0,26 кВт/м2,- высота потолков 5 м,- мокрая точка,- современные системы вентиляции, кондиционирования, пожаротушения, дымоудаления, отвечающие всем нормам действующего законодательства.Стоимость включает НДС.Помещение запроектировано под ресторан.ПРЕИМУЩЕСТВА:- Премиальный комплекс RED7 в центре Москвы.- Удобный выезд на Садовое кольцо и транспортная доступность.- Интенсивные автомобильный и пеший трафик, платежеспособная аудитория.- В шаговой доступности 4 станции метро - Сухаревская (700 м), Комсомольская (730 м), Красные ворота (450 м), Сретенский бульвар (700м).В апарт-комплексе REDасполагаются ресторан Кофемания , кофейня международного класса Serf coffe , премиальный фитнес-клуб World Clacc . В первичную зону охвата в радиусе 1 км от МФК RED7 попадает 4 жилых квартала, в которых проживает порядка 41 тыс. человек. А также офисно-деловой кластер: бизнес-центры Домников , Орликов Плаза , административное здание на ул. Маши Порываевой и др.

Читать полностью
    Позвонить Написать
    559 946 000 Р7 193 900 $ или 6 161 300
    Агент
    +7 (986) 362-13-58
    Начать чат с агентом
    Похожие предложения
    Помещение свободного назначения (187 м) - Фото 1
    Помещение свободного назначения (187 м) - Фото 2
    Уважаемый Покупатель, предлагаем Вам приобрести в БЦ Пятницкая 40 ШАЛЕ помещение свободного назначения 187.1 м на 1 этаже в собственность на выгодных условиях.Приточно-вытяжная вентиляция. Центральное кондиционирование. Пожарная сигнализация. Интернет,...
    • 1/4 эт.
    561 299 968 Р
    Агент
    +7 (915) Показать номер
    Посмотреть контакты
    Помещение свободного назначения в Москва Лобненская ул., 14 (2128 м) - Фото 1
    Помещение свободного назначения в Москва Лобненская ул., 14 (2128 м) - Фото 2
    Готовый арендный бизнес (ГАБ). Доходность 11 , окупаемость до 9 лет.Здание находится в непосредственной близости от жилого массива. Хорошая проходимость. Возможность размещения информационных вывесок на фасаде торгового центра. Большая парковка у здания....
    • 1/1 эт.
    567 076 775 Р
    Агент
    +7 (933) Показать номер
    Посмотреть контакты
    Помещение свободного назначения (740 м) - Фото 1
    Помещение свободного назначения (740 м) - Фото 2
    id: 551195 Продается уникальное коммерческое предложение в одном из самых знаковых зданий Москвы — жилом доме на Котельнической набережной, являющемся одной из семи «Сталинских высоток . Это историческое здание расположено всего в 10–15 минутах пешком...
    • 1/26 эт.
    550 000 000 Р
    Агент
    +7 (986) Показать номер
    Посмотреть контакты
    Помещение свободного назначения в Москва Шелепихинская наб., 34к3зд7 ... - Фото 1
    Помещение свободного назначения в Москва Шелепихинская наб., 34к3зд7 ... - Фото 2
    1157326. Предлагаем помещение свободного назначения, площадью 4 860,5 кв. м, расположенное на -1 и -2 этажах 36-этажного жилого дома в престижном ЖК Сердце Столицы .Преимущества объекта:-первая линия Шелепихинского шоссе;-ЖК состоит из 10 корпусов переменной...
    • -1/36 эт.
    550 000 000 Р
    Агент
    +7 (938) Показать номер
    Посмотреть контакты
    Помещение свободного назначения в Москва Серебряническая наб., 19 ... - Фото 1
    Помещение свободного назначения в Москва Серебряническая наб., 19 ... - Фото 2
    Уважаемый Покупатель, предлагаем Вам приобрести в ЖК Арт Хаус помещение свободного назначения 1284.0 м на 1 этаже в собственность на выгодных условиях.Интернет, телефония. Охрана. Отдельный вход. ЦАО Москвы. В 10 минутах от м. ЧкаловскаяБыстро реагируем...
    • 1/6 эт.
    550 000 000 Р
    Агент
    +7 (985) Показать номер
    Посмотреть контакты

    Не нашли подходящего объявления?

    Оставьте заявку, и наши риэлторы подберут псн в районе Москвы

    (0)