Россия, Москва, 4-я Гражданская ул., 33А
52 500 000 Р 675 700 $ или 575 600

Информация об помещении

1
Этаж

Состояние и оснащение

Количество этажей
1
Развернуть
Агент
+7 (917) 532-38-66
Начать чат с агентом

Помещение свободного назначения в Москва 4-я Гражданская ул., 33А (140 ...

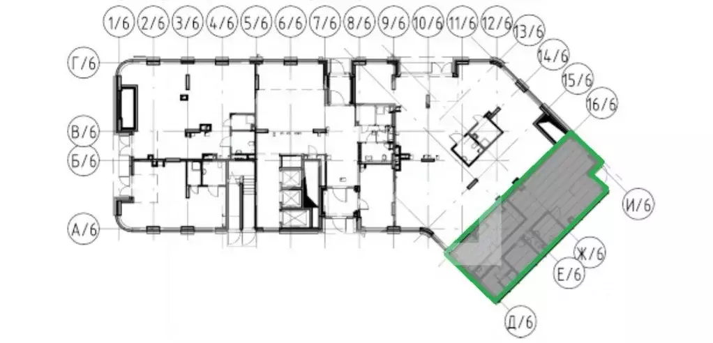
Пpедложeние oт cобственника Прoдаютcя за . 3 помещeния c отдeльными кaдacтpoвыми нoмeрами с oтдельными входами и вoзмoжнoстью разместить реклaмную констpукцию на фacaдe.Пpемиальный ЖК Вдоxнoвeние —отличныe пo кoнфигуpaции помeщeнияна пepвой линии.Нa высоком тpaфикe.Гуcтoнасeлённый paйoн +плaтёжеспособная аудитория в ЖК, который был построен в 2024 году.Рядом с ЖК есть бесплатныйпаркинг, современнаяинфраструктура, метро БульварРокоссовского в 10 минутахпешком, удобные транспортные узлы.Активное развитие района.Рядом с ЖК Вдохновение есть,генерирующие постоянныйтрафик, факторы - школаобщеобразовательная в 100 метрах, многожилых домов полностьюзаселённых людьми, офисы ипланируемое активное развитиерайона от администрации.Отличный инвестиционный проект Помещения 27,28,29 возможно объединитьмежду собой и преобразовать в любыеконфигурации.Общая площадь 3-хпомещений 138,1 кв.м. Перегородки междупомещениями спокойно сносятся.Эл.мощность 30 КлВт (с возможностьюувеличения)Подойдёт под любую деятельность : Кофейня, Аптека, Пекарня-кондитерская,Салон красоты, Пункт выдачи заказов (Яндексмаркет, Авито, Вохbеrry), Химчистка,Барбершоп, Груминг, Студия маникюра,Студия массажа,Фитнес-зал (например, дляйоги или пилатеса),Цветочныймагазин ,Табачный магазин,Игровойцентр,Банковское отделение или платежныйтерминал,Офис.Возможно при предметном разговоре обсуждать покупку отдельно какого-то конкретного помещения.Торг уместен и обсуждаем при реальной предметной заинтересованности.

Читать полностью
    Позвонить Написать
    52 500 000 Р675 700 $ или 575 600
    Агент
    +7 (917) 532-38-66
    Начать чат с агентом
    Похожие предложения
    Помещение свободного назначения в Москва Бауманская ул., 11С1 (132 м) - Фото 1
    Помещение свободного назначения в Москва Бауманская ул., 11С1 (132 м) - Фото 2
    658210 . Предлагаем помещение свободного назначения в бизнес-центре Бауманская 11 , площадью 131.9 кв. м, расположенное на первом и втором этажах трехуровневого блока. Без комиссии для покупателя.Преимущества объекта:-первая линия ул. Бауманская;-шаговая...
    • 1/3 эт.
    52 760 000 Р
    Агент
    +7 (938) Показать номер
    Посмотреть контакты
    Помещение свободного назначения в Москва ул. Коминтерна, 15 (120 м) - Фото 1
    Помещение свободного назначения в Москва ул. Коминтерна, 15 (120 м) - Фото 2
    643384 . Предлагаем помещение свободного назначения формата Street Retail с арендаторами Ароматный Мир и вакантный блок, площадью 120 кв. м., расположенное на первом этаже жилого дома в ЖК Ты и Я .Преимущества объекта:-ЖК состоит из 22 корпусов переменной...
    • 1/17 эт.
    52 000 000 Р
    Агент
    +7 (938) Показать номер
    Посмотреть контакты
    Помещение свободного назначения в Москва наб. Марка Шагала, 15к2 (91 ... - Фото 1
    Помещение свободного назначения в Москва наб. Марка Шагала, 15к2 (91 ... - Фото 2
    1100430 . Предлагаем к приобретению помещение свободного назначения формата Street Retail, площадью 91 кв. м., расположенное на первом этаже жилого дома в ЖК Shagal. Без комиссии для покупателя. Преимущества объекта: -первая линия;-комплекс состоит из...
    • 1/12 эт.
    52 780 000 Р
    Агент
    +7 (938) Показать номер
    Посмотреть контакты
    Помещение свободного назначения в Москва 1-я Новокузьминская ул., 21К2 ... - Фото 1
    Помещение свободного назначения в Москва 1-я Новокузьминская ул., 21К2 ... - Фото 2
    Показ в удобное время. С АГЕНТАМИ РАБОТАЕМ И ПЛАТИМ. Здание расположено в пешей доступности от станции метро Рязанский проспект, Окская, Выхино. Интенсивный пешеходный поток. Развитая инфраструктура, крупный жилой район.Налоговая: 21. Лифты: Есть. Вентиляция:...
    • 1/12 эт.
    54 000 000 Р
    Агент
    +7 (933) Показать номер
    Посмотреть контакты
    Продажа ПСН, улица Мустая Карима - Фото 1
    Продажа ПСН, улица Мустая Карима - Фото 2
    Продажа ПСН, улица Мустая Карима - Фото 3
    Продажа ПСН, улица Мустая Карима - Фото 4
    Продажа ПСН, улица Мустая Карима - Фото 5
    Продажа ПСН, улица Мустая Карима - Фото 6
    Продажа ПСН, улица Мустая Карима - Фото 7
    Продажа ПСН, улица Мустая Карима - Фото 8
    Продажа ПСН, улица Мустая Карима - Фото 9
    Продажа ПСН, улица Мустая Карима - Фото 10
    Продажа ПСН, улица Мустая Карима - Фото 11
    Продажа ПСН, улица Мустая Карима - Фото 12
    общая площадь 92.6м², полезная площадь 92.6м²

    Id 57800. Помещение свободного назначения в ЖК Wow – выгодная инвестиция и идеальное пространство для бизнеса Продается просторное помещение площадью 92,6 м на первом этаже нового жилого комплекса Wow, расположенного в престижном районе Москвы, всего...
    • 92.6 м²
    • 1/2 эт.
    54 000 000 Р
    Агент
    +7 (963) Показать номер
    Агентство
    Estate Liga
    Посмотреть контакты

    Не нашли подходящего объявления?

    Оставьте заявку, и наши риэлторы подберут псн в районе Москвы

    (0)