81 000 000 Р 1 042 600 $ или 888 100

Информация об помещении

1
Этаж

Состояние и оснащение

Количество этажей
1
Развернуть
Агент
+7 (938) 656-74-88
Начать чат с агентом

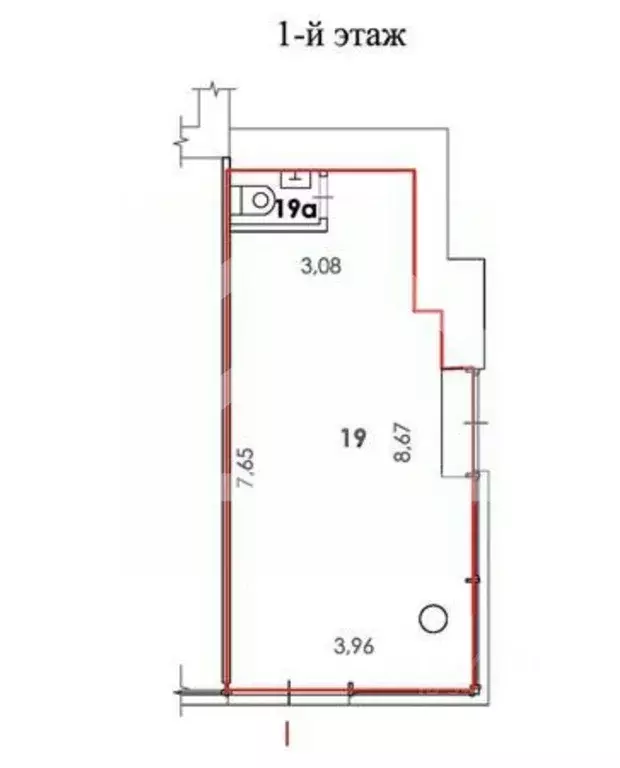
Помещение свободного назначения в Москва ул. Зацепский Вал, 4С2 (31 м)

837469 . Предлагаем отдельно стоящее административное одноэтажное здание с арендатором пекарня Sedelice , площадью 31.4 кв. м. Без комиссии для покупателя.Преимущества объекта:-первая линия ул. Зацепский Вал;-шаговая доступность от станции метро Павелецкая (4 минуты пешком);-удобная транспортная доступность: 950 м до Садового кольца, 3.5 км до Подольского шоссе, 5.2 км до Варшавского шоссе, 5.7 км до Загородного шоссе, 6.8 км до ТТК;-плотный жилой массив;-развитая инфраструктура района;-высокий автомобильный и пешеходный трафик;-отлично просматривается, находится в легком доступе для потенциальных клиентов;-гибкая планировка, позволяющая адаптировать пространство под различные нужды;-дизайнерский ремонт;-вытяжка для общепита;-витринное остекление;-возможность размещения вывески;-наземная парковка;-рядом остановка общественного транспорта.Технические параметры объекта:-отдельный вход с фасада.-высота потолков: 3.6 м.Информация об арендаторе: -арендатор: Sedelice, ДДА.-прибыль:уб/мес.-окупаемость: 11.6 лет.-доходность: 8.65 Свяжитесь с нами для получения дополнительной информации

Читать полностью
    Позвонить Написать
    81 000 000 Р1 042 600 $ или 888 100
    Агент
    +7 (938) 656-74-88
    Начать чат с агентом
    Похожие предложения
    Продажа ПСН, м. Тульская, Холодильный пер. - Фото 1
    Продажа ПСН, м. Тульская, Холодильный пер. - Фото 2
    Продажа ПСН, м. Тульская, Холодильный пер. - Фото 3
    Продажа ПСН, м. Тульская, Холодильный пер. - Фото 4
    Продажа ПСН, м. Тульская, Холодильный пер. - Фото 5
    Продажа ПСН, м. Тульская, Холодильный пер. - Фото 6
    Продажа ПСН, м. Тульская, Холодильный пер. - Фото 7
    Продажа ПСН, м. Тульская, Холодильный пер. - Фото 8
    Продажа ПСН, м. Тульская, Холодильный пер. - Фото 9
    Продажа ПСН, м. Тульская, Холодильный пер. - Фото 10
    Продажа ПСН, м. Тульская, Холодильный пер. - Фото 11
    Продажа ПСН, м. Тульская, Холодильный пер. - Фото 12
    общая площадь 199.8м², полезная площадь 199.8м²

    Продажа помещения в деловом квартале в стиле Loft Рябовская Мануфактура в ЮАО, Даниловский район! Готовый арендный бизнес! Отдельный вход с улицы! Предлагается в покупку помещение площадью 199,8 кв.м. расположено на 1-ом этаже 2-х этажного здания. Отдельный...
    • 199.8 м²
    • 1-й эт.
    81 918 000 Р
    Агент
    +7 (903) Показать номер
    Посмотреть контакты
    Помещение свободного назначения в Москва 5-я Кожуховская ул., 14 (540 ... - Фото 1
    Помещение свободного назначения в Москва 5-я Кожуховская ул., 14 (540 ... - Фото 2
    820478 . Предлагаем помещение свободного назначения формата street-retail с сетевыми арендаторами Чижик и Самокат , площадью 540 кв. м, расположенное на первом этаже 7-этажного жилого дома. Без комиссии для покупателя.Преимущества объекта:-первая линия...
    • 1/7 эт.
    80 000 000 Р
    Агент
    +7 (938) Показать номер
    Посмотреть контакты
    Помещение свободного назначения в Москва ул. Юных Ленинцев, 42С1 (511 ... - Фото 1
    Помещение свободного назначения в Москва ул. Юных Ленинцев, 42С1 (511 ... - Фото 2
    830061 . Предлагаем помещение свободного назначения с арендаторами кафе Чайхана ХАЛВА премиум и Медицинский центр, площадью 510.9 кв. м, расположенное на втором этаже 2-этажного административного здания. Без комиссии для покупателя.Преимущества объекта:-первая...
    • 2/2 эт.
    82 000 000 Р
    Агент
    +7 (938) Показать номер
    Посмотреть контакты
    Помещение свободного назначения в Москва Новая Басманная ул., 32 (141 ... - Фото 1
    Помещение свободного назначения в Москва Новая Басманная ул., 32 (141 ... - Фото 2
    Лот: 37894. Продажа отдельно стоящего здания в ЦАО Москвы. 8 минут пешком до станций метро Бауманская и Комсомольская. Рядом остановки общественного транспорта. Активный пешеходный автомобильный и пешеходный трафик вдоль объекта. Здание оснащено всеми...
    • 1/5 эт.
    82 000 000 Р
    Агент
    +7 (986) Показать номер
    Посмотреть контакты
    Помещение свободного назначения в Москва наб. Марка Шагала, 11к1 (140 ... - Фото 1
    Помещение свободного назначения в Москва наб. Марка Шагала, 11к1 (140 ... - Фото 2
    Продается помещение свободного назначения , по адресу г. Москва, ЮАО, внутригородская территория муниципальный округ Даниловский, улица Петра Кончаловского, 7к4, корпус Жилой квартал Shagal, 2 очередь, 5 этап, корпус 4 - встроенные помещения в Shagal...
    • 1/1 эт.
    80 168 680 Р
    Агент
    +7 (985) Показать номер
    Посмотреть контакты

    Не нашли подходящего объявления?

    Оставьте заявку, и наши риэлторы подберут псн в районе Москвы

    (0)