266 800 000 Р 3 395 000 $ или 2 874 600

Информация об помещении

1
Этаж

Состояние и оснащение

Количество этажей
35
Развернуть
Агент
+7 (925) 837-35-62
Начать чат с агентом

Помещение свободного назначения (580 м)

Продается помещение свободного назначения на 1 этаже в жилом комплексе Мираполис, В класса, который находится по адресу: проспект Мира, д. 222/1, к. 2.Пешая доступность от станций метро Ростокино, Ботанический сад. Удобный выезд на проспект Мира, а также СВХ и МСД.Помещение в состоянии shell core, смешанная планировка, с витражными окнами. Выделенная мощность 0,3 кВт. Высота потолков 5 м. Три отдельных входа с 2-х сторон, с уровня земли. Приточно-вытяжная система вентиляции, центральное кондиционирование. Предусмотрен подземный паркинг.Условия сделки и стоимость подлежат обсуждению.

Читать полностью
    Позвонить Написать
    266 800 000 Р3 395 000 $ или 2 874 600
    Агент
    +7 (925) 837-35-62
    Начать чат с агентом
    Похожие предложения
    Помещение свободного назначения (2420 м) - Фото 1
    Помещение свободного назначения (2420 м) - Фото 2
    Продается 3-этажное здание БЦ Вест-Альфа, С класса, который находится по адресу: ул. Прянишникова, д. 19А, стр. 13.В пешей доступности станция метро Лихоборы. Удобный выезд на ТТК.Помещение с отделкой, смешанной планировки. Система вентиляции - приточно-вытяжная,...
    • 1/3 эт.
    280 000 000 Р
    Агент
    +7 (925) Показать номер
    Посмотреть контакты
    Продажа ПСН, м. Сретенский бульвар, ул. Сретенка - Фото 1
    Продажа ПСН, м. Сретенский бульвар, ул. Сретенка - Фото 2
    Продажа ПСН, м. Сретенский бульвар, ул. Сретенка - Фото 3
    Продажа ПСН, м. Сретенский бульвар, ул. Сретенка - Фото 4
    Продажа ПСН, м. Сретенский бульвар, ул. Сретенка - Фото 5
    Продажа ПСН, м. Сретенский бульвар, ул. Сретенка - Фото 6
    общая площадь 240.2м², полезная площадь 240.2м²

    Продажа помещения свободного назначения на Сретенке.1-я линия домов, вся площадь на 1-м этаже. Шаговая доступность от метро Сретенский бульвар и Сухаревская. Исторический центр города, респектабельное окружение, интенсивный пешеходный и автомобильный...
    • 240.2 м²
    • 1-й эт.
    260 000 000 Р
    Агент
    +7 (903) Показать номер
    Посмотреть контакты
    Здание площадью 792,9 кв.м. на юго-западе Москвы - Фото 1
    Здание площадью 792,9 кв.м. на юго-западе Москвы - Фото 2
    Здание площадью 792,9 кв.м. на юго-западе Москвы - Фото 3
    Здание площадью 792,9 кв.м. на юго-западе Москвы - Фото 4
    Здание площадью 792,9 кв.м. на юго-западе Москвы - Фото 5
    Здание площадью 792,9 кв.м. на юго-западе Москвы - Фото 6
    полезная площадь 792.9м²

    Продается через электронные торги на площадке ЭТП ГПБ здание (здание-офис) площадью 792,9 кв.м с движимым имуществом (16 ед.) и недвижимым имуществом (железобетонное ограждение с воротами (забор), расположенные по адресу: г. Москва, ул. Нагорная, д. 22,...
    • 792.9 м²
    • 2 этажа
    269 100 000 Р
    Агент
    +7 (4945 Показать номер
    Посмотреть контакты
    Здание Супермаркета площадью 5 028,8 кв.м на тер. Делового центра - Фото 1
    Здание Супермаркета площадью 5 028,8 кв.м на тер. Делового центра - Фото 2
    Здание Супермаркета площадью 5 028,8 кв.м на тер. Делового центра - Фото 3
    Здание Супермаркета площадью 5 028,8 кв.м на тер. Делового центра - Фото 4
    Здание Супермаркета площадью 5 028,8 кв.м на тер. Делового центра - Фото 5
    Здание Супермаркета площадью 5 028,8 кв.м на тер. Делового центра - Фото 6
    полезная площадь 5028.8м²

    Продается через электронные торги на площадке ЭТП ГПБ здание Супермаркета, расположенное по адресу: г. Москва, вн. .г. поселение Сосенское, п. Газопровод, д. 101. Деловой центр расположен вблизи развитой городской инфраструктуры «Новой Москвы» и совмещает...
    • 5 028.8 м²
    • 5 этажей
    279 140 900 Р
    Агент
    +7 (812) Показать номер
    Посмотреть контакты
    Помещение свободного назначения в Москва Очаковское ш., 5к5 (585 м) - Фото 1
    Помещение свободного назначения в Москва Очаковское ш., 5к5 (585 м) - Фото 2
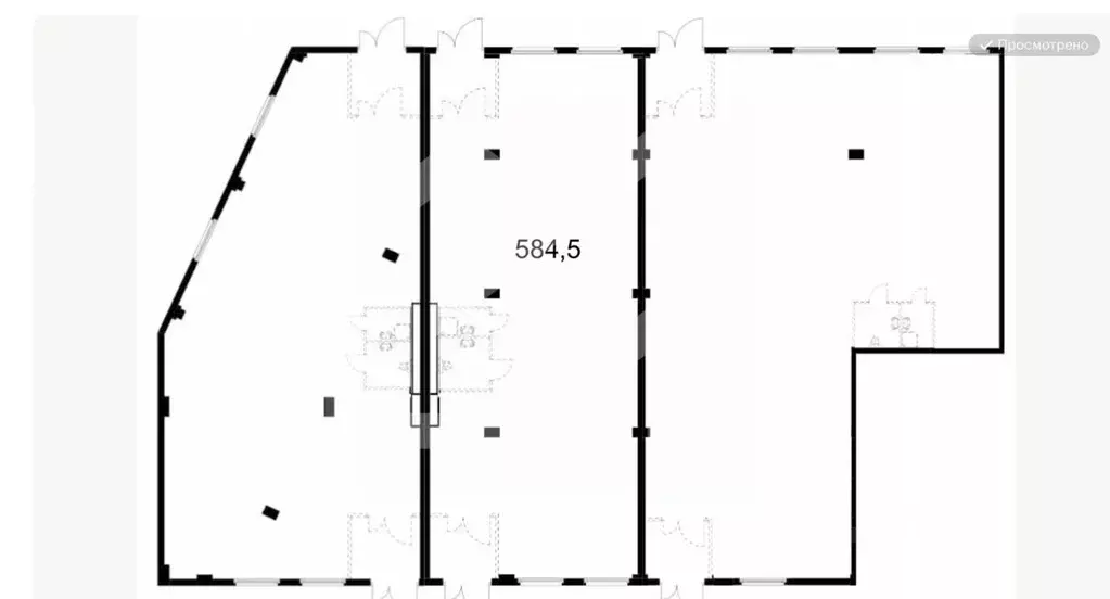
    878398 . Предлагаем помещение свободного назначения формата street-retail с надёжным сетевым арендатором супермаркет Пятёрочка в ЖК Матвеевский Парк , площадью 584.5 кв. м, расположенное на первом этаже 33-этажного жилого дома. Без комиссии для покупателя.Преимущества...
    • 1/33 эт.
    280 000 000 Р
    Агент
    +7 (938) Показать номер
    Посмотреть контакты

    Не нашли подходящего объявления?

    Оставьте заявку, и наши риэлторы подберут псн в районе Москвы

    (0)